Beschrijving

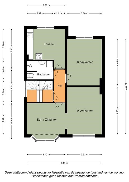
Dit knusse appartement is gelegen op de tweede verdieping en bestaat uit een woon/eetkamer met veel lichtinval, keuken, één ruime slaapkamer en badkamer met toilet en witgoedaansluiting. Het nieuwe keukenblok is voorzien een 4-pits gasfornuis, inbouw afzuigkap en inbouw oven. Er kan gebruik gemaakt worden van de gezamenlijke achtertuin en in de kelder bevindt zich een bergruimte.

De bereikbaarheid van de woning is goed en ligt op loopafstand van het gezellige centrum van Vaals.  

Vaals staat bekend als het kleine grensstadje net tegen Duitsland aan. De plaats kent een rijk verleden en dat is zichtbaar door heel Vaals aan de vele markante gebouwen. Tegenwoordig is het vooral een hele aangename woonplaats met een uitgebreid voorzieningenaanbod met vele winkels, medische voorzieningen, basisonderwijs en een goede bereikbaarheid met openbaar vervoer. Natuurlijk is het ook van belang dat de plaats grenst aan de grote buur Aken, een bruisende stad met veel historie en inmiddels ook bekend vanwege haar RWTH campus en het Klinikum. Kortom, Vaals is een prima basis om te wonen!

Let op: dit appartement is beschikbaar voor maximaal twee personen.

Bijzonderheden:
Huurprijs € 670- per maand exclusief gas/water/elektra/TV/internet/gemeentelijke heffingen
Waarborgsom van 2 maanden huur: € 1.340,- 
Servicekosten à € 20,- hebben betrekking op kosten waterverbruik 
Maximale huurtermijn is 24 maanden
Er zal een antecedentenonderzoek worden uitgevoerd
Kunststoffen kozijnen, volledig dubbel glas
Huisdieren zijn niet toegestaan, enkel in overleg met verhuurder
Aanvaarding in overleg

Globale indeling:
Souterrain
Kelderberging

Begane grond
Gezamenlijke entree en hal met trappenhuis

Tweede verdieping
Gezamenlijke overloop
Entree met hal 
Woonkamer
Eet/zitkamer 
Slaapkamer I
Keuken met nieuw aanrechtblok voorzien van 4-pitsgasfornuis, afzuigkap, en oven
Badkamer met wastafel, douche, staand toilet en witgoedaansluiting

Kenmerken