Beschrijving

Aan de rand van het dorp Bocholtz, vlak bij de grens met Duitsland, ligt deze keurige twee-onder-een-kapwoning met ruime garage en royale tuin met vrij uitzicht. Een rustige locatie, omringd door groen en toch op korte afstand van benodigde voorzieningen. We stappen de woning binnen en komen via de hal in de gezellige L-vormige woon- en eetkamer. Vanuit hier lopen we door naar de aangebouwde keuken met aansluitend een praktische bijkeuken. Hier bevinden zich de witgoedaansluitingen, de cv-ketel en een handig aanrechtblok voor extra werk- of opbergruimte. Op de eerste verdieping treffen we drie nette slaapkamers en een badkamer, uitgerust met een zitbad, wastafel en toilet. De per vlizotrap bereikbare bergzolder biedt voldoende opslagruimte, voor al je praktische zaken. De tuin ligt op het oosten, biedt voldoende privacy en is een fijne plek om tot rust te komen of juist gezellig te genieten met familie of vrienden. Vanuit de tuin kijk je vrij uit over de omliggende weilanden. Ben jij nieuwsgierig naar deze leuke woning? We plannen graag een bezichtiging!

Bocholtz wordt door haar eigen inwoners uitgesproken als Bóches, het dialect behoort tot het Middelduits of Ripuarisch. Het dorp was tot 1981 een zelfstandige gemeente, sindsdien vorm het een gemeente samen met buurdorp Simpelveld. Bocholtz ligt aan de grens met Duitsland, net ten zuiden van de A76 en N281. Bereikbaarheid is dan ook een van de sterke pluspunten van het dorp, binnen een mum zit je op uitvalswegen naar Heerlen, Maastricht en Aken. Ook behoren een aantal typisch Limburgse buurtschappen tot de kern, zoals de Baneheide, Vlengendaal, Prickart en Zandberg. Doordat de woonplaats een relatief hoog inwonersaantal kent, heeft het de beschikking over een brede basisschoolvoorziening. Ook is er een bijzonder actief verenigingsleven, waar eenieder iets van zijn gading kan vinden. De kern zelf heeft een prima voorzieningenniveau met onder meer supermarkt, slager, winkels en horeca. 

Bijzonderheden
* De woning is voorzien van kunststof kozijnen met grotendeels HR ++ beglazing
* HR combi CV installatie, Bosch, bouwjaar 2011, eigendom 
* De zijgevel van de woning is in 2024 geïmpregneerd
* De woning beschikt over 12 zonnepanelen (2019)
* De woning is in 2023 voorzien van airconditioning in woonkamer en overloop
* In 2011 zijn de gevels van de woning gereinigd en gevoegd
* De spouwmuur is na-geïsoleerd met termoparels
* Aanvaarding in overleg

Globale indeling

Souterrain
Kelder

Begane grond
Hal, entree met meterkast
Toilet
L-vormige woonkamer met plavuizen vloer en voorzien van airconditioning
Gesloten keuken met plavuizen vloer, voorzien van de volgende inbouwapparatuur; 4-pits gaskookplaat, vaatwasser, koelkast, afzuigkap.
Bijkeuken met aanrechtblok, witgoedaansluitingen en cv-ketel

Eerste verdieping
Overloop voorzien van vinylvloer, airconditioning
Slaapkamer I
Slaapkamer II
Slaapkamer III
Alle slaapkamers zijn voorzien van glasvliesbehang en een vinylvloer
Badkamer voorzien van zitbad, wastafel en staand toilet (sanibroyeur)

Tweede verdieping
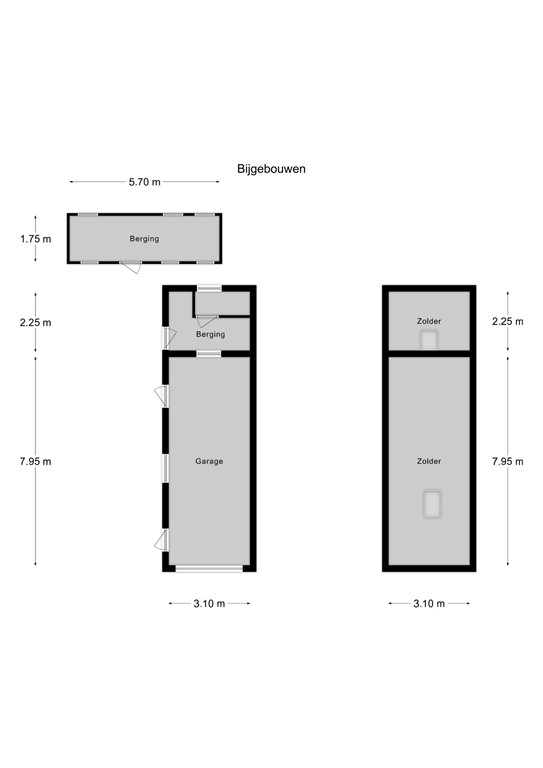
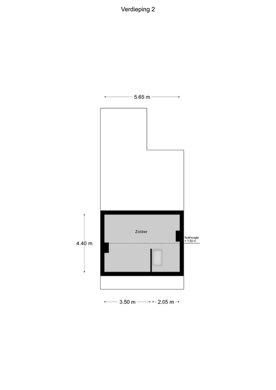
Per vlizotrap bereikbare bergzolder

Extern
Garage

Kenmerken