Met een eigen account kun je panden volgen, opslaan als favoriet, je zoekprofiel opslaan en jouw eigen notities bij een huis maken.
Algemeen
Vrijstaande woning met ruimte en comfort in Budel-Dorplein!
Prins Hendrikstraat 10, Budel-Dorplein
Welkom bij deze degelijk gebouwde vrijstaande woning uit 1979, gelegen op een ruim perceel aan de rustige Prins Hendrikstraat in Budel-Dorplein. Hier geniet je van volop leefruimte, een grote tuin met diverse terrassen en praktische voorzieningen zoals een garage, berging en royale carport.... Meer informatie
Prins Hendrikstraat 10, Budel-Dorplein
Welkom bij deze degelijk gebouwde vrijstaande woning uit 1979, gelegen op een ruim perceel aan de rustige Prins Hendrikstraat in Budel-Dorplein. Hier geniet je van volop leefruimte, een grote tuin met diverse terrassen en praktische voorzieningen zoals een garage, berging en royale carport.... Meer informatie
-
Kenmerken
Alle kenmerken Type object Woonhuis, eengezinswoning, vrijstaande woning Bouwjaar 1979 Aangeboden sinds Donderdag 30 oktober 2025 -
Locatie
Kenmerken
| Overdracht | |
|---|---|
| Referentienummer | 62677/9630706 |
| Vraagprijs | € 550.000,- k.k. |
| Aanvaarding | In overleg |
| Aangeboden sinds | Donderdag 30 oktober 2025 |
| Laatste wijziging | Dinsdag 20 januari 2026 |
| Bouw | |
|---|---|
| Type object | Woonhuis, eengezinswoning, vrijstaande woning |
| Soort bouw | Bestaande bouw |
| Bouwjaar | 1979 |
| Type dak | Zadeldak |
| Isolatievormen | Dakisolatie, Dubbel glas, Muurisolatie, Vloerisolatie |
| Oppervlaktes en inhoud | |
|---|---|
| Perceeloppervlakte | 600 m² |
| Woonoppervlakte | 183 m² |
| Inhoud | 651 m³ |
| Oppervlakte gebouwgebonden buitenruimte | 50 m² |
| Indeling | |
|---|---|
| Aantal bouwlagen | 3 |
| Aantal kamers | 5 (waarvan 4 slaapkamers) |
| Locatie | |
|---|---|
| Ligging | Aan rustige weg, In woonwijk |
| Tuin | |
|---|---|
| Type | Achtertuin |
| Hoofdtuin | Ja |
| Oriëntering | Noord-oost |
| Heeft een achterom | Ja |
| Staat | Goed onderhouden |
| Energieverbruik | |
|---|---|
| Energielabel | C |
| Uitrusting | |
|---|---|
| Warm water | CV-ketel |
| Badkamervoorzieningen | Inloopdouche, Wastafel, Wastafelmeubel |
| Parkeergelegenheid | Vrijstaande stenen garage |
| Heeft een alarm | Ja |
| Heeft kabel-tv | Ja |
| Heeft een rookkanaal | Ja |
| Tuin aanwezig | Ja |
| Heeft een garage | Ja |
| Heeft rolluiken | Ja |
| Heeft schuur/berging | Ja |
| Heeft een dakraam | Ja |
| Heeft een schuifpui | Ja |
| Heeft ventilatie | Ja |
Beschrijving
Vrijstaande woning met ruimte en comfort in Budel-Dorplein!
Prins Hendrikstraat 10, Budel-Dorplein
Welkom bij deze degelijk gebouwde vrijstaande woning uit 1979, gelegen op een ruim perceel aan de rustige Prins Hendrikstraat in Budel-Dorplein. Hier geniet je van volop leefruimte, een grote tuin met diverse terrassen en praktische voorzieningen zoals een garage, berging en royale carport. Met vier ruime slaapkamers, een vernieuwde badkamer en sfeervolle woonkamer is dit een ideale gezinswoning voor wie rust, ruimte en comfort zoekt.
De woning ligt in een vriendelijke dorpsomgeving met veel natuur in de directe nabijheid. Voorzieningen zoals winkels, scholen en sportfaciliteiten zijn goed bereikbaar, en binnen enkele minuten rijd je richting Eindhoven of Weert. Een fijne plek om thuis te komen!
Indeling
Begane grond
Je betreedt de woning via de hal met toegang tot het toilet, de meterkast en de trapopgang. De ruime woonkamer is voorzien van een sfeervolle gashaard en een schuifpui naar de tuin, waardoor binnen en buiten mooi in elkaar overlopen. De keuken grenst aan de woonkamer en is voorzien van diverse inbouwapparatuur zoals een 5-pits elektrische kookplaat, afzuigkap, oven, koelkast, vaatwasser en boiler.
Via de keuken heb je toegang tot de praktische berging met keukenblok en witgoedaansluitingen.
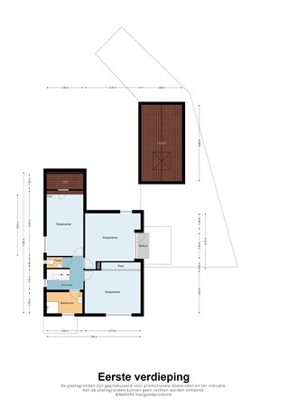
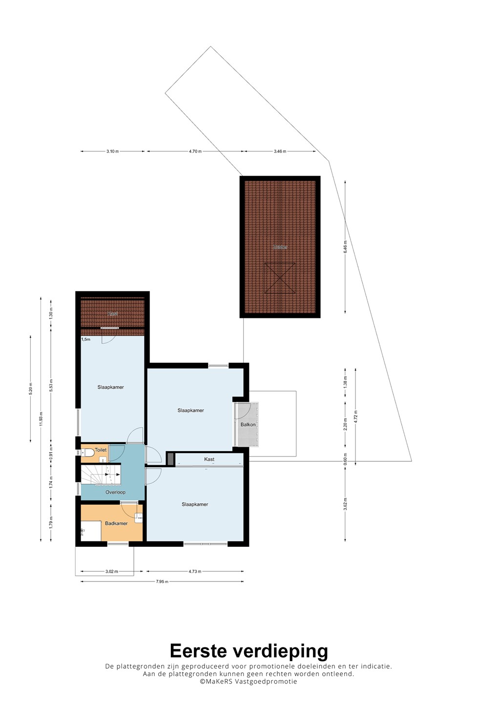
Eerste verdieping
Op de eerste verdieping bevinden zich drie grote slaapkamers. Dankzij het schuine dakdeel is er op een van de slaapkamers extra opbergruimte gecreëerd, wat deze extra praktisch maakt. Verder loopt er een balkon van de ene slaapkamer door naar de andere, aan de zijgevel van de woning. De slaapkamers zijn allen voorzien van rolluiken.
De vernieuwde badkamer is modern afgewerkt en beschikt over een inloopdouche, wastafel, meubel en mechanische afzuiging. Deze verdieping beschikt over een separate toiletruimte.
Tweede verdieping
Via een vaste trap bereik je de zolderverdieping. Hier vind je twee grote ruimtes. Het eerste gedeelte van de ruimte fungeert momenteel als berging en huisvest de cv-ketel. De tweede ruimte, tevens voorzien van een dakvenster, is ideaal voor logees, hobbyruimte of een rustige werkplek. Ook de zolder beschikt over extra opbergruimte onder het schuinde dakdeel.
Buitenruimte
Het totale perceel van 600 m² is royaal en fraai aangelegd. De grote tuin beschikt over meerdere (zon)terrassen, zodat je op elk moment van de dag een fijne plek hebt om te ontspannen. De vrijstaande garage met extra berging en vliering biedt veel opbergruimte en de grote carport is geschikt voor meerdere voertuigen.
Bijzonderheden van deze woning:
- Vrijstaande woning op ruim perceel (600 m²)
- Grote tuin met diverse (zon)terrassen
- Garage met extra berging en vliering
- Royale carport voor meerdere voertuigen
- Vier ruime slaapkamers
- Vernieuwde badkamer met inloopdouche
- Extra opbergruimte op eerste verdieping en zolder onder schuin dakdeel
- Grote woonkamer met schuifpui en gashaard
- Goeddeels voorzien van rolluiken
Wil je rustig en ruim wonen in een degelijk huis met volop mogelijkheden? Dan is deze woning aan de Prins Hendrikstraat 10 in Budel-Dorplein een kijkje waard!
Prins Hendrikstraat 10, Budel-Dorplein
Welkom bij deze degelijk gebouwde vrijstaande woning uit 1979, gelegen op een ruim perceel aan de rustige Prins Hendrikstraat in Budel-Dorplein. Hier geniet je van volop leefruimte, een grote tuin met diverse terrassen en praktische voorzieningen zoals een garage, berging en royale carport. Met vier ruime slaapkamers, een vernieuwde badkamer en sfeervolle woonkamer is dit een ideale gezinswoning voor wie rust, ruimte en comfort zoekt.
De woning ligt in een vriendelijke dorpsomgeving met veel natuur in de directe nabijheid. Voorzieningen zoals winkels, scholen en sportfaciliteiten zijn goed bereikbaar, en binnen enkele minuten rijd je richting Eindhoven of Weert. Een fijne plek om thuis te komen!
Indeling
Begane grond
Je betreedt de woning via de hal met toegang tot het toilet, de meterkast en de trapopgang. De ruime woonkamer is voorzien van een sfeervolle gashaard en een schuifpui naar de tuin, waardoor binnen en buiten mooi in elkaar overlopen. De keuken grenst aan de woonkamer en is voorzien van diverse inbouwapparatuur zoals een 5-pits elektrische kookplaat, afzuigkap, oven, koelkast, vaatwasser en boiler.
Via de keuken heb je toegang tot de praktische berging met keukenblok en witgoedaansluitingen.
Eerste verdieping
Op de eerste verdieping bevinden zich drie grote slaapkamers. Dankzij het schuine dakdeel is er op een van de slaapkamers extra opbergruimte gecreëerd, wat deze extra praktisch maakt. Verder loopt er een balkon van de ene slaapkamer door naar de andere, aan de zijgevel van de woning. De slaapkamers zijn allen voorzien van rolluiken.
De vernieuwde badkamer is modern afgewerkt en beschikt over een inloopdouche, wastafel, meubel en mechanische afzuiging. Deze verdieping beschikt over een separate toiletruimte.
Tweede verdieping
Via een vaste trap bereik je de zolderverdieping. Hier vind je twee grote ruimtes. Het eerste gedeelte van de ruimte fungeert momenteel als berging en huisvest de cv-ketel. De tweede ruimte, tevens voorzien van een dakvenster, is ideaal voor logees, hobbyruimte of een rustige werkplek. Ook de zolder beschikt over extra opbergruimte onder het schuinde dakdeel.
Buitenruimte
Het totale perceel van 600 m² is royaal en fraai aangelegd. De grote tuin beschikt over meerdere (zon)terrassen, zodat je op elk moment van de dag een fijne plek hebt om te ontspannen. De vrijstaande garage met extra berging en vliering biedt veel opbergruimte en de grote carport is geschikt voor meerdere voertuigen.
Bijzonderheden van deze woning:
- Vrijstaande woning op ruim perceel (600 m²)
- Grote tuin met diverse (zon)terrassen
- Garage met extra berging en vliering
- Royale carport voor meerdere voertuigen
- Vier ruime slaapkamers
- Vernieuwde badkamer met inloopdouche
- Extra opbergruimte op eerste verdieping en zolder onder schuin dakdeel
- Grote woonkamer met schuifpui en gashaard
- Goeddeels voorzien van rolluiken
Wil je rustig en ruim wonen in een degelijk huis met volop mogelijkheden? Dan is deze woning aan de Prins Hendrikstraat 10 in Budel-Dorplein een kijkje waard!