Met een eigen account kun je panden volgen, opslaan als favoriet, je zoekprofiel opslaan en jouw eigen notities bij een huis maken.
Algemeen
Een veelzijdige twee-onder-een kapwoning met ruime aanbouw, multifunctionele praktijkruimte, begane grond slaapkamer met ensuite badkamer, tuin met overkapt terras en berging gelegen op fijne locatie aan de rand van rustige woonwijk van Epen. Kom kennismaken met dit ruim bemeten woonhuis met een groot woonoppervlak van 137 m2, sinds 2007 heeft het pand een uitgebreide metamorfose ondergaan en i... Meer informatie
-
Kenmerken
Alle kenmerken Type object Eengezinswoning, woonhuis, twee onder een kap woning Bouwjaar 1970 Status Verkocht Aangeboden sinds Maandag 19 januari 2026 -
Locatie
Kenmerken
| Overdracht | |
|---|---|
| Vraagprijs | € 425.000,- k.k. |
| Status | Verkocht |
| Aanvaarding | In overleg |
| Aangeboden sinds | Maandag 19 januari 2026 |
| Laatste wijziging | Donderdag 29 januari 2026 |
| Bouw | |
|---|---|
| Type object | Eengezinswoning, woonhuis, twee onder een kap woning |
| Soort bouw | Bestaande bouw |
| Bouwjaar | 1970 |
| Dakbedekking | Dakpannen |
| Type dak | Zadeldak |
| Isolatievormen | Dakisolatie, Muurisolatie |
| Oppervlaktes en inhoud | |
|---|---|
| Perceeloppervlakte | 297 m² |
| Woonoppervlakte | 137 m² |
| Woonkameroppervlakte | 20 m² |
| Inhoud | 547 m³ |
| Oppervlakte overige inpandige ruimten | 8 m² |
| Oppervlakte externe bergruimte | 16 m² |
| Oppervlakte gebouwgebonden buitenruimte | 18 m² |
| Tuinoppervlakte | 150 m² |
| Indeling | |
|---|---|
| Aantal bouwlagen | 3 |
| Aantal kamers | 6 (waarvan 4 slaapkamers) |
| Locatie | |
|---|---|
| Ligging | Aan rustige weg, In woonwijk |
| Tuin | |
|---|---|
| Type | Achtertuin |
| Hoofdtuin | Ja |
| Oriëntering | Oosten |
| Staat | Normaal |
| Tuin 2 - Type | Achtertuin |
| Tuin 2 - Staat | Normaal |
| Tuin 3 - Type | Voortuin |
| Tuin 3 - Staat | Normaal |
| Energieverbruik | |
|---|---|
| Energielabel | C |
| CV ketel | |
|---|---|
| CV ketel | Nefit Trendline |
| Warmtebron | Gas |
| Bouwjaar | 2015 |
| Combiketel | Ja |
| Eigendom | Eigendom |
| Uitrusting | |
|---|---|
| Aantal parkeerplaatsen | 2 |
| Warm water | CV-ketel |
| Verwarmingssysteem | Centrale verwarming |
| Badkamervoorzieningen Badkamer 1 | Inloopdouche, Wastafelmeubel |
| Badkamervoorzieningen Badkamer 2 | Inloopdouche, Ligbad, Toilet, Wastafelmeubel |
| Heeft airco | Ja |
| Tuin aanwezig | Ja |
| Heeft een parkeerplaats | Ja |
| Heeft schuur/berging | Ja |
| Heeft een dakraam | Ja |
| Heeft een schuifpui | Ja |
| Heeft ventilatie | Ja |
| Kadastrale gegevens | |
|---|---|
| Kadastrale aanduiding | Wittem D 4299 |
| Perceeloppervlakte | 297 m² |
| Omvang | Geheel perceel |
| Eigendomsituatie | Eigen grond |
Beschrijving
Een veelzijdige twee-onder-een kapwoning met ruime aanbouw, multifunctionele praktijkruimte, begane grond slaapkamer met ensuite badkamer, tuin met overkapt terras en berging gelegen op fijne locatie aan de rand van rustige woonwijk van Epen. Kom kennismaken met dit ruim bemeten woonhuis met een groot woonoppervlak van 137 m2, sinds 2007 heeft het pand een uitgebreide metamorfose ondergaan en is het flink uitgebreid. Nu staat er dan ook een aantrekkelijke woning klaar, geschikt voor een brede doelgroep van een jong gezin tot en met de actieve senior. Het huis heeft op de begane grond een royale leefruimte met woonkamer en open leefkeuken, het moderne kookeiland, de schouw met houtkachel en de brede schuifpui naar de tuin geven de ruimte veel woongenot. Via een tussenhal bereik je inpandig de praktijkruimte én ruime slaapkamer met ensuite badkamer, levensloopbestendig wonen is hier dan ook een vanzelfsprekendheid. De verdieping heeft dan nog eens twee ruime slaapkamers en een kleine slaap- of werkkamer alsmede een luxe badkamer te bieden. De bergzolder en buitenberging bieden alle ruimte voor opslag. De onderhoudsvriendelijke tuin heeft direct aansluitend aan de woonruimte een groot overkapt terras te bieden, enkele trapjes naar beneden vinden we dan nog een vlonderterras en meer tuinruimte voor al je tuinwensen. Een fijne plek om buiten te kunnen genieten, samen buiten eten of gezellige avonden doorbrengen op je loungeset. Je woont op een rustig plekje aan de rand van een kleinschalige woonwijk, je loopt in enkele passen de landweg in voor een lange wandeling in het prachtige landschap. Maar ook de dorpse voorzieningen zoals basisschool, bushalte en buurtsuper zijn op loopafstand. Kom jij een kijkje nemen bij deze attractieve woning?
Epen is een geliefde woonplaats in het Heuvelland, en wij snappen heel goed waarom dat zo is. Het dorp heeft natuurlijk een prachtige ligging in het vijfsterrenlandschap en wordt omringd door vakwerkhuizen, oude boerderijen en een overvloed aan natuurschoon. Wandelaars en fietsers kunnen er hun hart ophalen. Ook kent het dorp een rijke traditie en een actief verenigingsleven waar iedereen van harte welkom is. Doordat Epenaren al meer dan honderd jaar gasten verwelkomen, hebben ze een open houding naar nieuwe dorpsbewoners. Ook beschikt Epen over een behoorlijk aantal voorzieningen zoals een bakker, buurtsuper, basisschool (met BSO en peuteropvang) en busverbinding. Daarnaast zijn er diverse restaurants, terrassen en eetgelegenheden waar het goed vertoeven is. Uitvalswegen zijn in een klein kwartier te bereiken, steden als Maastricht, Heerlen en Aken bevinden zich op een half uurtje rijden. Kortom, een aantrekkelijk dorp voor bewoners van jong tot oud die houden van het Limburgse leven.
Bijzonderheden
- Bouwjaar 1970, gerenoveerd en uitgebouwd sinds 2007
- Kunststoffen kozijnen voorzien van HR++ beglazing
- Vrijwel volledig voorzien van rolluiken, deels elektrisch
- Het hoofddak is compleet vernieuwd inclusief dakisolatie
- Het pand is voorzien van spouwmuurisolatie
- HR combi CV installatie, Nefit Trendline, bouwjaar circa 2015, eigendom
- De woonkamer en keuken op de begane grond en de badkamer op de verdieping zijn voorzien van vloerverwarming, de overige ruimtes zijn voorzien van lage temperatuur radiatoren
- De garage is in 2015 herbouwd tot praktijkruimte en slaapkamer met ensuite badkamer
- De slaapkamer begane grond en praktijkruimte zijn voorzien van airconditioning
- Aanvaarding in overleg, op korte termijn mogelijk
Globale indeling
Begane grond
Entree, hal met meterkast, trapberging, trapopgang, glazen deur naar de woonkamer
Toilet voorzien van hangend closet en fontein
Woonkamer voorzien van schouw met houtkachel
Open leefkeuken met kookeiland en kastenwand, voorzien van de volgende apparatuur: inductiekookplaat, RVS afzuigkap, combi oven en vaatwasser, eetgedeelte met schuifpui naar de overkapping en tuin
Betegelde bijkeuken/wasruimte met witgoedaansluiting en waskoker
Hal, toilet, woonkamer, keuken en bijkeuken zijn voorzien van een doorlopende plavuizenvloer
Tussenhal met gootsteen, enkele deur naar de tuin, houtlook plavuizenvloer
Praktijkruimte met pui met enkele deur, airconditioning, houtlook plavuizenvloer
Toilet voorzien van hangend closet en fontein
Slaapkamer I met laminaatvloer, dubbel wastafelmeubel, inloopdouche en airconditioning
Eerste verdieping
Overloop
Slaapkamer II
Slaapkamer III
Slaap/werkkamer IV
De overloop en slaapkamers zijn voorzien van een laminaatvloer
Badkamer met dubbel wastafelmeubel, ligbad, inloopdouche, hangend toilet. De ruimte is voorzien van vloerverwarming en vier dakramen
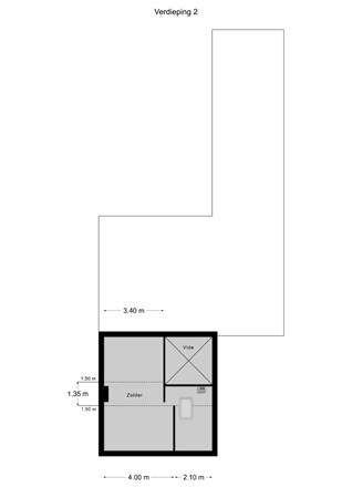
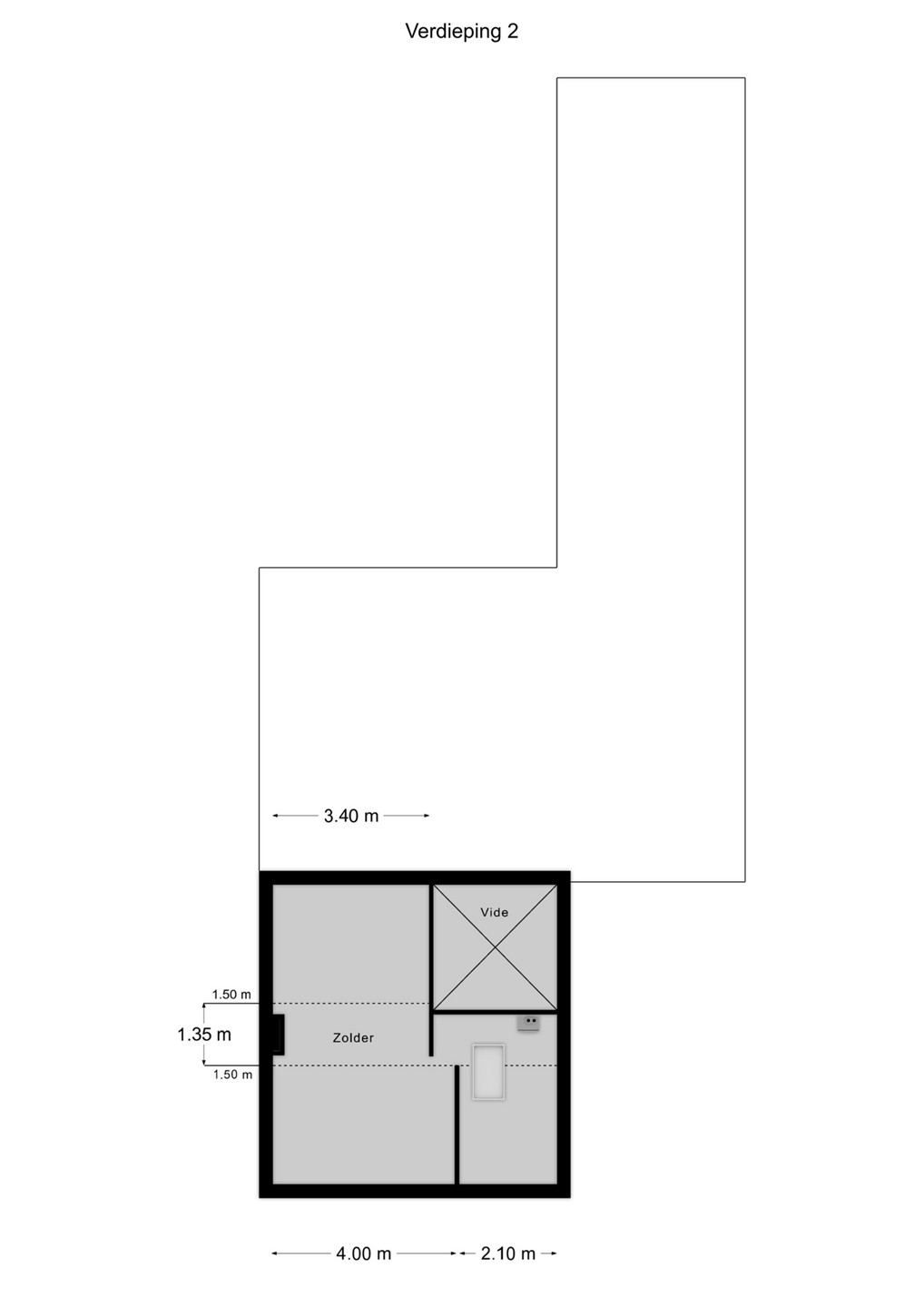
Tweede verdieping
Via vlizotrap bereikbare bergzolder met CV installatie, mechanische ventilatiebox en dakraam
Epen is een geliefde woonplaats in het Heuvelland, en wij snappen heel goed waarom dat zo is. Het dorp heeft natuurlijk een prachtige ligging in het vijfsterrenlandschap en wordt omringd door vakwerkhuizen, oude boerderijen en een overvloed aan natuurschoon. Wandelaars en fietsers kunnen er hun hart ophalen. Ook kent het dorp een rijke traditie en een actief verenigingsleven waar iedereen van harte welkom is. Doordat Epenaren al meer dan honderd jaar gasten verwelkomen, hebben ze een open houding naar nieuwe dorpsbewoners. Ook beschikt Epen over een behoorlijk aantal voorzieningen zoals een bakker, buurtsuper, basisschool (met BSO en peuteropvang) en busverbinding. Daarnaast zijn er diverse restaurants, terrassen en eetgelegenheden waar het goed vertoeven is. Uitvalswegen zijn in een klein kwartier te bereiken, steden als Maastricht, Heerlen en Aken bevinden zich op een half uurtje rijden. Kortom, een aantrekkelijk dorp voor bewoners van jong tot oud die houden van het Limburgse leven.
Bijzonderheden
- Bouwjaar 1970, gerenoveerd en uitgebouwd sinds 2007
- Kunststoffen kozijnen voorzien van HR++ beglazing
- Vrijwel volledig voorzien van rolluiken, deels elektrisch
- Het hoofddak is compleet vernieuwd inclusief dakisolatie
- Het pand is voorzien van spouwmuurisolatie
- HR combi CV installatie, Nefit Trendline, bouwjaar circa 2015, eigendom
- De woonkamer en keuken op de begane grond en de badkamer op de verdieping zijn voorzien van vloerverwarming, de overige ruimtes zijn voorzien van lage temperatuur radiatoren
- De garage is in 2015 herbouwd tot praktijkruimte en slaapkamer met ensuite badkamer
- De slaapkamer begane grond en praktijkruimte zijn voorzien van airconditioning
- Aanvaarding in overleg, op korte termijn mogelijk
Globale indeling
Begane grond
Entree, hal met meterkast, trapberging, trapopgang, glazen deur naar de woonkamer
Toilet voorzien van hangend closet en fontein
Woonkamer voorzien van schouw met houtkachel
Open leefkeuken met kookeiland en kastenwand, voorzien van de volgende apparatuur: inductiekookplaat, RVS afzuigkap, combi oven en vaatwasser, eetgedeelte met schuifpui naar de overkapping en tuin
Betegelde bijkeuken/wasruimte met witgoedaansluiting en waskoker
Hal, toilet, woonkamer, keuken en bijkeuken zijn voorzien van een doorlopende plavuizenvloer
Tussenhal met gootsteen, enkele deur naar de tuin, houtlook plavuizenvloer
Praktijkruimte met pui met enkele deur, airconditioning, houtlook plavuizenvloer
Toilet voorzien van hangend closet en fontein
Slaapkamer I met laminaatvloer, dubbel wastafelmeubel, inloopdouche en airconditioning
Eerste verdieping
Overloop
Slaapkamer II
Slaapkamer III
Slaap/werkkamer IV
De overloop en slaapkamers zijn voorzien van een laminaatvloer
Badkamer met dubbel wastafelmeubel, ligbad, inloopdouche, hangend toilet. De ruimte is voorzien van vloerverwarming en vier dakramen
Tweede verdieping
Via vlizotrap bereikbare bergzolder met CV installatie, mechanische ventilatiebox en dakraam