Met een eigen account kun je panden volgen, opslaan als favoriet, je zoekprofiel opslaan en jouw eigen notities bij een huis maken.
Algemeen
Gelegen in de kern van Epen aan een rustig straatje, bieden wij aan deze flink uitgebouwde tweekapper met berging, dubbele parkeerplaats en ruim bemeten tuin met groot terras gesitueerd op het Zuidwesten. Welkom in deze modern afgewerkte twee-onder-een kapwoning, een heerlijk licht huis dat sinds 2013 uitgebreid is gerenoveerd en voorzien is van een grote aanbouw. De begane grond heeft een prac... Meer informatie
-
Kenmerken
Alle kenmerken Type object Eengezinswoning, woonhuis, twee onder een kap woning Bouwjaar 1959 Aangeboden sinds Woensdag 19 november 2025 -
Locatie
Kenmerken
| Overdracht | |
|---|---|
| Vraagprijs | € 440.000,- k.k. |
| Aanvaarding | In overleg |
| Aangeboden sinds | Woensdag 19 november 2025 |
| Bouw | |
|---|---|
| Type object | Eengezinswoning, woonhuis, twee onder een kap woning |
| Soort bouw | Bestaande bouw |
| Bouwjaar | 1959 |
| Dakbedekking | Dakpannen |
| Type dak | Zadeldak |
| Isolatievormen | Dakisolatie, Dubbel glas, Muurisolatie |
| Oppervlaktes en inhoud | |
|---|---|
| Perceeloppervlakte | 330 m² |
| Woonoppervlakte | 118 m² |
| Woonkameroppervlakte | 44 m² |
| Inhoud | 558 m³ |
| Oppervlakte overige inpandige ruimten | 42 m² |
| Tuinoppervlakte | 165 m² |
| Indeling | |
|---|---|
| Aantal bouwlagen | 3 (en 1 kelder) |
| Aantal kamers | 6 (waarvan 3 slaapkamers) |
| Locatie | |
|---|---|
| Ligging | In woonwijk |
| Tuin | |
|---|---|
| Type | Achtertuin |
| Hoofdtuin | Ja |
| Oriëntering | Zuid-west |
| Staat | Normaal |
| Tuin 2 - Type | Achtertuin |
| Tuin 2 - Staat | Normaal |
| Tuin 3 - Type | Voortuin |
| Tuin 3 - Staat | Normaal |
| Energieverbruik | |
|---|---|
| Energielabel | C |
| CV ketel | |
|---|---|
| CV ketel | Nefit proline |
| Warmtebron | Gas |
| Bouwjaar | 2012 |
| Combiketel | Ja |
| Eigendom | Eigendom |
| Uitrusting | |
|---|---|
| Aantal parkeerplaatsen | 2 |
| Warm water | CV-ketel |
| Verwarmingssysteem | Centrale verwarming |
| Badkamervoorzieningen | Douche, Ligbad, Toilet, Wastafelmeubel |
| Tuin aanwezig | Ja |
| Heeft een parkeerplaats | Ja |
| Heeft schuur/berging | Ja |
| Kadastrale gegevens | |
|---|---|
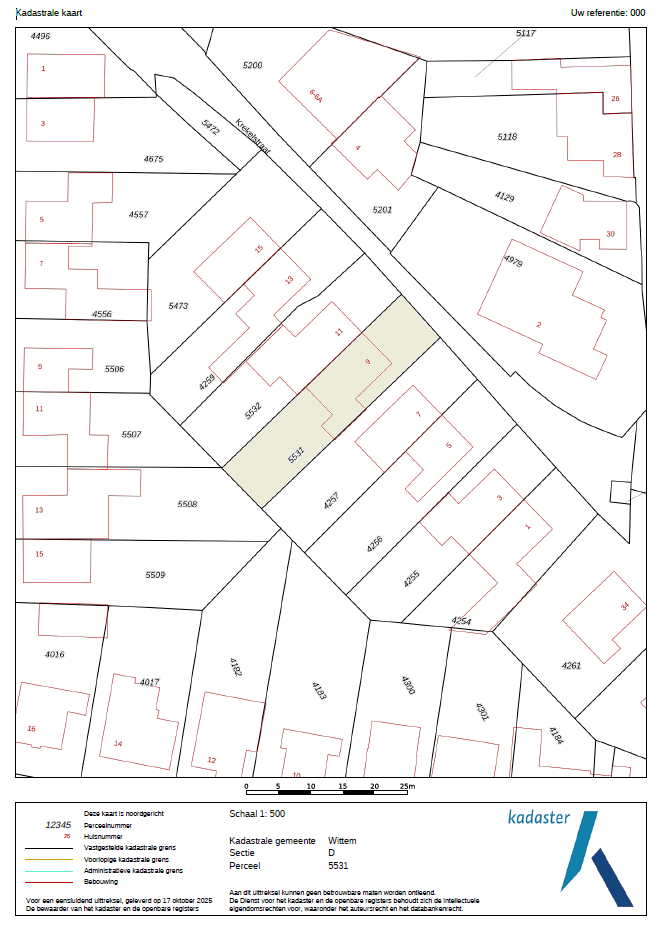
| Kadastrale aanduiding | Wittem D 5531 |
| Perceeloppervlakte | 330 m² |
| Omvang | Geheel perceel |
| Eigendomsituatie | Eigen grond |
Beschrijving
Gelegen in de kern van Epen aan een rustig straatje, bieden wij aan deze flink uitgebouwde tweekapper met berging, dubbele parkeerplaats en ruim bemeten tuin met groot terras gesitueerd op het Zuidwesten. Welkom in deze modern afgewerkte twee-onder-een kapwoning, een heerlijk licht huis dat sinds 2013 uitgebreid is gerenoveerd en voorzien is van een grote aanbouw. De begane grond heeft een prachtige leefruimte te bieden met woonkamer en open keuken voorzien van kookeiland. Als je thuis komt is het fijn koken aan het kookeiland, terwijl je met je gezin kunt bijpraten die zijn neergestreken aan het bargedeelte van het eiland. Aan de voorzijde is het woongedeelte gesitueerd, het grote raam geeft veel lichtinval en je kijkt mooi hoog weg over de straat. De eetkamer is gelegen aan de tuinkant, de dubbele tuindeuren zorgen voor optimaal tuincontact. Direct aansluitend aan de keuken zit een praktische bijkeuken en aansluitend vinden we ook nog een ruime berging, ideaal voor bijvoorbeeld het stallen van je fietsen. De eerste verdieping is ook gerenoveerd en heeft drie fijne slaapkamers te bieden. De badkamer is vergroot en helemaal vernieuwd met luxe afwerking. Er is een vaste trap naar de zolder geplaatst en daar vinden we nog een flinke zolderruimte. Heb je behoeft aan een vierde slaapkamer? Dan is dit daar eenvoudig te realiseren waardoor je woonoppervlak nog verder vergroot wordt. De zonovergoten tuin is mooi vlak, heeft een ruime afmeting en beschikt over terras en gazon. Een prima plek om lekker te genieten van het buitenleven, alle ruimte voor een gezellige barbecue, de trampoline van de kinderen of misschien wel een stukje moestuin. Je tuin is bereikbaar op drie manieren, vanuit de woonkamer, bijkeuken of berging. De ligging aan een eenrichtingsstraatje in de kern van Epen is heel aantrekkelijk, in deze fijne woonwijk wonen veel jongen gezinnen. Je woont er mooi rustig maar bent ook direct in de kern van het dorp met al je basisvoorzieningen op loopafstand. Een heel compleet woonhuis, instapklaar voor jouw nieuwe toekomst. Kom je een kijkje nemen?
Epen is een geliefde woonplaats in het Heuvelland, en wij snappen heel goed waarom dat zo is. Het dorp heeft natuurlijk een prachtige ligging in het vijfsterrenlandschap en wordt omringd door vakwerkhuizen, oude boerderijen en een overvloed aan natuurschoon. Wandelaars en fietsers kunnen er hun hart ophalen. Ook kent het dorp een rijke traditie en een actief verenigingsleven waar iedereen van harte welkom is. Doordat Epenaren al meer dan honderd jaar gasten verwelkomen, hebben ze een open houding naar nieuwe dorpsbewoners. Ook beschikt Epen over een behoorlijk aantal voorzieningen zoals een bakker, buurtsuper, basisschool (met BSO en peuteropvang) en busverbinding. Daarnaast zijn er diverse restaurants, terrassen en eetgelegenheden waar het goed vertoeven is. Uitvalswegen zijn in een klein kwartier te bereiken, steden als Maastricht, Heerlen en Aken bevinden zich op een half uurtje rijden. Kortom, een aantrekkelijk dorp voor bewoners van jong tot oud die houden van het Limburgse leven.
Bijzonderheden
- Bouwjaar 1959, uitgebreide renovatie en realisatie aanbouw in 2013
- De gevels zijn gereinigd en opnieuw gevoegd in 2018
- Zowel het hoofddak als het plat dak zijn voorzien van isolatie
- De begane grond is voorzien van hardhouten kozijnen en de verdieping heeft kunststoffen kozijnen, HR++ en dubbele beglazing
- HR Combi CV installatie, Nefit proline, installatiejaar 2012, eigendom
- De elektrische installatie is vernieuwd in 2012/2013
- De keuken en badkamer zijn vernieuwd in 2012/2013
- De berging is gerealiseerd in 2015
- De dubbele parkeerplaats aan de voorzijde is gerealiseerd in 2016
- Aanvaarding in overleg
Globale indeling
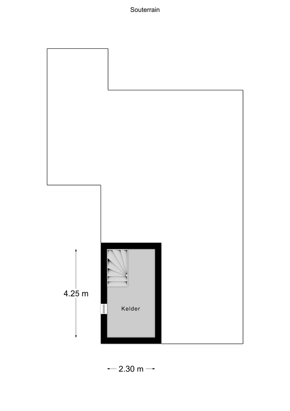
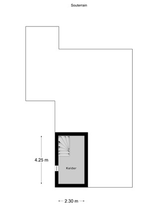
Souterrain
Provisiekelder
Begane grond
Entree, hal met trapopgang, meterkast, plavuizen vloer
Toilet voorzien van hangend closet en fontein
Open keuken voorzien van aanbouwinstallatie met kookeiland, de volgende apparatuur is ingebouwd: 5 pits gaskookplaat, plafondafzuiging, combi oven, koelkast, vaatwasser
Woonkamer met zitgedeelte en eetgedeelte, dubbele deuren geven toegang naar het terras en de tuin
De woonkamer en keuken zijn afgewerkt met een lamelparketvloer
Bijkeuken voorzien van kastenwand met witgoedaansluiting en koelkast, enkele deur naar de tuin
Berging met extra brede deur zowel aan de voorzijde als achterzijde, gootsteen
Eerste verdieping
Overloop met airconditioning, lamelparket
Slaapkamer I
Slaapkamer II
Slaapkamer III met frans balkon
De slaapkamers zijn voorzien van lamelparketvloer
Badkamer met ligbad, wastafelmeubel, inloopdouche en hangend closet
Tweede verdieping
Via vaste trap bereikbare zolderverdieping met dakraam en CV installatie
Epen is een geliefde woonplaats in het Heuvelland, en wij snappen heel goed waarom dat zo is. Het dorp heeft natuurlijk een prachtige ligging in het vijfsterrenlandschap en wordt omringd door vakwerkhuizen, oude boerderijen en een overvloed aan natuurschoon. Wandelaars en fietsers kunnen er hun hart ophalen. Ook kent het dorp een rijke traditie en een actief verenigingsleven waar iedereen van harte welkom is. Doordat Epenaren al meer dan honderd jaar gasten verwelkomen, hebben ze een open houding naar nieuwe dorpsbewoners. Ook beschikt Epen over een behoorlijk aantal voorzieningen zoals een bakker, buurtsuper, basisschool (met BSO en peuteropvang) en busverbinding. Daarnaast zijn er diverse restaurants, terrassen en eetgelegenheden waar het goed vertoeven is. Uitvalswegen zijn in een klein kwartier te bereiken, steden als Maastricht, Heerlen en Aken bevinden zich op een half uurtje rijden. Kortom, een aantrekkelijk dorp voor bewoners van jong tot oud die houden van het Limburgse leven.
Bijzonderheden
- Bouwjaar 1959, uitgebreide renovatie en realisatie aanbouw in 2013
- De gevels zijn gereinigd en opnieuw gevoegd in 2018
- Zowel het hoofddak als het plat dak zijn voorzien van isolatie
- De begane grond is voorzien van hardhouten kozijnen en de verdieping heeft kunststoffen kozijnen, HR++ en dubbele beglazing
- HR Combi CV installatie, Nefit proline, installatiejaar 2012, eigendom
- De elektrische installatie is vernieuwd in 2012/2013
- De keuken en badkamer zijn vernieuwd in 2012/2013
- De berging is gerealiseerd in 2015
- De dubbele parkeerplaats aan de voorzijde is gerealiseerd in 2016
- Aanvaarding in overleg
Globale indeling
Souterrain
Provisiekelder
Begane grond
Entree, hal met trapopgang, meterkast, plavuizen vloer
Toilet voorzien van hangend closet en fontein
Open keuken voorzien van aanbouwinstallatie met kookeiland, de volgende apparatuur is ingebouwd: 5 pits gaskookplaat, plafondafzuiging, combi oven, koelkast, vaatwasser
Woonkamer met zitgedeelte en eetgedeelte, dubbele deuren geven toegang naar het terras en de tuin
De woonkamer en keuken zijn afgewerkt met een lamelparketvloer
Bijkeuken voorzien van kastenwand met witgoedaansluiting en koelkast, enkele deur naar de tuin
Berging met extra brede deur zowel aan de voorzijde als achterzijde, gootsteen
Eerste verdieping
Overloop met airconditioning, lamelparket
Slaapkamer I
Slaapkamer II
Slaapkamer III met frans balkon
De slaapkamers zijn voorzien van lamelparketvloer
Badkamer met ligbad, wastafelmeubel, inloopdouche en hangend closet
Tweede verdieping
Via vaste trap bereikbare zolderverdieping met dakraam en CV installatie