Beschrijving

Ben je op zoek naar ruimte en bereid de handen uit de mouwen steken om een huis helemaal naar je eigen hand te zetten? Dan heeft deze nette twee-onder-een kap woning met garage en tuin gelegen in woonwijk "de Rus" veel te bieden. Dit degelijk gebouwde huis heeft in alle opzichten een maatje meer, zo is er een woonoppervlak van 131 m2, een perceel van 258 m2 en een grote garage. Sinds de bouw in 1960 is de woning steeds door de eerste eigenaren bewoond en keurig verzorgd, een modernisering naar de smaak van vandaag is inmiddels wenselijk. De woning is gelegen op loopafstand van het levendige centrum van het dorp, waar alle voorzieningen maar ook genoeg leuke terrasjes voorhanden zijn. We stappen via de entree aan de voorzijde naar binnen, de woonkamer is groot van opzet en lekker licht door grote ramen. Daarnaast ligt de nette keuken met toegang tot de kelder. Aan de achterzijde van de woning is een serre en overkapping aangebouwd. De verdieping heeft vier ruime slaapkamers en een kleine badkamer te bieden. Via een steile vaste trap bereiken we de zolder met dakkapel, daar is de vijfde slaapkamer gesitueerd. Aan de linkerzijde van het perceel ligt een lange oprit met veel parkeergelegenheid, aansluitend is er een grote garage annex hobbyruimte waar al die jaren dankbaar gebruik van gemaakt is. De achtertuin is gesitueerd op Zuidwest, en daarmee is een gunstige zonligging voor de middag en avond een zekerheid. Kortom, een woning met veel potentie. Wij laten je graag alle mogelijkheden van het pand zien tijdens een bezichtiging.

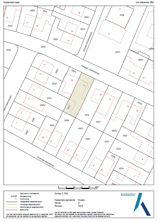
Gulpen is letterlijk het hart van Heuvellandgemeente Gulpen-Wittem. Dit sfeerrijke dorp met uitvalswegen naar Maastricht en Aken is de echte centrumkern, dat maakt het er prettig wonen. Daar zijn vele redenen voor te noemen. Allereerst een uitstekend voorzieningenniveau, denk daarbij aan een uitgebreid en gevarieerd winkelaanbod in het gezellig winkelcentrum met onder meer supermarkten, bakkers, slagers, speciaalzaken en leuke kledingboetiekjes. Maar ook basis en voortgezet onderwijs, kinderopvang en medische voorzieningen zijn aanwezig. Tenslotte zorgt het busstation er voor dat vanuit Gulpen alle kanten op gereisd kan worden met openbaar vervoer. Natuurlijk reis je ook snel met de auto naar uitvalswegen en steden als Maastricht, Aken en Heerlen. Naast deze praktische voordelen heeft Gulpen ook veel sfeer en gezelligheid te bieden. In het centrum zijn vele horecazaken te vinden in alle soorten en maten, zodat eenieder er naar zijn smaak gezellig kan vertoeven. Tenslotte wordt het dorp omringd door het groene Heuvellandschap, heerlijk voor vele wandel- of fietstochten.

Bijzonderheden
- Bouwjaar 1960
- Grotendeels voorzien van kunststoffen kozijnen met dubbele beglazing. De veranda heeft houten kozijnen en de garage heeft houten en betonnen kozijnen.
- Het hoofddak is in 1979 geïsoleerd met 20 mm polystyreenplaten, ook is toen de dakkapel geplaatst
- De vloer van de woonkamer is voorzien van glaswol isolatie
- Intergas HRE combi CV installatie, bouwjaar 2025, eigendom
- Energielabel E
- Aanvaarding in overleg

Globale indeling
Souterrain
Provisiekelder met CV installatie

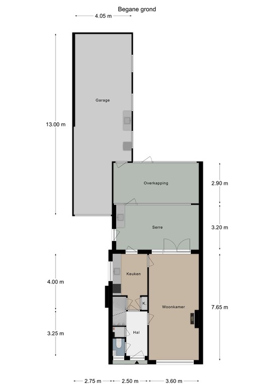
Begane grond
Entree, hal voorzien van vloerbedekking, meterkast en trapopgang
Toilet voorzien van staand closet en fontein
Woonkamer voorzien van vloerbedekking en allesbrander kachel, dubbele deuren naar de serre
Gesloten keuken voorzien van eenvoudige aanbouwinstallatie met gaskookplaat, oven, afzuigkap en koelkast (defect), muurkast, enkele deur naar de serre
Serre voorzien van tegelvloer, aanrecht en enkele deur naar de oprit
Overkapping met toegang naar de garage annex hobbyruimte voorzien van kantelpoort

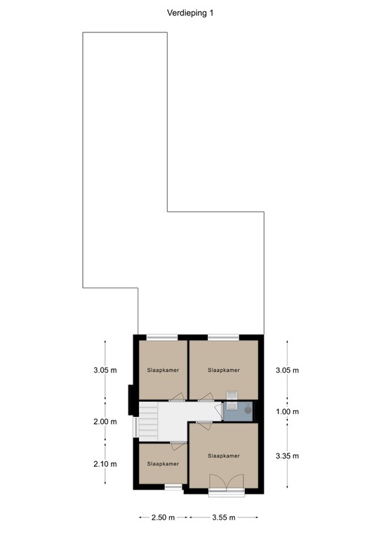
Eerste verdieping
Overloop voorzien van vloerbedekking
Slaapkamer I met vinylvloer
Slaapkamer II met vloerbedekking
Badkamer voorzien van douche en wastafel
Slaapkamer III met vloerbedekking
Slaapkamer IV met vloerbedekking

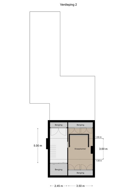
Tweede verdieping
Via steile vaste trap bereikbare zolderverdieping voorzien van vloerbedekking
Overloopruimte met bergingen
Slaapkamer V met dakkapel

Kenmerken