Beschrijving

Een uitblinker in sfeer, dat is deze vrijstaande jaren dertig woning met prachtig aangelegde tuin en garage gelegen op een fijn rustig plekje op loopafstand van het levendige centrum van Gulpen. Jaren dertig huizen worden vaak gezocht, maar er is weinig aanbod in deze karakteristieke woningen te vinden in het Heuvelland. Dit prachtexemplaar heeft veel charme te bieden en dat in combinatie met een prima onderhoudstoestand maakt het tot een woonhuis met heerlijk wooncomfort. Je woont aan één van de meest geliefde straten in Gulpen, lekker rustig en toch loop je zo het dorp in naar de supermarkt, slager, bakker of een van de leuke boetiekjes. Maar ook praktische voorzieningen zoals busstation, medische voorzieningen en scholen liggen om de hoek. Dit huis heeft een ruim woonoppervlak van maar liefst 175 m2 te bieden alsmede diverse praktische ruimtes. Eenmaal binnen kom je direct in de ruim bemeten en vooral heel gezellige woonkeuken terecht met kookeiland om uitgebreid te kokkerellen. Een extra zithoekje, of misschien wel speelplek voor de kinderen, én een eetgedeelte met zicht op de tuin maken de keuken tot dé plek in huis waar de hele familie samenkomt. Maar ook de grote woonkamer met pelletkachel is royaal van formaat en heeft leuke hoekjes voor meerdere zitplekken. Verder is er op de begane grond een compleet uitgevoerde badkamer te vinden. Op de eerste en tweede verdieping zijn er vier grote slaapkamers gesitueerd, voor ieder gezinslid is er een fijne plek te vinden. Het gevoel van sfeer en karakter wordt buiten voortgezet, vanuit de keuken loop je naar het overdekte vlonderterras met buitenkeuken en haard voor de gezelligheid. De tuinaanleg heeft een mooie balans tussen een strakke afwerking, maar toch groen en onderhoudsvriendelijk. Ook in de avond is het werkelijk een plaatje om te zien als de tuinlampjes branden, hier blijf je urenlang genieten van een zomeravond. Karakter, wooncomfort en veel ruimte, wat een geweldige combinatie. Wat ons betreft eentje om verliefd op te worden!

Gulpen is letterlijk het hart van Heuvellandgemeente Gulpen-Wittem. Dit sfeerrijke dorp met uitvalswegen naar Maastricht en Aken is de echte centrumkern, dat maakt het er prettig wonen. Daar zijn vele redenen voor te noemen. Allereerst een uitstekend voorzieningenniveau, denk daarbij aan een uitgebreid en gevarieerd winkelaanbod in het gezellig winkelcentrum met onder meer supermarkten, bakkers, slagers, speciaalzaken en leuke kledingboetiekjes. Maar ook basis en voortgezet onderwijs, kinderopvang en medische voorzieningen zijn aanwezig. Tenslotte zorgt het busstation er voor dat vanuit Gulpen alle kanten op gereisd kan worden met openbaar vervoer. Natuurlijk reis je ook snel met de auto naar uitvalswegen en steden als Maastricht, Aken en Heerlen. Naast deze praktische voordelen heeft Gulpen ook veel sfeer en gezelligheid te bieden. In het centrum zijn vele horecazaken te vinden in alle soorten en maten, zodat eenieder er naar zijn smaak gezellig kan vertoeven. Tenslotte wordt het dorp omringd door het groene Heuvellandschap, heerlijk voor vele wandel- of fietstochten.

Bijzonderheden
- Bouwjaar 1931
- Spouwmuurisolatie aangebracht in 2019
- In 2009 zijn de gevels gezandstraald, gevoegd en geïmpregneerd
- Het hoofddak is inclusief isolatie vernieuwd in circa 2000, het platte dak inclusief isolatie is vernieuwd in 2016
- De woning heeft houten en kunststoffen kozijnen, vrijwel volledig voorzien van HR++ beglazing
- De begane grond vloer is voorzien van isolatie
- Verwarming middels Intergas HR combi ketel (installatiejaar 2016, eigendom), twee Mondena pelletkachels (installatiejaar 2019, eigendom), twee Toschiba airconditonings (installatiejaar 2021, eigendom)
- 14 zonnepanelen, installatiejaar 2023, eigendom
- Keuken en badkamer zijn vernieuwd in 2007
- Aanvaarding in overleg

Globale indeling
Souterrain
Provisiekelder

Begane grond
Entree, hal voorzien van tegelvloer, trapopgang
Toilet voorzien van hangend closet, fontein, halfhoog betegeld
Woonkeuken met zit-, eet- en kookgedeelte, voorzien van eiken parketvloer, pelletkachel, airconditioning en dubbele deuren naar de tuin. Kookeiland met 5 pits gaskookplaat, RVS afzuigkap, oven, magnetron, vaatwasser, koelkast kokend waterkraan.
Badkamer voorzien van dubbele wastafel, ligbad met whirlpoolfunctie, douche en hangend closet
Woonkamer voorzien van plavuizenvloer met vloerverwarming, pelletkachel en airconditioning
Bijkeuken met aanrechtblok, witgoedaansluiting en toegang naar de garage en bergzolder
Garage met sectionaalpoort en zijdeur

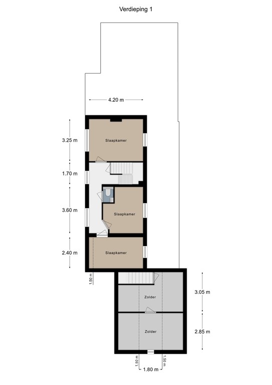
Eerste verdieping
Overloop
Toilet voorzien van hangend closet en fontein, halfhoog betegeld
Slaapkamer I 
Slaapkamer II
Slaapkamer III
De overloop en slaapkamers zijn voorzien van houten vloeren

Tweede verdieping
Via vaste trap bereikbare zolderverdieping
Slaapkamer IV met laminaatvloer, dakraam en bergkast
Dubbele bergzolder met CV installatie en wastafel

Kenmerken