Beschrijving

Gelegen aan de rand van Gulpen, tegen de helling van de Gulperberg met mooi zicht over de regio, ligt dit ruimtewonder van een geschakelde woning met balkon, terras en inpandige garage. Het pand werd van origine gebouwd omstreeks 1974 en verbouwd in 1988, inmiddels is het toe aan een modernisering naar de wensen van de huidige tijd. Met een woonoppervlak van maar liefst 231 m2 en overig inpandige ruimte van 79 m2 heeft het pand enorm veel ruimte te bieden. De liefhebber van royaal wonen komt hier dus zeker aan zijn trekken, maar denk bijvoorbeeld ook eens aan mantelzorg of aan huis gebonden beroep. Zo heeft het huis maar liefst 6 slaapkamers en 2 badkamers, een ruime woonkamer met aansluitend een praktische keuken, en er is een groot souterrain met garage en diverse kelders. De ligging is heel aantrekkelijk, heerlijk rustig met weinig autoverkeer maar toch ook nabij het centrum van levendig Gulpen. En als kers op de taart grenst je huis direct aan de natuur van de Gulperberg en loop je dus direct het groen in. Een niet alledaags huis met veel potentie, kom jij een kijkje nemen?

Gulpen is letterlijk het hart van Heuvellandgemeente Gulpen-Wittem. Dit vriendelijke dorp met uitvalswegen naar Maastricht en Aken is de echte centrumkern, en dat maakt het er prettig wonen. Daar zijn vele redenen voor te benoemen. Allereerst een uitstekend voorzieningenniveau, denk daarbij aan een uitgebreid en gevarieerd winkelaanbod in het gezellige winkelcentrum. Maar ook basis en voortgezet onderwijs en medische voorzieningen zijn aanwezig. Tenslotte zorgt het busstation er voor dat vanuit Gulpen alle kanten op gereisd kan worden met openbaar vervoer. Naast deze praktische voordelen heeft Gulpen ook sfeer en gezelligheid te bieden. In het centrum zijn vele horecazaken te vinden, zodat eenieder er naar zijn smaak gezellig kan vertoeven. Tenslotte wordt het dorp omringd door het groene Heuvellandschap, heerlijk voor vele wandel- of fietstochten.

Bijzonderheden
- Bouwjaar circa 1974, verbouwd in 1988
- Grotendeels voorzien van houten kozijnen met dubbele beglazing, deels rolluiken. De schuifpui in de woonkamer is in kunststof met HR beglazing
- HR CV installatie, Vaillant, bouwjaar 2014, eigendom. Twee gehuurde elektrische boilers voor de warmwatervoorziening
- Aanvaarding in overleg

Globale indeling
Souterrain
Portaal met trapopgang
Kelder I
Garage voorzien van kantelpoort en tegelvloer
Dubbele kelder met CV installatie

Begane grond
Entree, hal met tegelvloer, meterkast, trapopgang
Werk/slaapkamer I met vloerbedekking
Slaapkamer II vloerbedekking
Slaapkamer III met vloerbedekking en dubbele tuindeur
Badkamer voorzien van ligbad, wastafel en staand toilet, bergkast met boiler
Toilet voorzien van staand closet en fontein
Gesloten keuken voorzien van  tegelvloer en aanbouwinstallatie met de volgende apparatuur: inductiekookplaat, RVS afzuigkap, oven, magnetron. Klein balkon
L-vormige woonkamer met parketvloer en schouw, toegang tot het balkon

Eerste verdieping
Overloop
Slaapkamer IV met vloerbedekking en toegang naar het dakterras
Slaapkamer V met dakkapel
Wasruimte met witgoedaansluiting, boiler en tegelvloer
Slaapkamer VI/studio met kastenwand, vloerbedekking
Ensuite badkamer met dubbele wastafel, douche en staand closet

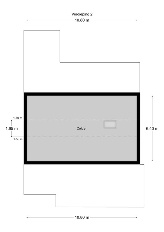
Tweede verdieping
Via vlizotrap bereikbare bergzolder

Kenmerken