Beschrijving

Een keurig verzorgde, goed onderhouden én deels gemoderniseerde 2-onder-1 kapwoning met praktisch bijgebouw en tuin gelegen in centrumkern Gulpen. Deze prima starterswoning is gebouwd in 1960 en is gelegen in woonwijk “de Rus” op loopafstand van het gezellige centrum van het dorp, waar alle winkels, busstation, andere voorzieningen en leuke terrasjes voorhanden zijn. Op de begane grond beschikt de woning over een fijne leefruimte bestaande uit een woon- en eetkamer, met aansluitend de keuken die vernieuwd is in 2021. Op de eerste verdieping vinden we drie goed bemeten slaapkamers en een gedateerde badkamer die een goed formaat heeft. De per vlizotrap bereikbare bergzolder heeft voldoende ruimte voor al je opslag De diepe tuin met dubbele buitenberging is gelegen op het Westen, een fijne ligging om van de avondzon te kunnen genieten. Aan de linkerzijde van de woning ligt er genoeg ruimte om een flinke oprit te realiseren voor ruime parkeergelegenheid op eigen terrein.

Gulpen is letterlijk het hart van Heuvellandgemeente Gulpen-Wittem. Dit sfeerrijke dorp met uitvalswegen naar Maastricht en Aken is de echte centrumkern, dat maakt het er prettig wonen. Daar zijn vele redenen voor te noemen. Allereerst een uitstekend voorzieningenniveau, denk daarbij aan een uitgebreid en gevarieerd winkelaanbod in het gezellig winkelcentrum met onder meer supermarkten, bakkers, slagers, speciaalzaken en leuke kledingboetiekjes. Maar ook basis en voortgezet onderwijs, kinderopvang en medische voorzieningen zijn aanwezig. Tenslotte zorgt het busstation er voor dat vanuit Gulpen alle kanten op gereisd kan worden met openbaar vervoer. Natuurlijk reis je ook snel met de auto naar uitvalswegen en steden als Maastricht, Aken en Heerlen. Naast deze praktische voordelen heeft Gulpen ook veel sfeer en gezelligheid te bieden. In het centrum zijn vele horecazaken te vinden in alle soorten en maten, zodat eenieder er naar zijn smaak gezellig kan vertoeven. Tenslotte wordt het dorp omringd door het groene Heuvellandschap, heerlijk voor vele wandel- of fietstochten.

Bijzonderheden
- Hardhouten kozijnen voorzien van dubbele HR beglazing
- De gevels zijn nageïsoleerd, voorzien van EPS HR++ spouwisolatie
- De zoldervloer is geïsoleerd 
- Radson CV installatie, bouwjaar 1997, eigendom
- Warmwatervoorziening middels elektrische boiler, huur (de huurovereenkomst wordt overgedragen aan de koper)
- Er zijn 10 zonnepanelen geinstalleerd, installatiejaar 2023, eigendom, 405 Wp per stuk
- De meterkast is vernieuwd in 2021
- De keuken is vernieuwd in 2021

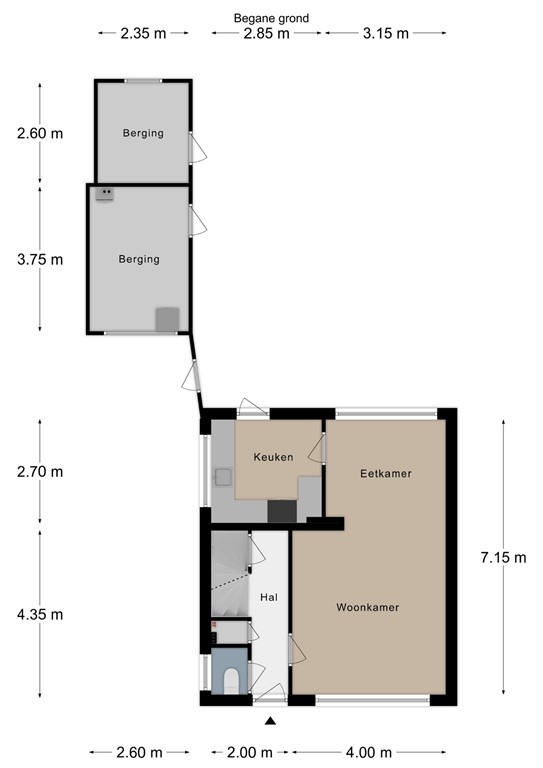
Globale indeling
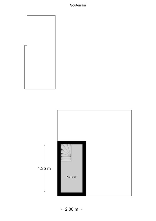
Souterrain
Provisiekelder

Begane grond
Entree, hal voorzien van laminaatvloer, meterkast en trapopgang
Toilet voorzien van staand closet, half hoog betegeld
Woonkamer voorzien van visgraat parketvloer
Gesloten keuken voorzien van tegellaminaatvloer en enkele deur naar de tuin, aanbouwinstallatie met de volgende apparatuur: Smeg 6 pits gasfornuis met dubbele oven, afzuigkap, koelkast en vaatwasser

Eerste verdieping
Overloop
Slaapkamer I
Slaapkamer II
Slaapkamer III
De overloop en slaapkamers zijn voorzien van een laminaatvloer
Badkamer voorzien van wastafel en douche, 3/4 deel betegeld

Tweede verdieping
Via vlizotrap bereikbare bergzolder

Extern
Dubbele buitenberging met witgoedaansluiting en CV installatie

Kenmerken