Beschrijving

Het centrum van Gulpen staat bekend als het bruisende hart van de regio, in één van de oudste straatjes van het dorp ligt dit multifunctionele pand, nu in gebruik als woonhuis en slagerij, met garage, erf, tuin en oprit. De brede gevel met fraaie raamomlijstingen geven het pand veel karakter. Aan de linkerzijde vinden we op huisnummer 9 het woonhuis met een royaal woonoppervlak, dat alleen al is een ruimtewonder. Aan de rechterzijde, gesitueerd op huisnummer 11, behoort vervolgens de slagerij met winkel en toebehoren tot het aanbod. Het gehele pand heeft een vloeroppervlak van maar liefst 447 m2, je kunt raden dat er dan ook vele opties zijn om je eigen invulling te gaan geven aan dit object. De bestemming geeft brede mogelijkheden zoals detailhandel, dienstverlening, horeca, kantoor of wonen. Aan de achterzijde ligt een privacyvolle tuin met terrasoverkapping en garage. De eigen oprit zorgt voor parkeergelegenheid en bereikbaarheid van je achtererf, zeker van belang voor een centrum locatie. Of je nu wonen en werken wilt in hartje centrum, een herontwikkeling voor belegging of een ondernemersdroom hebt, hier kun je er mee aan de slag. De ligging in de Rosstraat net om de hoek bij de drukke markt alsook met de Gulpener Bierbrouwerij, de Kerk en het Gulperhoes als directe buren maakt dat er een gezellige levendigheid om je heen te vinden is. 

Gulpen is letterlijk het hart van Heuvellandgemeente Gulpen-Wittem. Dit sfeerrijke dorp met uitvalswegen naar Maastricht en Aken is de echte centrumkern, dat maakt het er prettig wonen. Daar zijn vele redenen voor te noemen. Allereerst een uitstekend voorzieningenniveau, denk daarbij aan een uitgebreid en gevarieerd winkelaanbod in het gezellig winkelcentrum met onder meer supermarkten, bakkers, slagers, speciaalzaken en leuke kledingboetiekjes. Maar ook basis en voortgezet onderwijs, kinderopvang en medische voorzieningen zijn aanwezig. Tenslotte zorgt het busstation er voor dat vanuit Gulpen alle kanten op gereisd kan worden met openbaar vervoer. Natuurlijk reis je ook snel met de auto naar uitvalswegen en steden als Maastricht, Aken en Heerlen. Naast deze praktische voordelen heeft Gulpen ook veel sfeer en gezelligheid te bieden. In het centrum zijn vele horecazaken te vinden in alle soorten en maten, zodat eenieder er naar zijn smaak gezellig kan vertoeven. Tenslotte wordt het dorp omringd door het groene Heuvellandschap, heerlijk voor vele wandel- of fietstochten.

Bijzonderheden
-  Bestemming Centrum-1 en Groen. Daaronder valt gebruik zoals: consumentverzorgende en kleinschalige ambachtelijke bedrijven; detailhandel; dienstverlening; horeca; kantoren; kleinschalige recreatieve voorzieningen;
wonen. De koper dient een nadere invulling af te stemmen met gemeente Gulpen-Wittem
- De voorzijde van het hoofddak is in 2013 vernieuwd. Een plat dak is circa 20 jaar geleden vernieuwd, de twee andere platte daken zijn vernieuwd in 2024.
- Het pand heeft vrijwel volledig kunststoffen kozijnen met dubbele HR++ beglazing
- HR combi CV installatie, Nefit Trendline, installatiejaar 2020, eigendom
- Energielabel E voor Rosstraat 9, energielabel A voor Rosstraat 11
- Aanvaarding in overleg

Globale indeling
Souterrain
Kelder I met waterontharder
Kelder II

Begane grond
Entree, hal met travertinvloer en trapopgang, dubbele deuren 
Toilet voorzien van staand closet en fontein
Woonkamer voorzien van travertinvloer, dubbele deuren naar de keuken
Gesloten keuken voorzien van tegelvloer, aanbouwinstallatie met keramische kookplaat, afzuigkap, oven, vaatwasser en koelkast. Enkele deur naar de terrasoverkapping
Bijkeuken met tegelvloer en witgoedaansluiting
Binnenhal met meterkast en bergkast
Toilet voorzien van staand closet en fontein
Winkel/bedrijfsruimte met toonbank met koelvitrine, plavuizenvloer, winkelpui met enkele deur
Koelcel I
Slagerij met lichtkoepels en meterkast
Koelcel II
Berging met enkele deur naar het achtererf
Berging met CV installatie
Garage met sectionale poort

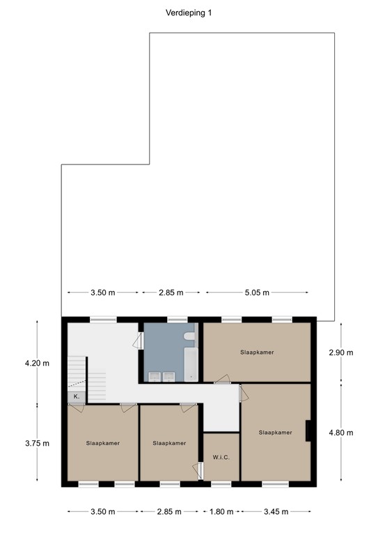
Eerste verdieping
Overloop met vloerbedekking
Slaapkamer I met vloerbedekking
Slaapkamer II met laminaatvloer, inloop kleedruimte
Slaapkamer III met laminaatvloer
Slaapkamer IV met vloerbedekking
Badkamer voorzien van dubbele wastafel, ligbad en hangend closet

Tweede verdieping
Via vaste trap bereikbare slaapkamer V met laminaatvloer
Via vlizotrap bereikbare grote bergzolder

Kenmerken