Met een eigen account kun je panden volgen, opslaan als favoriet, je zoekprofiel opslaan en jouw eigen notities bij een huis maken.
Algemeen
De Braak 7 in Hegelsom;: mooie én rustige woonlocatie in de kern van Hegelsom!
Ideaal als u een zeer solide woning zoekt, met veel extra ruimte op de begane grond en verdieping.
Natuurlijk is de tweede verdieping ideaal als u vanuit thuis werkt.
U kijkt vanuit de woning uit op het groene plein en de speelplaats voor de kinderen…
Ideaal als u een zeer solide woning zoekt, met veel extra ruimte op de begane grond en verdieping.
Natuurlijk is de tweede verdieping ideaal als u vanuit thuis werkt.
U kijkt vanuit de woning uit op het groene plein en de speelplaats voor de kinderen…
-
Kenmerken
Alle kenmerken Type object Woonhuis, eengezinswoning, vrijstaande woning Bouwperiode 1983 Aangeboden sinds Vrijdag 23 januari 2026 -
Locatie
Kenmerken
| Overdracht | |
|---|---|
| Referentienummer | 05492 |
| Vraagprijs | € 585.000,- k.k. |
| Aanvaarding | In overleg |
| Aangeboden sinds | Vrijdag 23 januari 2026 |
| Bouw | |
|---|---|
| Type object | Woonhuis, eengezinswoning, vrijstaande woning |
| Soort bouw | Bestaande bouw |
| Bouwperiode | 1983 |
| Dakbedekking | Dakpannen |
| Type dak | Zadeldak |
| Isolatievormen | Dakisolatie, Grotendeels dubbel glas, HR-glas, Muurisolatie, Spouwmuren, Vloerisolatie |
| Oppervlaktes en inhoud | |
|---|---|
| Perceeloppervlakte | 409 m² |
| Woonoppervlakte | 157 m² |
| Woonkameroppervlakte | 38 m² |
| Keukenoppervlakte | 12,3 m² |
| Inhoud | 733 m³ |
| Oppervlakte overige inpandige ruimten | 40 m² |
| Oppervlakte externe bergruimte | 5,7 m² |
| Indeling | |
|---|---|
| Aantal bouwlagen | 3 |
| Aantal kamers | 5 (waarvan 4 slaapkamers) |
| Aantal badkamers | 1 |
| Locatie | |
|---|---|
| Ligging | Dichtbij openbaar vervoer, In woonwijk, Nabij school, Nabij snelweg |
| Tuin | |
|---|---|
| Type | Tuin rondom |
| Hoofdtuin | Ja |
| Oriëntering | Zuid-west |
| Heeft een achterom | Ja |
| Staat | Normaal |
| Energieverbruik | |
|---|---|
| Energielabel | C |
| CV ketel | |
|---|---|
| CV ketel | Nefit HR |
| Warmtebron | Gas |
| Bouwjaar | 2020 |
| Eigendom | Eigendom |
| Uitrusting | |
|---|---|
| Aantal parkeerplaatsen | 2 |
| Warm water | CV-ketel |
| Verwarmingssysteem | Centrale verwarming, Open haard |
| Keukenvoorzieningen | Inbouwapparatuur |
| Badkamervoorzieningen | Douche, Ligbad, Toilet, Wastafel |
| Parkeergelegenheid | Aangebouwde stenen garage |
| Heeft een open haard | Ja |
| Tuin aanwezig | Ja |
| Heeft een garage | Ja |
| Kadastrale gegevens | |
|---|---|
| Kadastrale aanduiding | Horst Aan De Maas M 1503 |
| Perceeloppervlakte | 390 m² |
| Omvang | Geheel perceel |
| Eigendomsituatie | Eigen grond |
| Kadastrale aanduiding | Horst Aan De Maas M 1504 |
| Perceeloppervlakte | 19 m² |
| Eigendomsituatie | Eigen grond |
Beschrijving
De Braak 7 in Hegelsom;: mooie én rustige woonlocatie in de kern van Hegelsom!
Ideaal als u een zeer solide woning zoekt, met veel extra ruimte op de begane grond en verdieping.
Natuurlijk is de tweede verdieping ideaal als u vanuit thuis werkt.
U kijkt vanuit de woning uit op het groene plein en de speelplaats voor de kinderen…
Ideaal als u een zeer solide woning zoekt, met veel extra ruimte op de begane grond en verdieping.
Natuurlijk is de tweede verdieping ideaal als u vanuit thuis werkt.
U kijkt vanuit de woning uit op het groene plein en de speelplaats voor de kinderen…
Indeling
VRIJSTAANDE WONING MET AANBOUW, GARAGE EN TUIN
Dit woonhuis aan de Braak 7 5963 BA te Hegelsom is in 1983 gebouwd. In de afgelopen jaren is deze woning nagenoeg geheel verbouwd tot een luxe te beleven woonhuis op een perceel van 409 m2. De achtertuin is gelegen op het zuidwesten… dus genieten van de zon!
Kadastraal bekend: Gemeente Horst sectie M nummer 1503 groot 390 m2 en Gemeente Horst sectie M nummer 1504 groot 19 m2 . Deze woning met ruime voortuin, oprit en achtertuin met vrije achterom is gelegen in een fijne én rustige woonomgeving in Hegelsom. U woont op enkele honderden meters van de kern en op enkele minuten rijden van het centrum van Horst met het mooie plein, diverse winkels en horeca. De A73 is in 5 minuten,- en de A67 Venlo-Eindhoven, is in 10 minuten te bereiken. Station Horst-Sevenum is 7 minuten fietsen. Het basisonderwijs is op loopafstand gelegen en het voortgezet onderwijs en overige voorzieningen zijn in Horst in voldoende mate aanwezig. In de omgeving zijn diverse sportvoorzieningen en jeugdclubs actief. Het wonen én leven is er aangenaam. Centrum Horst is zo’n 7 minuutjes fietsen… wel zo makkelijk! In en rondom Hegelsom zijn diverse landmarks in de vorm van letters welke samen “Hegelsom” vormen”. Dit staat voor een krachtige identiteit! U kunt er heerlijk wandelen en genieten van de natuur in het nabij gelegen natuurgebied “het Ham”.
Constructie en materialen
• bouwjaar : 1983
• begane grond vloer : betonvloer
• 1e verdiepingsvloer : betonvloer, deels houten vloer zolder garage
• 2e verdiepingsvloer : betonvloer
• wanden : buiten spouwblad; baksteen
: binnen spouwblad; baksteen
• dak : zadeldak, stalen spanten en houten gordingen.
Het dak is beschoten met geïsoleerde plaat en met pannen gedekt.
De binnenzijde is geheel geïsoleerd en afgetimmerd.
De aanbouw aan de achterzijde is voorzien van eveneens een zadeldak.
• kozijnen : De buitenkozijnen zijn uitgevoerd in hardhout en voorzien van thermopane glaswerk.
De binnen kozijnen zijn uitgevoerd in hout en voorzien van paneeldeuren en ook een fraaie stalen glasdeur.
• isolatie : thermopane glaswerk, spouwmuurisolatie, dakisolatie
• inhoud : woonhuis met aanbouw; 733 m3
• woonoppervlakte : 157 m2, overige gebruiksruimte 40 m2
• cv-installatie : Nefit HR-combi ketel (2020), verwarming middels vloerverwarming en radiatoren.
• energielabel : C, geldig tot 23-10-2035
Indeling begane grond
woonkamer (38 m2)
Het betreft een ruime woonkamer in L-vorm welke verdeeld is in een eetgedeelte en een zitgedeelte.
Leuk onderbroken door de gesloten houthaard met glazen deur in de hoek. Aan de zijkant is een toegang tot de tuin middels een loopdeur.
Hierdoor is een leuke plek als zithoek met fijne lichtinval ontstaan. De vloer op de begane grond is geheel doorlopend voorzien van een fraaie tegelvloer.
De toegang tot de hal is middels een stalen deur met glas. Hierdoor is een open en strakke uitstraling ontstaan.
keuken (12.3 m2)
Deze ruime keuken is ingericht met een inbouwkeuken van kunststof en kunststof blad met spoelbak, inductie kooktoestel, afzuigkap, stoomoven, vaatwasser, koffiezetapparaat, koelkast en warmhoudlade. Deze keuken is opgezet in L-vorm. Vanuit de keuken is er toegang tot de bijkeuken aan de achterzijde.
U kunt in deze zeer complete keuken naar hartenlust kokkerellen… een fijne én lichte werkplek
bijkeuken (8.2 m2)
Deze ruimte is vanaf de achterzijde,-vanuit het terras toegankelijk. Hier staan tevens de wasmachine en droger opgesteld. Tevens is er een opbergkast.
hal (7 m2)
De hal is eveneens voorzien dezelfde tegelvoer. Hier is de meterkast geplaatst met een schakel- verdeelkast. Tevens bevindt zich hier de garderobe en het toilet. Middels de zeer fraaie hardhouten trap bereikt u de verdieping.
toilet (1.2 m2)
De toiletruimte is voorzien van een hangend closet.
garage (21.3 m2)
Deze ruime garage is toegankelijk vanuit de oprit middels de met Red Cedar beklede kanteldeur. Tevens is er een aparte loopdeur. Tevens is de zolderruimte boven de garage en aanbouw bereikbaar via de vaste trap. Deze zolder is 21.5 m2 gemeten op de 1.50 meterlijn.
Indeling 1e verdieping
overloop (6 m2 )
De overloop geeft toegang tot de slaapkamers en badkamer. Tevens is de tweede verdieping bereikbaar via de fraaie hardhouten trap.
slaapkamers (10 m2, 16.3 m2, 11.9 m2,)
De ruim opgezette slaapkamers zijn voorzien van laminaat vloer en Novilon vloer.
badkamer (6.8 m2)
De badkamer is geheel betegeld en voorzien van een wastafel, douche, ligbad en toilet.
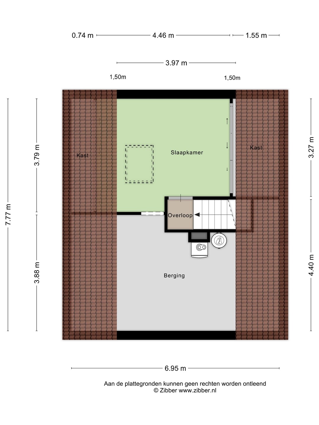
Indeling 2e verdieping
overloop (1 m2)
De overloop geeft toegang tot de hobbyruimte/slaapkamer.
Hobbyruimte/slaapkamer (14 m2 op 1.50 meter)
Deze ruimte is voorzien van opbergkasten met schuifdeuren onder de schuine wand. Daglicht via een Velux dakraam.
zolder (15 m2 op 1.50 meter)
De zolder is in gebruik als bergruimte. Tevens is de cv-installatie en boiler hier opgesteld.
tuin
De achtertuin is ingericht met een ruim verhard terras. Het betreft een tuin met een goede privacy. U kunt aan de achterzijde op het terras heerlijk én beschut zitten. Deze tuin is op het zuidwesten gelegen. Het houten tuinhuis is ideaal voor hobby en opslag van uw tuingereedschap
Algemeen
Deze zeer ruim opgezette woning is ideaal als u een zeer solide woning zoekt, met veel extra ruimte op de begane grond en verdieping. Natuurlijk is de tweede verdieping ideaal als u vanuit thuis werkt. U kijkt vanuit de woning uit op het groene plein en de speelplaats voor de kinderen…
Kortom een zeer goed onderhouden en gemoderniseerd woonhuis welk op enkele delen een update kan gebruiken op een hele rustige én kindvriendelijke woonlocatie in Hegelsom!
Dit woonhuis aan de Braak 7 5963 BA te Hegelsom is in 1983 gebouwd. In de afgelopen jaren is deze woning nagenoeg geheel verbouwd tot een luxe te beleven woonhuis op een perceel van 409 m2. De achtertuin is gelegen op het zuidwesten… dus genieten van de zon!
Kadastraal bekend: Gemeente Horst sectie M nummer 1503 groot 390 m2 en Gemeente Horst sectie M nummer 1504 groot 19 m2 . Deze woning met ruime voortuin, oprit en achtertuin met vrije achterom is gelegen in een fijne én rustige woonomgeving in Hegelsom. U woont op enkele honderden meters van de kern en op enkele minuten rijden van het centrum van Horst met het mooie plein, diverse winkels en horeca. De A73 is in 5 minuten,- en de A67 Venlo-Eindhoven, is in 10 minuten te bereiken. Station Horst-Sevenum is 7 minuten fietsen. Het basisonderwijs is op loopafstand gelegen en het voortgezet onderwijs en overige voorzieningen zijn in Horst in voldoende mate aanwezig. In de omgeving zijn diverse sportvoorzieningen en jeugdclubs actief. Het wonen én leven is er aangenaam. Centrum Horst is zo’n 7 minuutjes fietsen… wel zo makkelijk! In en rondom Hegelsom zijn diverse landmarks in de vorm van letters welke samen “Hegelsom” vormen”. Dit staat voor een krachtige identiteit! U kunt er heerlijk wandelen en genieten van de natuur in het nabij gelegen natuurgebied “het Ham”.
Constructie en materialen
• bouwjaar : 1983
• begane grond vloer : betonvloer
• 1e verdiepingsvloer : betonvloer, deels houten vloer zolder garage
• 2e verdiepingsvloer : betonvloer
• wanden : buiten spouwblad; baksteen
: binnen spouwblad; baksteen
• dak : zadeldak, stalen spanten en houten gordingen.
Het dak is beschoten met geïsoleerde plaat en met pannen gedekt.
De binnenzijde is geheel geïsoleerd en afgetimmerd.
De aanbouw aan de achterzijde is voorzien van eveneens een zadeldak.
• kozijnen : De buitenkozijnen zijn uitgevoerd in hardhout en voorzien van thermopane glaswerk.
De binnen kozijnen zijn uitgevoerd in hout en voorzien van paneeldeuren en ook een fraaie stalen glasdeur.
• isolatie : thermopane glaswerk, spouwmuurisolatie, dakisolatie
• inhoud : woonhuis met aanbouw; 733 m3
• woonoppervlakte : 157 m2, overige gebruiksruimte 40 m2
• cv-installatie : Nefit HR-combi ketel (2020), verwarming middels vloerverwarming en radiatoren.
• energielabel : C, geldig tot 23-10-2035
Indeling begane grond
woonkamer (38 m2)
Het betreft een ruime woonkamer in L-vorm welke verdeeld is in een eetgedeelte en een zitgedeelte.
Leuk onderbroken door de gesloten houthaard met glazen deur in de hoek. Aan de zijkant is een toegang tot de tuin middels een loopdeur.
Hierdoor is een leuke plek als zithoek met fijne lichtinval ontstaan. De vloer op de begane grond is geheel doorlopend voorzien van een fraaie tegelvloer.
De toegang tot de hal is middels een stalen deur met glas. Hierdoor is een open en strakke uitstraling ontstaan.
keuken (12.3 m2)
Deze ruime keuken is ingericht met een inbouwkeuken van kunststof en kunststof blad met spoelbak, inductie kooktoestel, afzuigkap, stoomoven, vaatwasser, koffiezetapparaat, koelkast en warmhoudlade. Deze keuken is opgezet in L-vorm. Vanuit de keuken is er toegang tot de bijkeuken aan de achterzijde.
U kunt in deze zeer complete keuken naar hartenlust kokkerellen… een fijne én lichte werkplek
bijkeuken (8.2 m2)
Deze ruimte is vanaf de achterzijde,-vanuit het terras toegankelijk. Hier staan tevens de wasmachine en droger opgesteld. Tevens is er een opbergkast.
hal (7 m2)
De hal is eveneens voorzien dezelfde tegelvoer. Hier is de meterkast geplaatst met een schakel- verdeelkast. Tevens bevindt zich hier de garderobe en het toilet. Middels de zeer fraaie hardhouten trap bereikt u de verdieping.
toilet (1.2 m2)
De toiletruimte is voorzien van een hangend closet.
garage (21.3 m2)
Deze ruime garage is toegankelijk vanuit de oprit middels de met Red Cedar beklede kanteldeur. Tevens is er een aparte loopdeur. Tevens is de zolderruimte boven de garage en aanbouw bereikbaar via de vaste trap. Deze zolder is 21.5 m2 gemeten op de 1.50 meterlijn.
Indeling 1e verdieping
overloop (6 m2 )
De overloop geeft toegang tot de slaapkamers en badkamer. Tevens is de tweede verdieping bereikbaar via de fraaie hardhouten trap.
slaapkamers (10 m2, 16.3 m2, 11.9 m2,)
De ruim opgezette slaapkamers zijn voorzien van laminaat vloer en Novilon vloer.
badkamer (6.8 m2)
De badkamer is geheel betegeld en voorzien van een wastafel, douche, ligbad en toilet.
Indeling 2e verdieping
overloop (1 m2)
De overloop geeft toegang tot de hobbyruimte/slaapkamer.
Hobbyruimte/slaapkamer (14 m2 op 1.50 meter)
Deze ruimte is voorzien van opbergkasten met schuifdeuren onder de schuine wand. Daglicht via een Velux dakraam.
zolder (15 m2 op 1.50 meter)
De zolder is in gebruik als bergruimte. Tevens is de cv-installatie en boiler hier opgesteld.
tuin
De achtertuin is ingericht met een ruim verhard terras. Het betreft een tuin met een goede privacy. U kunt aan de achterzijde op het terras heerlijk én beschut zitten. Deze tuin is op het zuidwesten gelegen. Het houten tuinhuis is ideaal voor hobby en opslag van uw tuingereedschap
Algemeen
Deze zeer ruim opgezette woning is ideaal als u een zeer solide woning zoekt, met veel extra ruimte op de begane grond en verdieping. Natuurlijk is de tweede verdieping ideaal als u vanuit thuis werkt. U kijkt vanuit de woning uit op het groene plein en de speelplaats voor de kinderen…
Kortom een zeer goed onderhouden en gemoderniseerd woonhuis welk op enkele delen een update kan gebruiken op een hele rustige én kindvriendelijke woonlocatie in Hegelsom!