Beschrijving

Hoogveld 3a Hunsel

Ben je op zoek naar een heerlijke vrijstaande woning met veel leefruimte en een fijne tuin?
Dan is deze vrijstaande woning met tuin op zuidwesten echt iets voor jou! 

Deze vrijstaande woning is gesitueerd op een mooi rechthoekig perceel met gunstige zonneligging en een magnifiek vrij en landelijk uitzicht vanuit de achtertuin. 

Deze vrijstaande woning beschikt over een prima en praktisch programma:
-	Mooie woonkamer met veel licht, keuken, aanpandige garage en achterom;
-	Overloop met 3 slaapkamers en een fijne badkamer;
-	Vaste trap naar ruime zolder, in 2 compartimenten verdeeld, die het geheel completeert. 

Deze vrijstaande woning is geheel uitgerust met meranti hardhouten buitenkozijnen met dubbele beglazing en veel raamvleugels zijn in draai-kiep uitgevoerd en uitgerust met liefst 14 recent geplaatste zonnepanelen! Kortom, een heerlijke woning op een heerlijk perceel!

Indeling

Begane grond

Entree is in de hal aan de zijgevel gesitueerd, hieraan zijn gelegen de trap, deur naar woonkamer, meterkast en de toiletruimte. Meterkast is modern uitgevoerd en v.v. glasvezel.

Woonkamer en keuken zijn gemoderniseerd, uitgevoerd met moderne donker antracietgrijze tegelvloer met vloerverwarming, strakke wanden en wit stucplafond. De veelheid aan ramen maakt dat dit een heerlijke lichte ruimte is.
 
Aansluitend aan achterzijde/zijkant komt de keuken met een royale L-vormige opstelling en die is uitgevoerd in gebroken wit en contrasterende moderne donkere kastenwand en groot composiet werkblad. De keuken is van alle gemakken voorzien met een 5-pits gaskookplaat, afzuigkap, combi-oven, vaatwasser en koelkast. 

Aansluitend via de keuken is aan de achtergevel een fijne overkapping geplaats van waaruit een werkelijk magnifiek uitzicht over de mooie tuin en achter gelegen landerijen geboden wordt. Deze tuin heeft een heerlijke zonne-ligging en biedt optimale privacy.

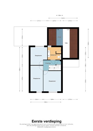
Eerste verdieping

Op de eerste verdieping zijn drie slaapkamers gesitueerd die allen netjes afgewerkt zijn met moderne antraciet vinylvloer en strakke wanden en licht stucplafond. Alle drie de slaapkamers beschikken over een praktisch draai-kiep-vleugel in raamkozijn. Ook zijn de kamers, inclusief badkamer, uitgerust met rolluik.

De badkamer is gemoderniseerd en uitgerust met een wastafelmeubel met twee wastafels, een fijne inloop-douche en een wandcloset. De badkamer is in mooi en stijlvol tegelwerk uitgevoerd en de douche is v.v. een hand- en regendouche. 
 
Zolder 

Via de overloop biedt een praktische vaste trap toegang tot de zolderverdieping. Deze zolder is geheel afgewerkt met een goed isolatieplaten-kapwerk en een groot dakvenster in een der dakvlakken aan de voorkant van de zolder, waardoor aan de voorzijde een prettige verblijfsruimte gecreëerd is. Aan de achterzijde is de Nefit HR-ketel gesitueerd en zijn ook de wasautomaat en wasdroger geplaatst. De voorzolder is aan voorzijde prima bruikbaar als vierde slaapkamer, studeer- of werkkamer. 

Buitenruimte

Een van de pluspunten van deze fijne woning is de unieke tuinsetting. Een werkelijk heerlijke tuin met optimale privacy en een fantastische beleving en vrij uitzicht. 

De garage is uitgevoerd in spouw met een kantelpoort en een deur in de achtergevel.
Ook beschikt deze over extra bergruimte boven achterste deel van de keuken en hoge nok.

De woning is uitgevoerd met een pannendak waarop recent liefst 14 zonnepanelen geplaatst zijn.  

Bijzonderheden van deze woning:

-	Riante vrijstaande woning met garage
-	Mooie tuin op zuidwesten gelegen
-	Heerlijke overkapping aansluitend aan achtergevel
-	Woning is uitgevoerd met dubbel glas, muurisolatie, dakisolatie
-	Woonkamer en keuken zijn uitgevoerd met moderne vloerverwarming
-	Fijne moderne badkamer
-	Praktische zolderverdieping
-	Keurige staat van onderhoud

Kenmerken