Met een eigen account kun je panden volgen, opslaan als favoriet, je zoekprofiel opslaan en jouw eigen notities bij een huis maken.
Algemeen
Volgens het Van Dale Woordenboek wordt onder vakwerk verstaan: de manier van bouwen waarbij de wanden zijn samengesteld uit een geraamte van houten balken dat opgevuld wordt door een met leem bestreken vlechtwerk of met metselwerk. In het Zuid Limburgse Heuvelland zijn er vele voorbeelden van te vinden, vaak gelegen op fraaie locaties en veelal boordevol karakter. Aanvang 18e eeuw, inmiddels al... Meer informatie
-
Kenmerken
Alle kenmerken Type object Woonboerderij, woonhuis, geschakelde woning Bouwjaar 1702 Aangeboden sinds Woensdag 19 november 2025 -
Locatie
Kenmerken
| Overdracht | |
|---|---|
| Vraagprijs | € 1.050.000,- k.k. |
| Aanvaarding | In overleg |
| Aangeboden sinds | Woensdag 19 november 2025 |
| Bouw | |
|---|---|
| Type object | Woonboerderij, woonhuis, geschakelde woning |
| Soort bouw | Bestaande bouw |
| Bouwjaar | 1702 |
| Dakbedekking | Dakpannen |
| Type dak | Zadeldak |
| Isolatievormen | Gedeeltelijk dubbel glas |
| Oppervlaktes en inhoud | |
|---|---|
| Perceeloppervlakte | 3.483 m² |
| Woonoppervlakte | 243 m² |
| Inhoud | 995 m³ |
| Oppervlakte overige inpandige ruimten | 109 m² |
| Oppervlakte externe bergruimte | 9 m² |
| Oppervlakte gebouwgebonden buitenruimte | 13 m² |
| Tuinoppervlakte | 3.300 m² |
| Indeling | |
|---|---|
| Aantal bouwlagen | 3 (en 1 kelder) |
| Aantal kamers | 12 (waarvan 5 slaapkamers) |
| Locatie | |
|---|---|
| Ligging | Aan rustige weg, Vrij uitzicht |
| Tuin | |
|---|---|
| Type | Achtertuin |
| Hoofdtuin | Ja |
| Oriëntering | West |
| Heeft een achterom | Ja |
| Staat | Goed onderhouden |
| Tuin 2 - Type | Achtertuin |
| Tuin 2 - Staat | Goed onderhouden |
| Tuin 3 - Type | Zijtuin |
| Tuin 3 - Staat | Goed onderhouden |
| CV ketel | |
|---|---|
| CV ketel | Remeha |
| Warmtebron | Gas |
| Bouwjaar | 2017 |
| Combiketel | Ja |
| Eigendom | Eigendom |
| Uitrusting | |
|---|---|
| Aantal parkeerplaatsen | 6 |
| Warm water | CV-ketel |
| Verwarmingssysteem | Centrale verwarming, Houtkachel |
| Badkamervoorzieningen Badkamer 1 | Inloopdouche, Ligbad, Toilet, Wastafelmeubel |
| Badkamervoorzieningen Badkamer 2 | Douche, Toilet, Wastafelmeubel |
| Heeft een rookkanaal | Ja |
| Tuin aanwezig | Ja |
| Heeft een parkeerplaats | Ja |
| Kadastrale gegevens | |
|---|---|
| Kadastrale aanduiding | Wittem C 11319 |
| Perceeloppervlakte | 2.963 m² |
| Omvang | Geheel perceel |
| Eigendomsituatie | Eigen grond |
| Kadastrale aanduiding | Wittem C 9498 |
| Perceeloppervlakte | 520 m² |
| Omvang | Geheel perceel |
| Eigendomsituatie | Eigen grond |
Beschrijving
Volgens het Van Dale Woordenboek wordt onder vakwerk verstaan: de manier van bouwen waarbij de wanden zijn samengesteld uit een geraamte van houten balken dat opgevuld wordt door een met leem bestreken vlechtwerk of met metselwerk. In het Zuid Limburgse Heuvelland zijn er vele voorbeelden van te vinden, vaak gelegen op fraaie locaties en veelal boordevol karakter. Aanvang 18e eeuw, inmiddels al meer dan 320 jaar geleden, is een groot vakwerkhuis met geschoord dakoverstek gebouwd in het charmante dorp Mechelen. Het mag met recht een pracht exemplaar van een vakwerkhuis genoemd worden, door de eeuwen heen is er steeds met liefde voor gezorgd én er is veel aandacht geweest voor de authenticiteit van het object.
Dit Rijksmonumentale woonhuis is in alle opzichten ruim van formaat, zo heeft de woning een woonoppervlak van maar liefst 243 m2. De speelse indeling zorgt er voor dat je veel geborgenheid zult ervaren, een plek waar het echt thuis komen is. De zitkamer, eetkamer, keuken en tv kamer op de begane grond gaan vloeiend in elkaar over en vormen samen een fijne leefruimte. Heel bijzonder is vervolgens de tweede woonkamer gesitueerd op de verdieping, de vakwerkconstructie is open gewerkt en voorzien van glas waardoor je een fantastisch uitzicht hebt naar het Heuvellandschap. Er zijn maar liefst vijf slaapkamers en twee luxe badkamers te vinden op de eerste en tweede verdieping, plek voor het hele gezin is dan ook voorhanden. Heb je hobby's of misschien wel behoefte aan een werkplek aan huis? Dan biedt het atelier op de begane grond daar alle ruimte voor, maar ook de inpandige garage is een hele praktische ruimte.
Ook de buitenruimte van dit object is royaal bemeten met een totaal perceeloppervlak van 3.483 m2 omvattende het erf, de tuin met terras en de huisweide met fruitbomen die direct aansluit. Deze vakwerkboerderij ligt verscholen van de Commandeurstraat aan een klein hofje met historische bebouwing, een heel rustige ligging en gesitueerd op zuidwest. Aan de voorzijde ligt het erf met een brede kiezeloprit die toegang geeft naar achterom, op het voorerf is alle ruimte om een gezellig zitplekje te creëren waar je kunt genieten van het zonnetje. Aan de achterzijde van de woning ligt de privacyvolle tuin met terras, overdekte buitenkeuken en zitgelegenheid, gazon en streek eigen aanplant. Nog een belangrijk pluspunt is het bijgebouw op het achtererf, deze compleet vernieuwde schuur met overdekt terras is de ideale plek voor een atelier of om je lekker terug te trekken in alle rust en de groene ruimte van je eigen huisweide. Deze schuur beschikt over alle voorzieningen zoals elektra, verwarming en sanitair.
In je eigen huisweide lopen de schaapjes te grazen en pluk je kersen, pruimen, appels en peren van de volwassen fruitbomen. Of misschien ga je wel zelf jam maken van de oogst van overheerlijke bessenstruiken. Overal geniet je van veel vrijheid en het prachtige uitzicht naar het landschap. In die zin heeft dit object een unieke combinatie te bieden, je woont op een verborgen plekje in de kern van het dorp maar toch zijn de eigenschappen van buiten wonen allemaal voorhanden: er is rust, ruimte en uitzicht. Heel aangenaam is dat je ook de voordelen van wonen in een dorp meeneemt, je loopt zo naar de bakker, slager en groentewinkel of gaat een lekker hapje eten bij een van de restaurants. Ook zijn er twee apotheekhoudende huisartsenspraktijken. Maar denk ook aan praktische zaken op loopafstand zoals een bushalte, huisarts of basisschool. Uitvalswegen zijn in tien autominuten bereikt en steden als Maastricht, Heerlen en Aken zijn op een half uurtje rijden gelegen. Het wordt wel vaker gezegd, een huis moet je van binnen gezien hebben. Dat geldt zeker voor deze authentieke vakwerkboerderij, een unieke beleving in wonen staat hier voor je klaar en wij laten graag alle prachtige details zien tijdens een bezichtiging.
Mechelen is geliefd als woonplaats en daar zijn talloze redenen voor te noemen. het dorp beschikt over een relatief hoog voorzieningenniveau met onder andere basisschool, buurtsupermarkt, bakker, slager en groentewinkel. Daarnaast floreert de horeca met diverse eetgelegenheden, café en leuke terrassen. Mechelen wordt omgeven door een groot aantal buurtschappen en gehuchten. Deze buurtschappen hebben echte Limburgse benamingen zoals Hurpesch, Schweiberg, Dal Bissen, Elzet en Bommerig. Niet alleen de benamingen zijn sprekend, ook de buurtschappen zelf zijn nog echte karakteristieke plekjes met vakwerkhuizen en oude boerderijen. Het vijfsterrenlandschap is dan ook altijd snel bereikt, overal kun je genieten van de glooiende heuvels om te fietsen, wandelen of mountainbiken. Het dorp kent ook een actieve sociale gemeenschap met diverse verenigingen en kleinschalige evenementen waar je zeker welkom bent, maar ook als toeschouwer is het genieten van de echt Limburgse cultuur die dit dorp rijk is, de voorbijtrekkende Processie, de harmonie die speelt op haar muziekinstrumenten of de schutterij met een trotse schutterskoning. Uitvalswegen zijn binnen 10 autominuten bereikt, steden als Maastricht, Heerlen en Aken zijn in een half uur aan te rijden. Ook is er busverbinding richting Gulpen en Maastricht om met openbaar vervoer te kunnen reizen.
Bijzonderheden
- Rijksmonument geregistreerd onder monumentnummer 39217
- Eikenhouten kozijnen voorzien van wisselend dubbele, HR++ en enkele beglazing. Met name in de open gewerkte vakwerkconstructie van de woonkamer op de verdieping is dubbele HR++ beglazing aangebracht.
- De plafonds van de begane grond en eerste verdieping zijn voorzien van isolatie
- HR combi CV installatie, Remeha, installatiejaar circa 2017, eigendom
- De meterkast is vernieuwd in 2015
- De originele badkamer is vernieuwd in 2017 evenals het toilet op de begane grond, de andere badkamer is gerealiseerd in 2023
- De maatwerk keuken (inclusief Falcon fornuis) is geplaatst in 2016
- De balkenconstructie en gevelbedekking van de westgevel zijn grotendeels vervangen in 2017
- Het plafond van de woonkamer op de eerste verdieping is vervangen door gipsplaten en er is een houtkachel geïnstalleerd
- In de garage en atelierruimte zijn elektra en verlichting aangelegd
- De schuur is volledig gerenoveerd in 2020, geschikt gemaakt voor gebruik als atelier of gastenverblijf voor eigen gebruik voorzien van terras en bergruimte. Voorzieningen als waterleiding, elektra, sanitair, infraroodverwarming, boiler, airconditioning (koelen en warmen) en houtkachel.
- De tuin en het weiland zijn volledig nieuw ingedeeld en aangelegd, evenals realisatie van een toegangsweg en dubbele poort naar de weide en tuin.
- Het houtwerk van het huis, inclusief deuren en luiken, zijn in de afgelopen jaren onderhouden, gerestaureerd en geverfd
- Dakgoten van zowel de noordzijde als zuidzijde zijn vervangen
- Ontbrekend traliewerk op de begane grond werd toegevoegd door met de hand gesmeed traliewerk, dit is tevens een anti inbraakvoorziening.
- Aanvaarding in overleg
Globale indeling
Souterrain
Gewelfde kelder geschikt als provisieruimte
Begane grond
Entree, hal voorzien van authentieke plavuisjes, meterkast voorzien van uitgebreide automaten groepenkast
Zitkamer voorzien van plankenvloer in ossenbloed rode kleur, schouw met open haard
Eetkamer voorzien van originele plavuizen, kachel geschikt om met kolen of hout te stoken
Keuken voorzien van authentieke plavuisjes, maatwerk keuken voorzien van hardstenen blad, falcon fornuis voorzien van 5 pits gaskookplaat, drie ovens en grill, afzuigkap, vaatwasser, koelkast, muurkastjes
Televisiekamer afgewerkt met plankenvloer in ossenbloed rode kleur
Bijkeuken met enkele deur naar de tuin, tegelvloer, vaste kasten, gootsteen, witgoedaansluiting, CV ketel
Toilet voorzien van hangend closet en fontein, marmeren betegeling
Inpandige garage met dubbele poort naar het voorerf en de inrit, enkele deur aan de tuinzijde, elektrische boiler
Atelier/werkruimte voorzien van laminaat en enkele deur naar het voorerf
Eerste verdieping
Overloopruimte
Woonkamer voorzien van plankenvloer, houtkachel, opengewerkte vakwerkconstructie voorzien van beglazing met panoramisch uitzicht over het landschap
Slaapkamer I voorzien van plankenvloer in ossenbloed rode kleur
Ensuite badkamer I voorzien van keramische tegelvloer, sanitair in brons: douchecabine met regendouche en wastafelmeubel, ecotoilet, infraroodpaneel en ventilatie
Overloop met plankenvloer in ossenbloed rode kleur en getrogd plafond
Slaapkamer II voorzien van plankenvloer
Slaapkamer III voorzien van plankenvloer en kledingkasten
Badkamer II voorzien van ligbad op pootjes, inloopdouche, wastafelmeubel, hangend closet, marmeren betegeling
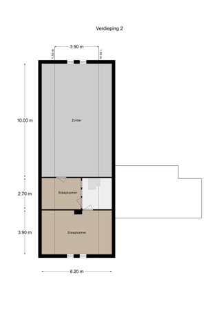
Tweede verdieping
Overloop voorzien van plankenvloer in ossenbloed rode kleur
Slaapkamer IV voorzien van vloerbedekking
Slaapkamer V voorzien van planken vloer, klein dakraam
Zolderruimte met verhuisluik
Extern
Overdekt terras
Buitenkeuken voorzien van afdak
Schuur te gebruiken als atelier, voorzien van deels overdekt vlonderterras met zonnescherm. Verblijfsgedeelte met houtkachel, open vide ruimte met airconditioning, kleine keuken voorzien van aanrechtblok met los gaskookstel, afzuigkap, koelkast en elektrische boiler, badkamer voorzien van wastafelmeubel, douchecabine, ecotoilet, infraroodpaneel. Opslagruimte met dubbele poort.
Dit Rijksmonumentale woonhuis is in alle opzichten ruim van formaat, zo heeft de woning een woonoppervlak van maar liefst 243 m2. De speelse indeling zorgt er voor dat je veel geborgenheid zult ervaren, een plek waar het echt thuis komen is. De zitkamer, eetkamer, keuken en tv kamer op de begane grond gaan vloeiend in elkaar over en vormen samen een fijne leefruimte. Heel bijzonder is vervolgens de tweede woonkamer gesitueerd op de verdieping, de vakwerkconstructie is open gewerkt en voorzien van glas waardoor je een fantastisch uitzicht hebt naar het Heuvellandschap. Er zijn maar liefst vijf slaapkamers en twee luxe badkamers te vinden op de eerste en tweede verdieping, plek voor het hele gezin is dan ook voorhanden. Heb je hobby's of misschien wel behoefte aan een werkplek aan huis? Dan biedt het atelier op de begane grond daar alle ruimte voor, maar ook de inpandige garage is een hele praktische ruimte.
Ook de buitenruimte van dit object is royaal bemeten met een totaal perceeloppervlak van 3.483 m2 omvattende het erf, de tuin met terras en de huisweide met fruitbomen die direct aansluit. Deze vakwerkboerderij ligt verscholen van de Commandeurstraat aan een klein hofje met historische bebouwing, een heel rustige ligging en gesitueerd op zuidwest. Aan de voorzijde ligt het erf met een brede kiezeloprit die toegang geeft naar achterom, op het voorerf is alle ruimte om een gezellig zitplekje te creëren waar je kunt genieten van het zonnetje. Aan de achterzijde van de woning ligt de privacyvolle tuin met terras, overdekte buitenkeuken en zitgelegenheid, gazon en streek eigen aanplant. Nog een belangrijk pluspunt is het bijgebouw op het achtererf, deze compleet vernieuwde schuur met overdekt terras is de ideale plek voor een atelier of om je lekker terug te trekken in alle rust en de groene ruimte van je eigen huisweide. Deze schuur beschikt over alle voorzieningen zoals elektra, verwarming en sanitair.
In je eigen huisweide lopen de schaapjes te grazen en pluk je kersen, pruimen, appels en peren van de volwassen fruitbomen. Of misschien ga je wel zelf jam maken van de oogst van overheerlijke bessenstruiken. Overal geniet je van veel vrijheid en het prachtige uitzicht naar het landschap. In die zin heeft dit object een unieke combinatie te bieden, je woont op een verborgen plekje in de kern van het dorp maar toch zijn de eigenschappen van buiten wonen allemaal voorhanden: er is rust, ruimte en uitzicht. Heel aangenaam is dat je ook de voordelen van wonen in een dorp meeneemt, je loopt zo naar de bakker, slager en groentewinkel of gaat een lekker hapje eten bij een van de restaurants. Ook zijn er twee apotheekhoudende huisartsenspraktijken. Maar denk ook aan praktische zaken op loopafstand zoals een bushalte, huisarts of basisschool. Uitvalswegen zijn in tien autominuten bereikt en steden als Maastricht, Heerlen en Aken zijn op een half uurtje rijden gelegen. Het wordt wel vaker gezegd, een huis moet je van binnen gezien hebben. Dat geldt zeker voor deze authentieke vakwerkboerderij, een unieke beleving in wonen staat hier voor je klaar en wij laten graag alle prachtige details zien tijdens een bezichtiging.
Mechelen is geliefd als woonplaats en daar zijn talloze redenen voor te noemen. het dorp beschikt over een relatief hoog voorzieningenniveau met onder andere basisschool, buurtsupermarkt, bakker, slager en groentewinkel. Daarnaast floreert de horeca met diverse eetgelegenheden, café en leuke terrassen. Mechelen wordt omgeven door een groot aantal buurtschappen en gehuchten. Deze buurtschappen hebben echte Limburgse benamingen zoals Hurpesch, Schweiberg, Dal Bissen, Elzet en Bommerig. Niet alleen de benamingen zijn sprekend, ook de buurtschappen zelf zijn nog echte karakteristieke plekjes met vakwerkhuizen en oude boerderijen. Het vijfsterrenlandschap is dan ook altijd snel bereikt, overal kun je genieten van de glooiende heuvels om te fietsen, wandelen of mountainbiken. Het dorp kent ook een actieve sociale gemeenschap met diverse verenigingen en kleinschalige evenementen waar je zeker welkom bent, maar ook als toeschouwer is het genieten van de echt Limburgse cultuur die dit dorp rijk is, de voorbijtrekkende Processie, de harmonie die speelt op haar muziekinstrumenten of de schutterij met een trotse schutterskoning. Uitvalswegen zijn binnen 10 autominuten bereikt, steden als Maastricht, Heerlen en Aken zijn in een half uur aan te rijden. Ook is er busverbinding richting Gulpen en Maastricht om met openbaar vervoer te kunnen reizen.
Bijzonderheden
- Rijksmonument geregistreerd onder monumentnummer 39217
- Eikenhouten kozijnen voorzien van wisselend dubbele, HR++ en enkele beglazing. Met name in de open gewerkte vakwerkconstructie van de woonkamer op de verdieping is dubbele HR++ beglazing aangebracht.
- De plafonds van de begane grond en eerste verdieping zijn voorzien van isolatie
- HR combi CV installatie, Remeha, installatiejaar circa 2017, eigendom
- De meterkast is vernieuwd in 2015
- De originele badkamer is vernieuwd in 2017 evenals het toilet op de begane grond, de andere badkamer is gerealiseerd in 2023
- De maatwerk keuken (inclusief Falcon fornuis) is geplaatst in 2016
- De balkenconstructie en gevelbedekking van de westgevel zijn grotendeels vervangen in 2017
- Het plafond van de woonkamer op de eerste verdieping is vervangen door gipsplaten en er is een houtkachel geïnstalleerd
- In de garage en atelierruimte zijn elektra en verlichting aangelegd
- De schuur is volledig gerenoveerd in 2020, geschikt gemaakt voor gebruik als atelier of gastenverblijf voor eigen gebruik voorzien van terras en bergruimte. Voorzieningen als waterleiding, elektra, sanitair, infraroodverwarming, boiler, airconditioning (koelen en warmen) en houtkachel.
- De tuin en het weiland zijn volledig nieuw ingedeeld en aangelegd, evenals realisatie van een toegangsweg en dubbele poort naar de weide en tuin.
- Het houtwerk van het huis, inclusief deuren en luiken, zijn in de afgelopen jaren onderhouden, gerestaureerd en geverfd
- Dakgoten van zowel de noordzijde als zuidzijde zijn vervangen
- Ontbrekend traliewerk op de begane grond werd toegevoegd door met de hand gesmeed traliewerk, dit is tevens een anti inbraakvoorziening.
- Aanvaarding in overleg
Globale indeling
Souterrain
Gewelfde kelder geschikt als provisieruimte
Begane grond
Entree, hal voorzien van authentieke plavuisjes, meterkast voorzien van uitgebreide automaten groepenkast
Zitkamer voorzien van plankenvloer in ossenbloed rode kleur, schouw met open haard
Eetkamer voorzien van originele plavuizen, kachel geschikt om met kolen of hout te stoken
Keuken voorzien van authentieke plavuisjes, maatwerk keuken voorzien van hardstenen blad, falcon fornuis voorzien van 5 pits gaskookplaat, drie ovens en grill, afzuigkap, vaatwasser, koelkast, muurkastjes
Televisiekamer afgewerkt met plankenvloer in ossenbloed rode kleur
Bijkeuken met enkele deur naar de tuin, tegelvloer, vaste kasten, gootsteen, witgoedaansluiting, CV ketel
Toilet voorzien van hangend closet en fontein, marmeren betegeling
Inpandige garage met dubbele poort naar het voorerf en de inrit, enkele deur aan de tuinzijde, elektrische boiler
Atelier/werkruimte voorzien van laminaat en enkele deur naar het voorerf
Eerste verdieping
Overloopruimte
Woonkamer voorzien van plankenvloer, houtkachel, opengewerkte vakwerkconstructie voorzien van beglazing met panoramisch uitzicht over het landschap
Slaapkamer I voorzien van plankenvloer in ossenbloed rode kleur
Ensuite badkamer I voorzien van keramische tegelvloer, sanitair in brons: douchecabine met regendouche en wastafelmeubel, ecotoilet, infraroodpaneel en ventilatie
Overloop met plankenvloer in ossenbloed rode kleur en getrogd plafond
Slaapkamer II voorzien van plankenvloer
Slaapkamer III voorzien van plankenvloer en kledingkasten
Badkamer II voorzien van ligbad op pootjes, inloopdouche, wastafelmeubel, hangend closet, marmeren betegeling
Tweede verdieping
Overloop voorzien van plankenvloer in ossenbloed rode kleur
Slaapkamer IV voorzien van vloerbedekking
Slaapkamer V voorzien van planken vloer, klein dakraam
Zolderruimte met verhuisluik
Extern
Overdekt terras
Buitenkeuken voorzien van afdak
Schuur te gebruiken als atelier, voorzien van deels overdekt vlonderterras met zonnescherm. Verblijfsgedeelte met houtkachel, open vide ruimte met airconditioning, kleine keuken voorzien van aanrechtblok met los gaskookstel, afzuigkap, koelkast en elektrische boiler, badkamer voorzien van wastafelmeubel, douchecabine, ecotoilet, infraroodpaneel. Opslagruimte met dubbele poort.