Met een eigen account kun je panden volgen, opslaan als favoriet, je zoekprofiel opslaan en jouw eigen notities bij een huis maken.
Algemeen
Vrijstaande woning met garage, grote kelder en praktische bijkeuken in dorpskern van Nederweert!
Geenestraat 15, Nederweert
Deze degelijk gebouwde vrijstaande woning ligt op een centrale en geliefde locatie nabij de dorpskern van Nederweert. De woning biedt een fijne combinatie van ruimte, praktische indeling en volop mogelijkheden om naar eigen wens te moderniseren. Met een diepe oprit,... Meer informatie
Geenestraat 15, Nederweert
Deze degelijk gebouwde vrijstaande woning ligt op een centrale en geliefde locatie nabij de dorpskern van Nederweert. De woning biedt een fijne combinatie van ruimte, praktische indeling en volop mogelijkheden om naar eigen wens te moderniseren. Met een diepe oprit,... Meer informatie
-
Kenmerken
Alle kenmerken Type object Woonhuis, eengezinswoning, vrijstaande woning Bouwjaar 1972 Status Verkocht Aangeboden sinds Dinsdag 16 december 2025 -
Locatie
Kenmerken
| Overdracht | |
|---|---|
| Referentienummer | 62677/9776570 |
| Vraagprijs | € 450.000,- k.k. |
| Status | Verkocht |
| Aanvaarding | In overleg |
| Aangeboden sinds | Dinsdag 16 december 2025 |
| Laatste wijziging | Donderdag 28 mei 2026 |
| Bouw | |
|---|---|
| Type object | Woonhuis, eengezinswoning, vrijstaande woning |
| Soort bouw | Bestaande bouw |
| Bouwjaar | 1972 |
| Type dak | Zadeldak |
| Isolatievormen | Dubbel glas |
| Oppervlaktes en inhoud | |
|---|---|
| Perceeloppervlakte | 299 m² |
| Woonoppervlakte | 156 m² |
| Inhoud | 800 m³ |
| Oppervlakte gebouwgebonden buitenruimte | 3 m² |
| Indeling | |
|---|---|
| Aantal bouwlagen | 3 |
| Aantal kamers | 4 (waarvan 3 slaapkamers) |
| Locatie | |
|---|---|
| Ligging | In centrum |
| Tuin | |
|---|---|
| Type | Achtertuin |
| Hoofdtuin | Ja |
| Oriëntering | Zuiden |
| Staat | Goed onderhouden |
| Energieverbruik | |
|---|---|
| Energielabel | G |
| Uitrusting | |
|---|---|
| Warm water | CV-ketel |
| Badkamervoorzieningen | Douche, Toilet, Wastafel, Wastafelmeubel |
| Parkeergelegenheid | Aangebouwde stenen garage |
| Heeft een alarm | Ja |
| Heeft kabel-tv | Ja |
| Tuin aanwezig | Ja |
| Heeft een garage | Ja |
| Heeft rolluiken | Ja |
| Heeft schuur/berging | Ja |
| Heeft ventilatie | Ja |
Beschrijving
Vrijstaande woning met garage, grote kelder en praktische bijkeuken in dorpskern van Nederweert!
Geenestraat 15, Nederweert
Deze degelijk gebouwde vrijstaande woning ligt op een centrale en geliefde locatie nabij de dorpskern van Nederweert. De woning biedt een fijne combinatie van ruimte, praktische indeling en volop mogelijkheden om naar eigen wens te moderniseren. Met een diepe oprit, geschakelde garage, grote kelder, drie slaapkamers en een vaste trap naar de zolder is dit een ideale woning voor wie op zoek is naar een solide basis met potentieel.
De ligging is uitstekend: op loopafstand van winkels, scholen en horeca, en met snelle verbindingen richting Weert, Roermond en de A2. Een fijne plek voor wie rustig wil wonen, maar toch alle voorzieningen binnen handbereik wil hebben.
Indeling
Begane grond
Via de diepe oprit bereik je de entree van de woning. De ruime ontvangsthal is praktisch ingedeeld en voorzien van een apart toilet met fontein, verwarming en mechanische afzuiging. Daarnaast bevinden zich hier de meterkast, houten trapopgang, garderobe en de doorgang naar zowel de keuken als de woonkamer. De doorzonwoonkamer is licht en ruim, met grote raampartijen aan beide zijden. Aan de achterzijde zijn elektrisch bedienbare rolluiken geplaatst, wat zorgt voor comfort en privacy. De woonkamer vormt een fijne basis om geheel naar eigen smaak te moderniseren.
De open keuken is uitgevoerd met een granieten werkblad en voorzien van diverse inbouwapparatuur, waaronder een AEG inductiekookplaat, afzuigkap, vaatwasser, magnetron en koelkast. Vanuit de keuken is er toegang tot de diepe bijkeuken. De bijkeuken is royaal opgezet en beschikt over witgoedaansluitingen, vaste bovenkasten, een wasbak en toegang tot de tuin met overkapping, de kelder en de garage. De grote, droge kelder biedt volop bergruimte en is ideaal voor opslag.
De geschakelde garage is voorzien van een elektrische roldeur, lichtkoepel, water, elektra en verwarming. Een praktische ruimte die zich uitstekend leent voor hobby’s, opslag of het stallen van fietsen en gereedschap.
Eerste verdieping
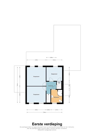
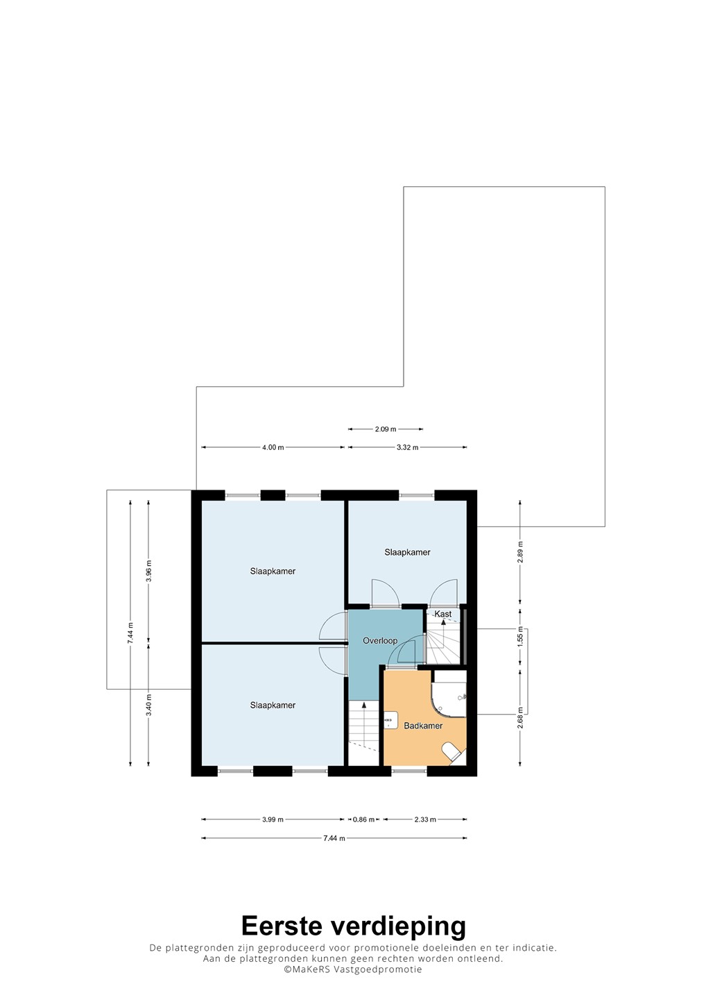
Op de eerste verdieping bevinden zich drie slaapkamers, waarvan de kamers aan de achterzijde zijn voorzien van rolluiken. De kamers zijn van goed formaat en bieden volop mogelijkheden voor een moderne indeling. De ruime badkamer is uitgerust met een douche, wastafel met meubel, toilet en mechanische afzuiging.
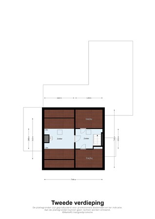
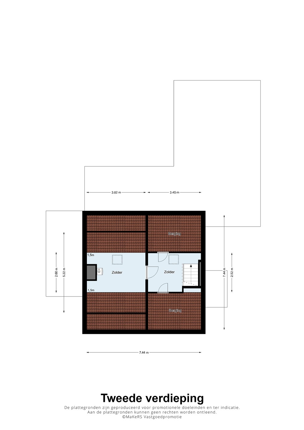
Zolder
Via een vaste trap bereik je de zolderverdieping. Hier bevindt zich de opstelling van de cv ketel (Nefit Ecom-Line 2008). De zolder biedt extra bergruimte en kan, indien gewenst, worden ingericht als hobbyruimte of extra (slaap)kamer.
Buitenruimte
De woning beschikt over een diepe oprit met toegang tot de garage. De tuin is zuid georiënteerd en voorzien van een overkapping met inbouwspots, waardoor je hier het hele jaar door comfortabel kunt zitten. De overkapping is aangelegd met kunstgras en kan worden afgesloten met elektrisch bedienbare rolluiken. Aan de zijgevel van de woning staat een houten tuinhuis met elektra, ideaal voor extra opslag of als werkruimte.
De combinatie van privacy, zonligging en praktische voorzieningen maakt de buitenruimte tot een fijne plek om te ontspannen.
Bijzonderheden van deze woning:
- Centrale ligging nabij dorpskern van Nederweert en uitvalswegen
- Vrijstaande woning met diepe oprit en geschakelde garage (v.v. elektrische roldeur)
- Grote kelder ideaal te gebruiken als provisieruimte
- Doorzonwoonkamer met elektrisch bedienbare rolluiken aan achterzijde
- Open keuken met granieten werkblad en diverse inbouwapparatuur
- Diepe bijkeuken met witgoedaansluitingen
- Drie slaapkamers op de eerste verdieping
- Ruime badkamer met douche, wastafelmeubel, toilet en mechanische afzuiging
- Vaste trap naar zolder, ruimte voor extra (slaap)kamer te realiseren
- Houten tuinhuis met elektra
- Zuid georiënteerde tuin met overkapping en kunstgras, afsluitbaar met elektrische rolluiken
Geenestraat 15, Nederweert
Deze degelijk gebouwde vrijstaande woning ligt op een centrale en geliefde locatie nabij de dorpskern van Nederweert. De woning biedt een fijne combinatie van ruimte, praktische indeling en volop mogelijkheden om naar eigen wens te moderniseren. Met een diepe oprit, geschakelde garage, grote kelder, drie slaapkamers en een vaste trap naar de zolder is dit een ideale woning voor wie op zoek is naar een solide basis met potentieel.
De ligging is uitstekend: op loopafstand van winkels, scholen en horeca, en met snelle verbindingen richting Weert, Roermond en de A2. Een fijne plek voor wie rustig wil wonen, maar toch alle voorzieningen binnen handbereik wil hebben.
Indeling
Begane grond
Via de diepe oprit bereik je de entree van de woning. De ruime ontvangsthal is praktisch ingedeeld en voorzien van een apart toilet met fontein, verwarming en mechanische afzuiging. Daarnaast bevinden zich hier de meterkast, houten trapopgang, garderobe en de doorgang naar zowel de keuken als de woonkamer. De doorzonwoonkamer is licht en ruim, met grote raampartijen aan beide zijden. Aan de achterzijde zijn elektrisch bedienbare rolluiken geplaatst, wat zorgt voor comfort en privacy. De woonkamer vormt een fijne basis om geheel naar eigen smaak te moderniseren.
De open keuken is uitgevoerd met een granieten werkblad en voorzien van diverse inbouwapparatuur, waaronder een AEG inductiekookplaat, afzuigkap, vaatwasser, magnetron en koelkast. Vanuit de keuken is er toegang tot de diepe bijkeuken. De bijkeuken is royaal opgezet en beschikt over witgoedaansluitingen, vaste bovenkasten, een wasbak en toegang tot de tuin met overkapping, de kelder en de garage. De grote, droge kelder biedt volop bergruimte en is ideaal voor opslag.
De geschakelde garage is voorzien van een elektrische roldeur, lichtkoepel, water, elektra en verwarming. Een praktische ruimte die zich uitstekend leent voor hobby’s, opslag of het stallen van fietsen en gereedschap.
Eerste verdieping
Op de eerste verdieping bevinden zich drie slaapkamers, waarvan de kamers aan de achterzijde zijn voorzien van rolluiken. De kamers zijn van goed formaat en bieden volop mogelijkheden voor een moderne indeling. De ruime badkamer is uitgerust met een douche, wastafel met meubel, toilet en mechanische afzuiging.
Zolder
Via een vaste trap bereik je de zolderverdieping. Hier bevindt zich de opstelling van de cv ketel (Nefit Ecom-Line 2008). De zolder biedt extra bergruimte en kan, indien gewenst, worden ingericht als hobbyruimte of extra (slaap)kamer.
Buitenruimte
De woning beschikt over een diepe oprit met toegang tot de garage. De tuin is zuid georiënteerd en voorzien van een overkapping met inbouwspots, waardoor je hier het hele jaar door comfortabel kunt zitten. De overkapping is aangelegd met kunstgras en kan worden afgesloten met elektrisch bedienbare rolluiken. Aan de zijgevel van de woning staat een houten tuinhuis met elektra, ideaal voor extra opslag of als werkruimte.
De combinatie van privacy, zonligging en praktische voorzieningen maakt de buitenruimte tot een fijne plek om te ontspannen.
Bijzonderheden van deze woning:
- Centrale ligging nabij dorpskern van Nederweert en uitvalswegen
- Vrijstaande woning met diepe oprit en geschakelde garage (v.v. elektrische roldeur)
- Grote kelder ideaal te gebruiken als provisieruimte
- Doorzonwoonkamer met elektrisch bedienbare rolluiken aan achterzijde
- Open keuken met granieten werkblad en diverse inbouwapparatuur
- Diepe bijkeuken met witgoedaansluitingen
- Drie slaapkamers op de eerste verdieping
- Ruime badkamer met douche, wastafelmeubel, toilet en mechanische afzuiging
- Vaste trap naar zolder, ruimte voor extra (slaap)kamer te realiseren
- Houten tuinhuis met elektra
- Zuid georiënteerde tuin met overkapping en kunstgras, afsluitbaar met elektrische rolluiken