Met een eigen account kun je panden volgen, opslaan als favoriet, je zoekprofiel opslaan en jouw eigen notities bij een huis maken.
Algemeen
Welkom bij deze charmante en praktisch ingedeelde woning aan de Reinenstraat 2 in Stramproy (bouwjaar 2006). Deze woning biedt een volledig gelijkvloers woonprogramma met een slaapkamer en badkamer op de begane grond, waardoor het huis ideaal is voor wie comfortabel en toekomstbestendig wil wonen. Dankzij de onderhoudsvriendelijke tuin, carport met elektrische roldeur en open keuken met inbouwa... Meer informatie
-
Kenmerken
Alle kenmerken Type object Woonhuis, eengezinswoning, geschakelde woning Bouwjaar 2006 Aangeboden sinds Woensdag 10 december 2025 -
Locatie
Kenmerken
| Overdracht | |
|---|---|
| Referentienummer | 62677/9762300 |
| Vraagprijs | € 495.000,- k.k. |
| Aanvaarding | In overleg |
| Aangeboden sinds | Woensdag 10 december 2025 |
| Laatste wijziging | Dinsdag 24 maart 2026 |
| Bouw | |
|---|---|
| Type object | Woonhuis, eengezinswoning, geschakelde woning |
| Soort bouw | Bestaande bouw |
| Bouwjaar | 2006 |
| Type dak | Zadeldak |
| Isolatievormen | Dakisolatie, Muurisolatie, Vloerisolatie, Volledig geïsoleerd |
| Oppervlaktes en inhoud | |
|---|---|
| Perceeloppervlakte | 271 m² |
| Woonoppervlakte | 130 m² |
| Inhoud | 536 m³ |
| Oppervlakte gebouwgebonden buitenruimte | 19 m² |
| Indeling | |
|---|---|
| Aantal bouwlagen | 3 |
| Aantal kamers | 4 (waarvan 3 slaapkamers) |
| Locatie | |
|---|---|
| Ligging | Aan rustige weg, In woonwijk |
| Tuin | |
|---|---|
| Type | Achtertuin |
| Hoofdtuin | Ja |
| Oriëntering | Noord-oost |
| Heeft een achterom | Ja |
| Staat | Prachtig aangelegd |
| Energieverbruik | |
|---|---|
| Energielabel | A |
| Uitrusting | |
|---|---|
| Warm water | CV-ketel |
| Badkamervoorzieningen Badkamer 1 | Douche, Wastafel, Wastafelmeubel |
| Badkamervoorzieningen Badkamer 2 | Toilet, Wastafel |
| Parkeergelegenheid | Carport |
| Heeft airco | Ja |
| Tuin aanwezig | Ja |
| Heeft een dakraam | Ja |
| Heeft een schuifpui | Ja |
| Heeft ventilatie | Ja |
Beschrijving
Welkom bij deze charmante en praktisch ingedeelde woning aan de Reinenstraat 2 in Stramproy (bouwjaar 2006). Deze woning biedt een volledig gelijkvloers woonprogramma met een slaapkamer en badkamer op de begane grond, waardoor het huis ideaal is voor wie comfortabel en toekomstbestendig wil wonen. Dankzij de onderhoudsvriendelijke tuin, carport met elektrische roldeur en open keuken met inbouwapparatuur geniet je hier van veel gemak en wooncomfort. De ligging in de dorpskern zorgt ervoor dat alle dagelijkse voorzieningen binnen handbereik zijn.
Daarnaast beschikt de woning over twee extra slaapkamers op de eerste verdieping, een extra wasruimte met wastafel en toilet en een bergzolder. Een verrassend complete woning op een rustige en centrale locatie.
Indeling
Begane grond
Je betreedt de woning via de hal, die toegang biedt tot de meterkast, berging, woonkamer en houten trap. De lichte woonkamer, met houten vloer, valt op door de brede schuifpui naar de patio-tuin en de prettige hoeveelheid daglicht die hierdoor binnenvalt. Aangrenzend bevindt zich de open keuken, uitgerust met diverse inbouwapparatuur zoals een koelkast, vaatwasser, oven en 4-pits gasfornuis.
De slaap- en badkamer op de begane grond maakt deze woning levensloopbestendig. Via de slaapkamer is de tuin ook toegankelijk. In deze slaapkamer loopt de houten vloer van de woonkamer naadloos door. Direct naast deze kamer ligt de badkamer, voorzien van de benodigde sanitaire voorzieningen zoals een inloopdouche en wastafel met meubel. Tegenover de badkamer bevindt zich een apart, ruim toilet met fontein.
De berging is uitgerust met witgoedaansluitingen en extra bergruimte. Vanuit hier heb je toegang tot de tuin en de carport met elektrische roldeur.
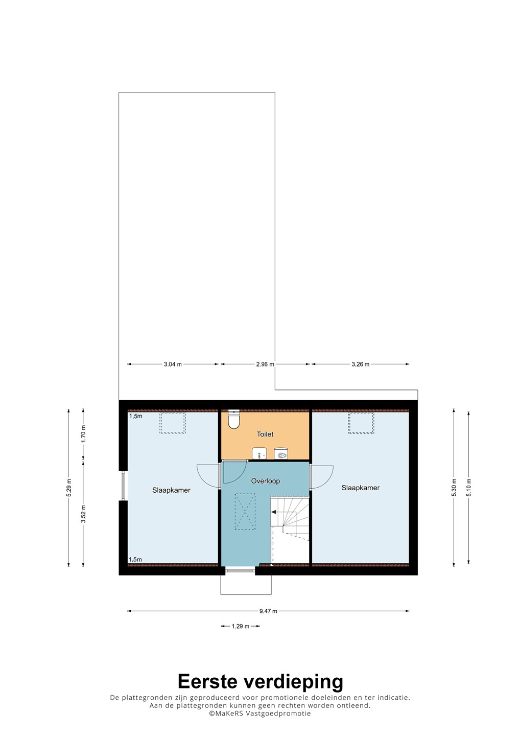
Eerste verdieping
Op de eerste verdieping bevinden zich twee ruime slaapkamers, ideaal als werk- of logeerkamers. Daarnaast is er een extra wasruimte aanwezig, voorzien van een wastafel en toilet. Hier zijn ook de cv-ketel (2006) en mechanische ventilatie unit gesitueerd. Deze verdieping biedt volop mogelijkheden voor uiteenlopende woonwensen.
Zolder
Via een vlizotrap aan plafondluik is de bergzolder bereikbaar. Deze verdieping biedt verrassend veel opslagruimte en is ideaal voor het opbergen van seizoensspullen.
Buitenruimte
De patio-tuin is onderhoudsvriendelijk beklinkerd en biedt een fijne plek om te ontspannen zonder veel onderhoud. Aan de voorzijde bevindt zich de carport met elektrische roldeur. Deze leidt ook naar de voorzijde gelegen oprit. Via de achterzijde van de woning is de tuin ook te betreden, door een praktische achterom. De rustige ligging in de dorpskern maakt dit een aantrekkelijke woonomgeving!
Bijzonderheden van deze woning:
Geheel gelijkvloers woonprogramma met slaapkamer en badkamer op de begane grond
Onderhoudsvriendelijke tuin
Carport met elektrische roldeur (eventueel om te bouwen tot extra kamer, praktijkruimte of dergelijke)
Bijkeuken met witgoedaansluitingen
Open keuken met inbouwapparatuur
In de dorpskern van Stramproy gelegen
Twee slaapkamers op de eerste verdieping, met extra wasruimte inclusief wastafel en toilet
Energielabel A
Volledig geïsoleerd, kunststofkozijnen en HR++ beglazing
Ruime bergzolder
Daarnaast beschikt de woning over twee extra slaapkamers op de eerste verdieping, een extra wasruimte met wastafel en toilet en een bergzolder. Een verrassend complete woning op een rustige en centrale locatie.
Indeling
Begane grond
Je betreedt de woning via de hal, die toegang biedt tot de meterkast, berging, woonkamer en houten trap. De lichte woonkamer, met houten vloer, valt op door de brede schuifpui naar de patio-tuin en de prettige hoeveelheid daglicht die hierdoor binnenvalt. Aangrenzend bevindt zich de open keuken, uitgerust met diverse inbouwapparatuur zoals een koelkast, vaatwasser, oven en 4-pits gasfornuis.
De slaap- en badkamer op de begane grond maakt deze woning levensloopbestendig. Via de slaapkamer is de tuin ook toegankelijk. In deze slaapkamer loopt de houten vloer van de woonkamer naadloos door. Direct naast deze kamer ligt de badkamer, voorzien van de benodigde sanitaire voorzieningen zoals een inloopdouche en wastafel met meubel. Tegenover de badkamer bevindt zich een apart, ruim toilet met fontein.
De berging is uitgerust met witgoedaansluitingen en extra bergruimte. Vanuit hier heb je toegang tot de tuin en de carport met elektrische roldeur.
Eerste verdieping
Op de eerste verdieping bevinden zich twee ruime slaapkamers, ideaal als werk- of logeerkamers. Daarnaast is er een extra wasruimte aanwezig, voorzien van een wastafel en toilet. Hier zijn ook de cv-ketel (2006) en mechanische ventilatie unit gesitueerd. Deze verdieping biedt volop mogelijkheden voor uiteenlopende woonwensen.
Zolder
Via een vlizotrap aan plafondluik is de bergzolder bereikbaar. Deze verdieping biedt verrassend veel opslagruimte en is ideaal voor het opbergen van seizoensspullen.
Buitenruimte
De patio-tuin is onderhoudsvriendelijk beklinkerd en biedt een fijne plek om te ontspannen zonder veel onderhoud. Aan de voorzijde bevindt zich de carport met elektrische roldeur. Deze leidt ook naar de voorzijde gelegen oprit. Via de achterzijde van de woning is de tuin ook te betreden, door een praktische achterom. De rustige ligging in de dorpskern maakt dit een aantrekkelijke woonomgeving!
Bijzonderheden van deze woning:
Geheel gelijkvloers woonprogramma met slaapkamer en badkamer op de begane grond
Onderhoudsvriendelijke tuin
Carport met elektrische roldeur (eventueel om te bouwen tot extra kamer, praktijkruimte of dergelijke)
Bijkeuken met witgoedaansluitingen
Open keuken met inbouwapparatuur
In de dorpskern van Stramproy gelegen
Twee slaapkamers op de eerste verdieping, met extra wasruimte inclusief wastafel en toilet
Energielabel A
Volledig geïsoleerd, kunststofkozijnen en HR++ beglazing
Ruime bergzolder