Beschrijving

Ben je op zoek naar een woning met veel leefruimte en een grote tuin? Dan is deze 2-onder-1 kapwoning misschien wel iets voor jou! 

Deze woning beschikt over een mooie woonkamer met een open keuken, een praktische bijkeuken en een heerlijke overkapping. 

Boven beschikt deze woning over 3 slaapkamers en een ruime badkamer. Extra opbergruimte is beschikbaar op de bergzolder. 
Buiten is het heerlijk genieten van een brede en diepe en fraai aangelegde achtertuin met gazon, borders en genoemde overkapping aansluitend aan de achtergevel. 
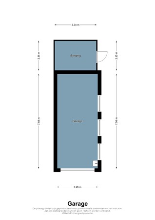
De ruime oprit is uniek te noemen daar de garage riant en vrijstaand gesitueerd is, vrijstaand naast de zijgevel van de woning. Hierdoor beschikt deze garage over een riant brede oprit en achterom. 

De woning is bovendien voorzien van houten kozijnen en dubbele beglazing. 
Kortom, een heerlijke gezinswoning gelegen op een heerlijk ruim perceel!

Indeling

Begane grond
 
Bij binnenkomst is direct de royale opzet van deze woning waarneembaar. Deze woning is namelijk uniek breed uitgevoerd en daardoor heerlijk praktisch. 

De hal is ruim en biedt aan de achterzijde toegang tot de achter gelegen keuken. Deze hal heeft een meterkast en trap naar de slaapverdieping. 

De fijne doorzon-woonkamer is uitgevoerd met een mooie lichte eikenhouten vloer en witte wanden en strak wit plafond. 

De keuken is uitgevoerd in een royale L-vormige opstelling en is uitgevoerd met een groot granieten werkblad. In de keuken zijn een keramische kookplaat, vlakschermafzuigkap, combi-oven en koelkast voorhanden. 

Aansluitend aan de keuken is een portaal met toiletruimte en deur naar de tuin gesitueerd.
Aansluitend hierachter is de praktische bijkeuken gesitueerd.
In deze bijkeuken de diverse witgoed-aansluitingen en ruimte voor kasten en de h.r. c.v.-ketel.

Achter de woning, naast de bijkeuken is een heerlijk overdekt terras gesitueerd waar het fijn toeven is. Hier is het fijn verblijven in de middag en avond als de zon deze plek fijn verwarmd heeft. 

Verdieping

Via de hal de trap naar de eerste verdieping.
Hier zijn 3 slaapkamers gesitueerd die allen netjes afgewerkt zijn met moderne laminaatvloer en lichte wanden en licht plafond. Alle slaapkamers en de overloop beschikken over een praktische muurkast.

Vervolgens is een oorspronkelijk 4e slaapkamer in jaren 80 verbouwd tot complete badkamer.
Deze badkamer is uitgevoerd in lichte beigetinten en is compleet uitgevoerd met douchecabine en ligbad, wastafel en toilet (duobloc). 

Via de overloop biedt een degelijke vlizotrap toegang tot de bergzolder
De bergzolder is geheel afgewerkt met planken dakbeschot dus geen eterniet-platen en met een degelijke betonnen verdiepingsvloer.

Buitenruimte

Een van de vele pluspunten van deze woning is de unieke grote oppervlakte van het perceel.
Dit perceel is nagenoeg 400 vierkante meter groot en dat is een heerlijk riant metrage!

De grote achtertuin is geheel ommuurd en is uitgerust met een mooie grasmat en borders en zonne-terras in de hoek. Deze tuin biedt volop mogelijkheden om te genieten van ‘t zomerse buitenleven. 

De garage is meer dan ruim te noemen en is in spouw uitgevoerd en biedt een oppervlak van bijna 25 vierkante meter, uniek! Deze is uitgevoerd met een moderne sectionaal-poort en een deur in de zijgevel achter.

De woning is uitgevoerd met gebakken pannendak, de bijkeuken met een plat dak. 


Bijzonderheden van deze woning:

Ruime tweekapper met garage in spouw
Diepe tuin op zuid-west gelegen 
Heerlijke overkapping bij terras
Dubbel glas, muurisolatie, label-C
Doorzon woonkamer met houten vloer
Openhaard met rookkanaal
Grote open keuken 
Praktische bijkeuken

Kenmerken