| Prijs | € 575.000,- k.k. |
| Type object | Woonhuis, herenhuis, twee onder een kap woning |
| Perceeloppervlakte | 155 m² |
| Woonoppervlakte | 241 m² |
| Aanvaarding | In overleg |
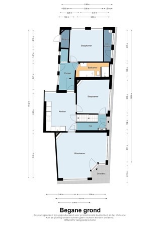
Uniek en ruim herenhuis op hoekligging in de dorpskern van Thorn Steeg 18, Thorn In het hart van het historische Thorn staat dit karakteristieke en uitzonderlijk ruime herenhuis, gelegen op een fraaie hoeklocatie. Met een gebruiksoppervlakte van maar liefst 241 m², twee aparte entrees, een eigen achterom via een grote poort en een indrukwekkende hoeveelheid authentieke details is dit een woning die je zelden tegenkomt. Denk aan glas?in?loodramen, originele houten balken, een zeer hoge nok en een prachtige vide - elementen die de woning een unieke en warme uitstraling geven. Dankzij de aanwezigheid van twee keukens, twee badkamers, zes slaapkamers en diverse multifunctionele ruimtes is dit een ideale woning voor grote gezinnen, dubbele bewoning, praktijk aan huis of wie simpelweg veel ruimte zoekt op een bijzondere plek. Indeling Begane grond Via de overdekte entree betreed je de woning. Hier stap je direct in de ruim opgezette woonkamer. Via deze ruimte loop je door naar de keuken, hal met trapopgang en rest van de begane grond, inclusief extra ontvangstportaal. De grote hoekkeuken is uitgerust met diverse inbouwapparatuur, waaronder een inductiekookplaat, afzuigkap, vaatwasser en koelkast. Dankzij de royale opzet is dit een fijne plek om te koken en samen te komen. De kelder is bereikbaar vanuit de keuken en ideaal te gebruiken als provisieruimte. Op de begane grond bevinden zich daarnaast twee slaapkamers en een badkamer. Deze badkamer is voorzien van een bad, douche, toilet en wastafel met meubel - ideaal voor gelijkvloers wonen of het creëren van een gastenverdieping. De slaapkamers zijn van een fijn formaat en een hiervan beschikt over een extra bergruimte. Via de grote poort aan de zijkant van de woning is er een eigen achterom, met de mogelijkheid om een auto op eigen terrein te parkeren. Eerste verdieping Via een ruime overloop op de eerste verdieping bereik je de 3 slaapkamers, waarvan één kamer beschikt over een balkon, gelegen aan de voorzijde van de woning. De ruimtes zijn licht, ruim en flexibel in te delen. Verder is er een aparte berging en ruime badkamer op deze verdieping. De tweede badkamer is uitgerust met een bad, douche, toilet, wastafel met meubel én witgoedaansluitingen - een complete en praktische ruimte. Tweede verdieping Deze multifunctionele ruimte op de tweede verdieping is bereikbaar via een vaste trap en biedt volop mogelijkheden voor bijvoorbeeld dubbele bewoning, gastenverblijf of een zelfstandige werkruimte. Daarnaast is er een tweede keuken aanwezig, voorzien van inductie, afzuigkap, oven en koelkast. De indrukwekkende vide en de hoge nok geven deze verdieping een bijzonder ruimtelijk gevoel en benadrukken het karakter van het huis. Via de vaste trap bereik je de ruime vliering, die ideaal kan dienen als extra (slaap)kamer. Buitenruimte en ligging De achtertuin is zuidwest georiënteerd en beschikt over een aangebouwde stenen berging, ideaal voor fietsen, gereedschap of hobby’s. De grote poort aan de zijkant van de woning geeft toegang tot de achterom en biedt ook de mogelijkheid om een auto op eigen terrein te parkeren. De woning aan De Steeg 18 is gelegen aan een karakteristieke, historische straat die uitmondt in de gezellige hoofdstraat van het ‘witte stadje’ Thorn. Deze bijzondere plaats dankt haar bijnaam aan de kenmerkende witgeschilderde gevels, die zorgen voor een unieke en sfeervolle uitstraling. Thorn staat bekend om haar monumentale panden, charmante steegjes en authentieke straatbeeld, wat het tot een geliefde plek maakt voor zowel bewoners als bezoekers. Daarnaast vormt het een ideale uitvalsbasis voor wandel- en fietsliefhebbers, met de natuur en de Maasplassen op korte afstand. Ook de bereikbaarheid is uitstekend: steden als Roermond, Weert en Maaseik zijn binnen ongeveer 10 minuten te bereiken. Bijzonderheden van deze woning: - Uniek herenhuis op hoekligging in de dorpskern van historisch Thorn - Maar liefst 241 m² gebruiksoppervlakte - Twee aparte entrees en eigen achterom via grote poort (mogelijkheid tot parkeren) - Authentieke details: glas?in?lood, originele houten balken, hoge nok en vide - In totaal zes slaapkamers - Twee keukens met diverse inbouwapparatuur - Twee complete badkamers, waarvan één met witgoedaansluitingen - Zuidwest georiënteerde achtertuin met aangebouwde stenen berging - 6 zonnepanelen, mechanische ventilatie en cv?ketel Remeha Avanta (2023) - Ideale woning en omgeving voor het starten van een eigen B&B
| Referentienummer | 62677/10007454 |
| Vraagprijs | € 575.000,- k.k. |
| Aanvaarding | In overleg |
| Aangeboden sinds | Zaterdag 28 februari 2026 |
| Laatste wijziging | Dinsdag 31 maart 2026 |
| Type object | Woonhuis, herenhuis, twee onder een kap woning |
| Soort bouw | Bestaande bouw |
| Bouwjaar | 1939 |
| Type dak | Zadeldak |
| Isolatievormen | Dakisolatie Muurisolatie Vloerisolatie |
| Perceeloppervlakte | 155 m² |
| Woonoppervlakte | 241 m² |
| Inhoud | 980 m³ |
| Oppervlakte gebouwgebonden buitenruimte | 12 m² |
| Aantal bouwlagen | 3 (en 1 kelder) |
| Aantal kamers | 7 (waarvan 6 slaapkamers) |
| Ligging | In centrum |
| Type | Achtertuin |
| Hoofdtuin | Ja |
| Oriëntering | Zuid-west |
| Heeft een achterom | Ja |
| Staat | Normaal |
| Energielabel | C |
| Warm water | CV-ketel |
| Badkamervoorzieningen Badkamer 1 | Douche Ligbad Toilet Wastafel Wastafelmeubel |
| Badkamervoorzieningen Badkamer 2 | Douche Ligbad Toilet Wastafel Wastafelmeubel |
| Tuin aanwezig | Ja |
| Heeft schuur/berging | Ja |
| Heeft ventilatie | Ja |