Met een eigen account kun je panden volgen, opslaan als favoriet, je zoekprofiel opslaan en jouw eigen notities bij een huis maken.
Algemeen
Aan een rustige straat in het grensdorpje Vaals vind je dit instapklare appartement, op de tweede verdieping van een verzorgd appartementencomplex. Met het groen als achterbuur en voorzieningen op loopafstand, woon je hier op een plek waar comfort en gemak samenkomen. De royale, lichte leefruimte met open keuken vormt het hart van de woning. Vanuit hier stap je zo het ruime balkon op – een fijn... Meer informatie
-
Kenmerken
Alle kenmerken Type object Appartement, portiekflat Bouwjaar 2009 Status Onder bod Aangeboden sinds Maandag 30 maart 2026 -
Locatie
Kenmerken
| Overdracht | |
|---|---|
| Vraagprijs | € 395.000,- k.k. |
| Servicekosten | € 224,40 |
| Status | Onder bod |
| Aanvaarding | In overleg |
| Aangeboden sinds | Maandag 30 maart 2026 |
| Bouw | |
|---|---|
| Type object | Appartement, portiekflat |
| Woonlaag | 2e woonlaag |
| Soort bouw | Bestaande bouw |
| Bouwjaar | 2009 |
| Dakbedekking | Bitumen |
| Type dak | Platdak |
| Isolatievormen | Dakisolatie, Muurisolatie, Vloerisolatie, Volledig geïsoleerd |
| Oppervlaktes en inhoud | |
|---|---|
| Woonoppervlakte | 110 m² |
| Woonkameroppervlakte | 44 m² |
| Inhoud | 354 m³ |
| Oppervlakte gebouwgebonden buitenruimte | 12 m² |
| Indeling | |
|---|---|
| Aantal bouwlagen | 1 |
| Aantal kamers | 3 (waarvan 2 slaapkamers) |
| Locatie | |
|---|---|
| Ligging | Aan rustige weg, In centrum, In woonwijk |
| Energieverbruik | |
|---|---|
| Energielabel | A+ |
| CV ketel | |
|---|---|
| CV ketel | AWB |
| Warmtebron | Gas |
| Bouwjaar | 2009 |
| Combiketel | Ja |
| Eigendom | Eigendom |
| Uitrusting | |
|---|---|
| Aantal parkeerplaatsen | 1 |
| Warm water | CV-ketel |
| Verwarmingssysteem | Centrale verwarming |
| Badkamervoorzieningen | Inloopdouche, Ligbad, Wastafel |
| Heeft een balkon | Ja |
| Heeft schuur/berging | Ja |
| Heeft een schuifpui | Ja |
| Heeft ventilatie | Ja |
| Vereniging van Eigenaren | |
|---|---|
| Ingeschreven bij de KvK | Ja |
| Jaarlijkse vergadering | Ja |
| Periodieke bijdrage | Ja |
| Reservefonds | Ja |
| Onderhoudsverwachting | Ja |
| Opstal verzekering | Ja |
| Kadastrale gegevens | |
|---|---|
| Kadastrale aanduiding | Vaals A 10464 |
| Omvang | Appartementsrecht of complex |
| Eigendomsituatie | Eigen grond |
| Indexnummer | A8 |
Beschrijving
Aan een rustige straat in het grensdorpje Vaals vind je dit instapklare appartement, op de tweede verdieping van een verzorgd appartementencomplex. Met het groen als achterbuur en voorzieningen op loopafstand, woon je hier op een plek waar comfort en gemak samenkomen. De royale, lichte leefruimte met open keuken vormt het hart van de woning. Vanuit hier stap je zo het ruime balkon op – een fijne plek om te genieten van het uitzicht over de rustige straatjes in de omgeving. Verder beschikt het appartement over twee slaapkamers van goed formaat, een moderne badkamer met ligbad, inloopdouche en wastafelmeubel, én een praktische berging voor al je spullen. Ook ligt je eigen buitenparkeerplaats direct om de hoek van het gebouw. Een fijne plek voor wie waarde hecht aan comfortabel wonen in een rustige buurt!
Vaals staat bekend als het kleine grensstadje net tegen Duitsland aan. De plaats kent een rijk verleden en dat is zichtbaar door heel Vaals aan de vele markante gebouwen. Tegenwoordig is het vooral een hele aangename woonplaats met een uitgebreid voorzieningenaanbod met vele winkels, medische voorzieningen, basisonderwijs en een goede bereikbaarheid met openbaar vervoer. Natuurlijk is het ook van belang dat de plaats grenst aan de grote buur Aken, een bruisende stad met veel historie en inmiddels ook bekend vanwege haar RWTH campus en het Klinikum. Natuurlijk is Vaals ook bekend vanwege het drielandenpunt, hoog boven op de Vaalserberg ligt de plek waar Nederland, Duitsland en België aan elkaar grenzen. De omringende buurtschappen zoals Raren en Wolfhaag zijn stuk voor stuk authentiek Limburgse plaatjes met veel rust en groen. Kortom, Vaals is een prima basis om te wonen!
Bijzonderheden
- Het appartement ligt op de tweede verdieping van het complex, met balkon
- Het appartement is voorzien van houten kozijnen met HR++ beglazing
- CV- installatie AWB combi ketel, bouwjaar 2009, eigendom
- Het appartement beschikt over een privé parkeerplaats
- Actieve VVE met gedegen financiële huishouding en een actueel meerjarenonderhoudsplan
- Bijdrage VVE €224,40- euro Per maand
- Aanvaarding in overleg
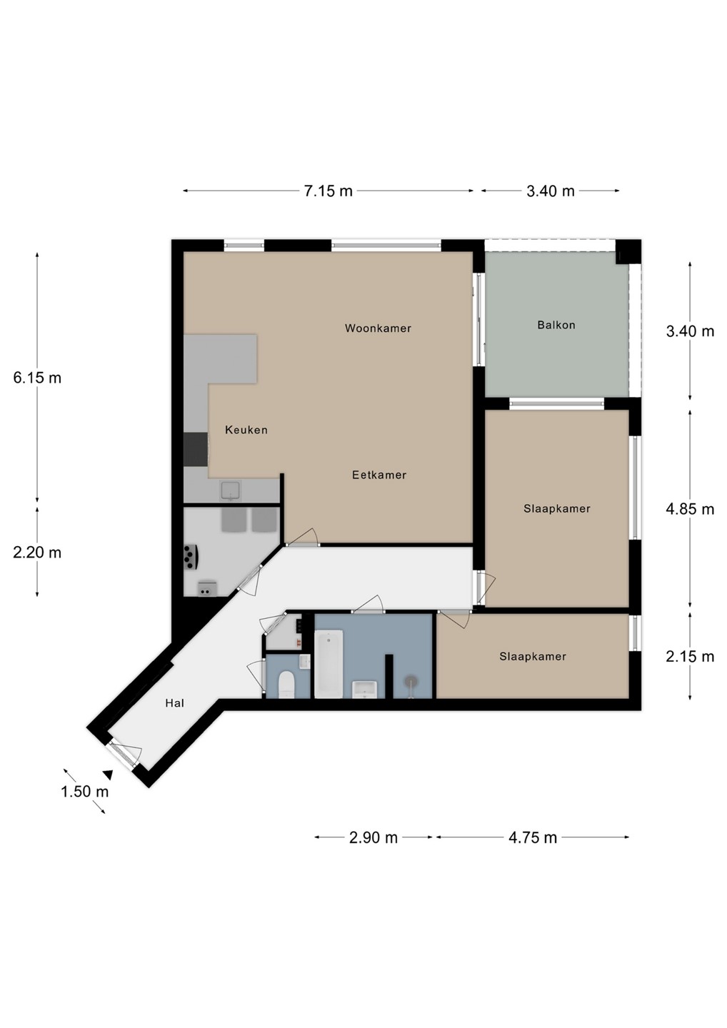
Globale indeling
Tweede verdieping
Entree, hal voorzien van laminaatvloer, met meterkast
Toilet voorzien van hangend closet en fontein
Berging met witgoedaansluitingen en CV-installatie
Woonkamer voorzien van laminaatvloer, toegang tot balkon via schuifpui
Open keuken in u-opstelling, voorzien van de volgende inbouwapparatuur: combi-oven, inductiekookplaat, koelkast, vaatwasser en afzuigkap
Slaapkamer I voorzien van vloerbedekking
Slaapkamer II voorzien van vloerbedekking
Badkamer voorzien van inloopdouche, ligbad en wastafelmeubel
Vaals staat bekend als het kleine grensstadje net tegen Duitsland aan. De plaats kent een rijk verleden en dat is zichtbaar door heel Vaals aan de vele markante gebouwen. Tegenwoordig is het vooral een hele aangename woonplaats met een uitgebreid voorzieningenaanbod met vele winkels, medische voorzieningen, basisonderwijs en een goede bereikbaarheid met openbaar vervoer. Natuurlijk is het ook van belang dat de plaats grenst aan de grote buur Aken, een bruisende stad met veel historie en inmiddels ook bekend vanwege haar RWTH campus en het Klinikum. Natuurlijk is Vaals ook bekend vanwege het drielandenpunt, hoog boven op de Vaalserberg ligt de plek waar Nederland, Duitsland en België aan elkaar grenzen. De omringende buurtschappen zoals Raren en Wolfhaag zijn stuk voor stuk authentiek Limburgse plaatjes met veel rust en groen. Kortom, Vaals is een prima basis om te wonen!
Bijzonderheden
- Het appartement ligt op de tweede verdieping van het complex, met balkon
- Het appartement is voorzien van houten kozijnen met HR++ beglazing
- CV- installatie AWB combi ketel, bouwjaar 2009, eigendom
- Het appartement beschikt over een privé parkeerplaats
- Actieve VVE met gedegen financiële huishouding en een actueel meerjarenonderhoudsplan
- Bijdrage VVE €224,40- euro Per maand
- Aanvaarding in overleg
Globale indeling
Tweede verdieping
Entree, hal voorzien van laminaatvloer, met meterkast
Toilet voorzien van hangend closet en fontein
Berging met witgoedaansluitingen en CV-installatie
Woonkamer voorzien van laminaatvloer, toegang tot balkon via schuifpui
Open keuken in u-opstelling, voorzien van de volgende inbouwapparatuur: combi-oven, inductiekookplaat, koelkast, vaatwasser en afzuigkap
Slaapkamer I voorzien van vloerbedekking
Slaapkamer II voorzien van vloerbedekking
Badkamer voorzien van inloopdouche, ligbad en wastafelmeubel