Met een eigen account kun je panden volgen, opslaan als favoriet, je zoekprofiel opslaan en jouw eigen notities bij een huis maken.
Algemeen
ZELF EEN VRIJSTAANDE WONING BOUWEN IN HET GROEN?
Ontwerp is gereed voor vergunning. Het plan ligt klaar!
Meer weten om op deze locatie, dichtbij de voorzieningen en toch geheel vrij te wonen?
En dat op een steenworp van de A73 en A67, veilingterrein ZON en Greenport…
Neem dan contact op om meer specifieke zaken te bespreken.
De verkoop en begeleiding is in handen van Coen Absil mak... Meer informatie
Ontwerp is gereed voor vergunning. Het plan ligt klaar!
Meer weten om op deze locatie, dichtbij de voorzieningen en toch geheel vrij te wonen?
En dat op een steenworp van de A73 en A67, veilingterrein ZON en Greenport…
Neem dan contact op om meer specifieke zaken te bespreken.
De verkoop en begeleiding is in handen van Coen Absil mak... Meer informatie
-
Kenmerken
Alle kenmerken Type object Woonhuis, eengezinswoning, vrijstaande woning Bouwperiode 2022 Aangeboden sinds Vrijdag 3 juni 2022 -
Locatie
Kenmerken
Overdracht | |
---|---|
Referentienummer | 05414 |
Vraagprijs | € 250.000,- k.k. |
Aanvaarding | In overleg |
Aangeboden sinds | Vrijdag 3 juni 2022 |
Laatste wijziging | Dinsdag 30 september 2025 |
Bouw | |
---|---|
Type object | Woonhuis, eengezinswoning, vrijstaande woning |
Soort bouw | Nieuwbouw |
Bouwperiode | 2022 |
Dakbedekking | Dakpannen |
Type dak | Zadeldak |
Oppervlaktes en inhoud | |
---|---|
Perceeloppervlakte | 4.000 m² |
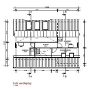
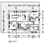
Woonoppervlakte | 200 m² |
Woonkameroppervlakte | 100 m² |
Inhoud | 750 m³ |
Oppervlakte externe bergruimte | 400 m² |
Indeling | |
---|---|
Aantal bouwlagen | 2 |
Aantal kamers | 2 (waarvan 1 slaapkamer) |
Tuin | |
---|---|
Type | Achtertuin |
Hoofdtuin | Ja |
Oriëntering | Zuiden |
Heeft een achterom | Ja |
Staat | Dient nog te worden aangelegd. |
Uitrusting | |
---|---|
Aantal parkeerplaatsen | 5 |
Tuin aanwezig | Ja |
Kadastrale gegevens | |
---|---|
Kadastrale aanduiding | Venlo x 548 |
Perceeloppervlakte | 4.000 m² |
Beschrijving
ZELF EEN VRIJSTAANDE WONING BOUWEN IN HET GROEN?
Ontwerp is gereed voor vergunning. Het plan ligt klaar!
Meer weten om op deze locatie, dichtbij de voorzieningen en toch geheel vrij te wonen?
En dat op een steenworp van de A73 en A67, veilingterrein ZON en Greenport…
Neem dan contact op om meer specifieke zaken te bespreken.
De verkoop en begeleiding is in handen van Coen Absil makelaardij. Tel 0612399624
Kavel: oppervlakte circa 4000 m2
Prijs € 250.000.- k.k.
Ontwerp is gereed voor vergunning. Het plan ligt klaar!
Meer weten om op deze locatie, dichtbij de voorzieningen en toch geheel vrij te wonen?
En dat op een steenworp van de A73 en A67, veilingterrein ZON en Greenport…
Neem dan contact op om meer specifieke zaken te bespreken.
De verkoop en begeleiding is in handen van Coen Absil makelaardij. Tel 0612399624
Kavel: oppervlakte circa 4000 m2
Prijs € 250.000.- k.k.
Indeling
LOCATIE T.B.V. BOUW VAN EEN VRIJSTAANDE WONING MET BEDRIJFSRUIMTE
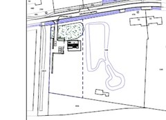
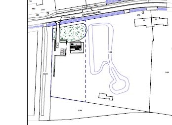
Deze woning kan worden gebouwd op een mooie kavel met de achterzijde gericht op het Zuiden, gelegen aan de Sevenumseweg te Venlo. (voorheen Grubbenvorst)
Het betreft een locatie nu in gebruik is als parkachtige tuin, gelegen op de hoek van de Sevenumseweg en een vroegere veldweg.
Het betreft het perceel Venlo sectie X nummer 548, een deel hiervan.
De kavel is circa 40 meter breed en ruim 100 meter lang. De beoogde 4000 m2 moet Kadastraal nog worden afgesplitst.
Het traject van bestemming dient door de koper in samenspraak met de eIgenaar bij de gemeente Venlo te worden gevolgd.
Er is een principe besluit verkregen dat er medewerking wordt verleend om de bestemming te wijzigen in een woon-werkkavel met de mogelijkheid van het
oprichten van een woning en een bedrijfsgebouw.
Dit betekent concreet dat er na het doorlopen van de bestemmingsplanprocedure een vrijstaand woonhuis kan worden gebouwd.
Hierbij dienen er langs de perceelsranden aan de voorzijde en zijkant rooilijnen in acht te worden genomen. De omzetting van deze locatie tot een bestemmingsplan met woonbestemming is beoogd op circa € 10.000.-.
Hier zijn door de gemeente enkele voorwaarden aan gesteld. Deze zijn:
- Het woonperceel heeft een oppervlakte van 1000-1500 m2
- Er een goede landschappelijke inpassing gerealiseerd wordt
- De bouwregels van het bestemmingsplan Zone Sevenumseweg van toepassing zijn
- De invulling is bij voorkeur agro-gerelateerd
Natuurlijk zijn er regels gesteld, doch u kunt uw specifieke wensen verwerken in een eigen ontwerp. Van belang is dat de woning en bedrijfsruimte bij voorkeur agro gerelateerd is en hiermee bijdragen aan het duurzame en innovatieve concept van Greenport Venlo.
U bent vrij in het bepalen van architect en aannemer .
Meer weten om op deze locatie, dichtbij de voorzieningen en toch geheel vrij te wonen en te werken?
En dat op een steenworp van de A73 en A67, veilingterrein ZON en de Greenport…
Neem dan contact op om meer specifieke zaken te bespreken.
De verkoop en begeleiding is in handen van Coen Absil makelaardij. Tel 0612399624
Kavel: oppervlakte circa 4000 m2
Prijs € 250.000.- k.k.
Deze woning kan worden gebouwd op een mooie kavel met de achterzijde gericht op het Zuiden, gelegen aan de Sevenumseweg te Venlo. (voorheen Grubbenvorst)
Het betreft een locatie nu in gebruik is als parkachtige tuin, gelegen op de hoek van de Sevenumseweg en een vroegere veldweg.
Het betreft het perceel Venlo sectie X nummer 548, een deel hiervan.
De kavel is circa 40 meter breed en ruim 100 meter lang. De beoogde 4000 m2 moet Kadastraal nog worden afgesplitst.
Het traject van bestemming dient door de koper in samenspraak met de eIgenaar bij de gemeente Venlo te worden gevolgd.
Er is een principe besluit verkregen dat er medewerking wordt verleend om de bestemming te wijzigen in een woon-werkkavel met de mogelijkheid van het
oprichten van een woning en een bedrijfsgebouw.
Dit betekent concreet dat er na het doorlopen van de bestemmingsplanprocedure een vrijstaand woonhuis kan worden gebouwd.
Hierbij dienen er langs de perceelsranden aan de voorzijde en zijkant rooilijnen in acht te worden genomen. De omzetting van deze locatie tot een bestemmingsplan met woonbestemming is beoogd op circa € 10.000.-.
Hier zijn door de gemeente enkele voorwaarden aan gesteld. Deze zijn:
- Het woonperceel heeft een oppervlakte van 1000-1500 m2
- Er een goede landschappelijke inpassing gerealiseerd wordt
- De bouwregels van het bestemmingsplan Zone Sevenumseweg van toepassing zijn
- De invulling is bij voorkeur agro-gerelateerd
Natuurlijk zijn er regels gesteld, doch u kunt uw specifieke wensen verwerken in een eigen ontwerp. Van belang is dat de woning en bedrijfsruimte bij voorkeur agro gerelateerd is en hiermee bijdragen aan het duurzame en innovatieve concept van Greenport Venlo.
U bent vrij in het bepalen van architect en aannemer .
Meer weten om op deze locatie, dichtbij de voorzieningen en toch geheel vrij te wonen en te werken?
En dat op een steenworp van de A73 en A67, veilingterrein ZON en de Greenport…
Neem dan contact op om meer specifieke zaken te bespreken.
De verkoop en begeleiding is in handen van Coen Absil makelaardij. Tel 0612399624
Kavel: oppervlakte circa 4000 m2
Prijs € 250.000.- k.k.