Met een eigen account kun je panden volgen, opslaan als favoriet, je zoekprofiel opslaan en jouw eigen notities bij een huis maken.
Algemeen
Sfeervolle en gerenoveerde twee-onder-een-kapwoning op een toplocatie in Keent!
Alphons Boostenstraat 40, Weert
Een huis waar sfeer, comfort en praktische woonruimte samenkomen
Welkom bij deze unieke en gerenoveerde twee onder een kapwoning, gelegen aan de breed opgezette Alphons Boostenstraat. Dankzij de royale straat met middenberm en volwassen bomen geniet je vanuit de woning van een... Meer informatie
Alphons Boostenstraat 40, Weert
Een huis waar sfeer, comfort en praktische woonruimte samenkomen
Welkom bij deze unieke en gerenoveerde twee onder een kapwoning, gelegen aan de breed opgezette Alphons Boostenstraat. Dankzij de royale straat met middenberm en volwassen bomen geniet je vanuit de woning van een... Meer informatie
-
Kenmerken
Alle kenmerken Type object Woonhuis, eengezinswoning, twee onder een kap woning Bouwjaar 1955 Aangeboden sinds Maandag 12 januari 2026 -
Locatie
Kenmerken
| Overdracht | |
|---|---|
| Referentienummer | 62677/9832446 |
| Vraagprijs | € 450.000,- k.k. |
| Aanvaarding | In overleg |
| Aangeboden sinds | Maandag 12 januari 2026 |
| Laatste wijziging | Maandag 23 februari 2026 |
| Bouw | |
|---|---|
| Type object | Woonhuis, eengezinswoning, twee onder een kap woning |
| Soort bouw | Bestaande bouw |
| Bouwjaar | 1955 |
| Type dak | Zadeldak |
| Isolatievormen | Dakisolatie, Dubbel glas, Muurisolatie, Vloerisolatie, Volledig geïsoleerd |
| Oppervlaktes en inhoud | |
|---|---|
| Perceeloppervlakte | 323 m² |
| Woonoppervlakte | 137 m² |
| Inhoud | 536 m³ |
| Oppervlakte gebouwgebonden buitenruimte | 48 m² |
| Indeling | |
|---|---|
| Aantal bouwlagen | 3 (en 1 kelder) |
| Aantal kamers | 5 (waarvan 4 slaapkamers) |
| Locatie | |
|---|---|
| Ligging | Aan rustige weg, In woonwijk |
| Tuin | |
|---|---|
| Type | Achtertuin |
| Hoofdtuin | Ja |
| Oriëntering | West |
| Staat | Goed onderhouden |
| Energieverbruik | |
|---|---|
| Energielabel | B |
| Uitrusting | |
|---|---|
| Warm water | CV-ketel |
| Badkamervoorzieningen | Inloopdouche, Toilet, Wastafel, Wastafelmeubel |
| Parkeergelegenheid | Carport |
| Heeft een alarm | Ja |
| Heeft kabel-tv | Ja |
| Tuin aanwezig | Ja |
| Heeft rolluiken | Ja |
| Heeft een schuifpui | Ja |
| Heeft zonwering | Ja |
| Heeft ventilatie | Ja |
Beschrijving
Sfeervolle en gerenoveerde twee-onder-een-kapwoning op een toplocatie in Keent!
Alphons Boostenstraat 40, Weert
Een huis waar sfeer, comfort en praktische woonruimte samenkomen
Welkom bij deze unieke en gerenoveerde twee onder een kapwoning, gelegen aan de breed opgezette Alphons Boostenstraat. Dankzij de royale straat met middenberm en volwassen bomen geniet je vanuit de woning van een prachtig vrij uitzicht. De woning is aan de achterzijde uitgebouwd, beschikt over twee brede dakkapellen op de eerste verdieping en een dakkapel op de zolder.
De renovatie is met veel aandacht uitgevoerd: vloerverwarming op de gehele begane grond, HR++ beglazing, (na)isolatie van dak, wanden en vloeren en een afsluitbare terrasoverkapping. De achtertuin is royaal, onderhoudsvriendelijk en op het westen gelegen. Een fantastisch instapklaar huis voor wie op zoek is naar ruimte en wooncomfort.
Indeling
Begane grond
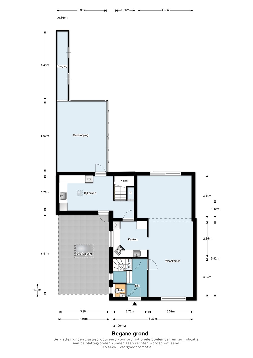
De voortuin is keurig aangelegd en biedt een mooi zicht op de brede straat. De carport met lichtkoepel zorgt voor comfortabel parkeren op eigen terrein. Via de hardstenen omlijsting rondom de voordeur betreed je de hal, die is afgewerkt met een naadloos gelegde vloertegel met vloerverwarming. In de hal bevinden zich de toiletruimte, de meterkast (in de trapkast) en de toegang tot de woonkamer.
De woonkamer is sfeervol en modern afgewerkt. De vloertegel uit de hal loopt hier door en is eveneens voorzien van vloerverwarming. Aan de achterzijde bevindt zich de aanbouw met aluminium schuifpui (HR++ glas) naar de tuin. Aan de voorzijde is ruimte voor een comfortabele eethoek. De wanden zijn strak afgewerkt en plafondspots zorgen voor een warme en luxe uitstraling. Vanuit de woonkamer is de halfopen keuken bereikbaar.
De keuken heeft een raam met zicht op de oprit en carport. Verder is deze uitgerust met een 4-pits gaskookplaat, rvs afzuigkap, combi-oven, koelkast, vaatwasser en een granieten werkblad. Ook hier zijn vloerverwarming, plafondspots en de naadloos doorgelegde tegelvloer aanwezig.
De aangrenzende bijkeuken biedt enorm veel kastruimte en is ingericht met een tweede keukenopstelling. Deze beschikt over maatwerk vaste kasten en een keukenopstand met spoelbak, oven, koelkast en diepvries. Een bijzonder ruime en complete bijkeuken. Vanuit de bijkeuken zijn zowel de droge kelder met witgoedaansluitingen, als de terrasoverkapping bereikbaar.
Eerste verdieping
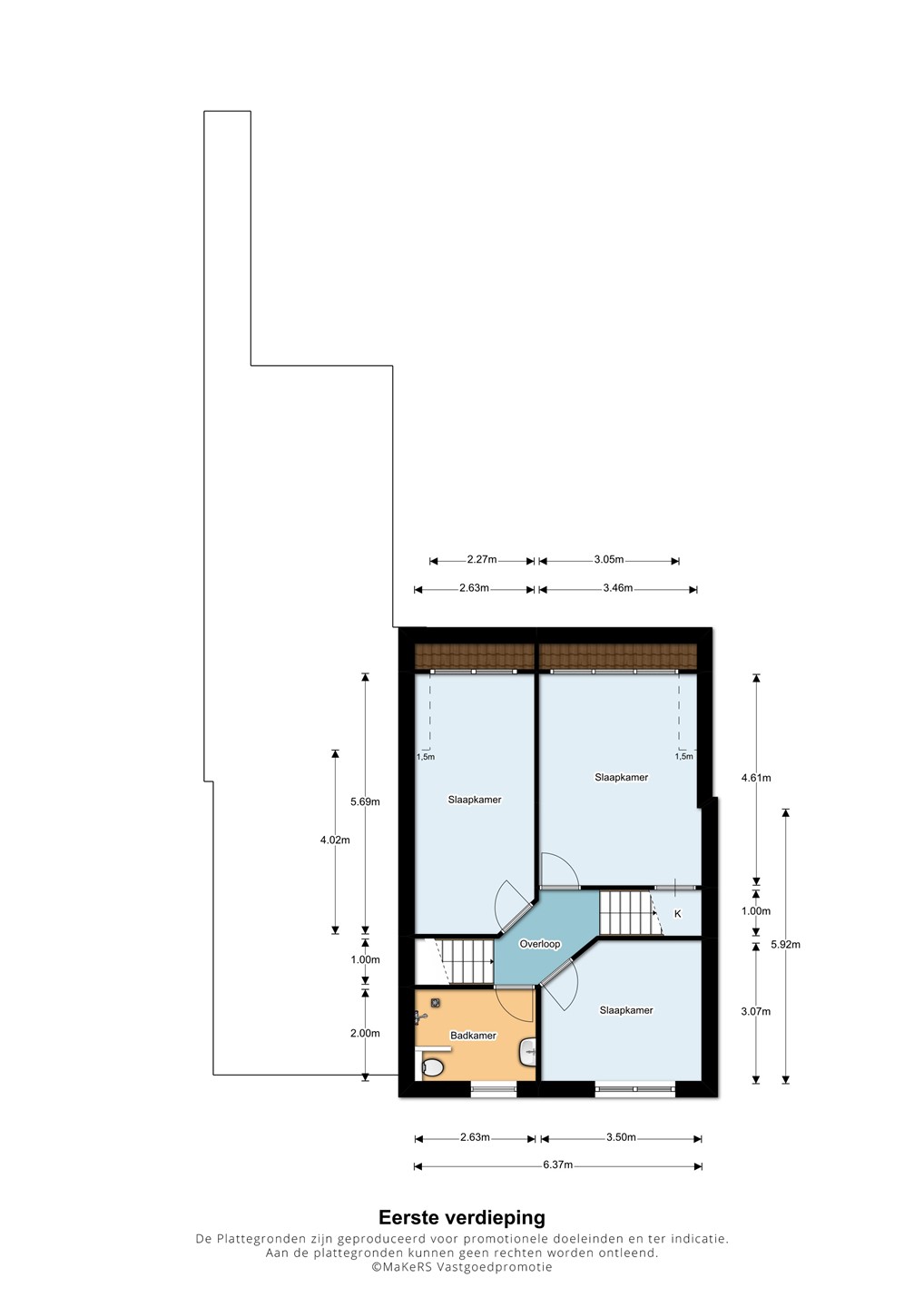
Op de eerste verdieping bevinden zich drie slaapkamers en een badkamer. De overloop en slaapkamers zijn afgewerkt met dezelfde laminaatvloer. De kamers aan de achterzijde zijn voorzien van een brede dakkapel, wat zorgt voor extra ruimte en licht. De hardhouten kozijnen zijn uitgerust met HR++ glas en rolluiken.
De badkamer is modern en comfortabel ingericht met een royale inloopdouche met regendouche, een wandcloset, een wastafel met meubel en een designradiator. Een fijne, complete en lichte ruimte.
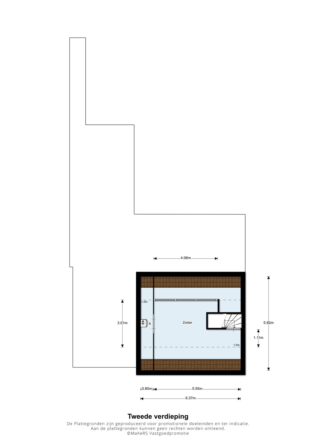
Zolder
Via een vaste trap bereik je de volledig afgewerkte en geïsoleerde zolderverdieping. De brede dakkapel zorgt ook hier voor veel licht en ruimte. De vaste maatwerk kasten bieden extra bergruimte; achter één van deze kasten bevindt zich de combi-ketel. De zolder is afgewerkt met tapijt en plafondspots. Een ideale ruimte voor een slaapkamer, werkplek of hobbykamer.
Buitenruimte
De achtertuin is een heerlijke plek om te genieten van het buitenleven. De tuin is royaal, west georiënteerd en afgewerkt met een degelijke schutting en diverse bomen. De tuin is onderhoudsvriendelijk aangelegd met terrassen, een groot kunstgazon en een ingegraven trampoline. Aan de achterzijde van de woning bevindt zich een zonnescherm.
De afsluitbare terrasoverkapping is een echte eyecatcher. Deze ruimte vormt de perfecte verbinding tussen binnen en buiten. Dankzij de glazen schuifwand is de overkapping zowel in het voor en najaar als in de zomer optimaal te gebruiken. De overkapping is afgewerkt met een tegelvloer, plafondspots en een houten voorzetwand.
Onder de carport met lichtkoepel en plafondspots parkeer je de auto droog en comfortabel. Via de achterdeur loop je direct de bijkeuken binnen. De oprit is strak aangelegd en biedt ruimte voor maar liefst drie auto’s. De woning is bovendien uitgerust met een alarminstallatie.
Een instapklaar, compleet en sfeervol woonhuis op een geliefde locatie in Keent!
Bijzonderheden van deze woning:
- Gerenoveerde en uitgebouwde woning in de woonwijk Keent
- Keurig aangelegde voortuin en grote oprit (3 auto’s) met carport
- Hardhouten kozijnen, HR++ beglazing en rolluiken (aluminium schuifpui in woonkamer)
- Droge kelder met witgoedaansluitingen en tegelvloer
- Gehele begane grond voorzien van naadloos gelegde vloertegel met vloerverwarming
- Keuken met veel kastruimte en aangrenzende bijkeuken met tweede keukenopstelling
- Eerste verdieping met drie slaapkamers (waarvan twee met dakkapel)
- Vaste trap naar volledig afgewerkte zolder met dakkapel
- Grote achtertuin op het westen met terrassen, kunstgras, ingegraven trampoline en zonnescherm
- Afsluitbare terrasoverkapping met glazen schuifwand, tegelvloer en spotverlichting
- Uitgerust met alarminstallatie
Alphons Boostenstraat 40, Weert
Een huis waar sfeer, comfort en praktische woonruimte samenkomen
Welkom bij deze unieke en gerenoveerde twee onder een kapwoning, gelegen aan de breed opgezette Alphons Boostenstraat. Dankzij de royale straat met middenberm en volwassen bomen geniet je vanuit de woning van een prachtig vrij uitzicht. De woning is aan de achterzijde uitgebouwd, beschikt over twee brede dakkapellen op de eerste verdieping en een dakkapel op de zolder.
De renovatie is met veel aandacht uitgevoerd: vloerverwarming op de gehele begane grond, HR++ beglazing, (na)isolatie van dak, wanden en vloeren en een afsluitbare terrasoverkapping. De achtertuin is royaal, onderhoudsvriendelijk en op het westen gelegen. Een fantastisch instapklaar huis voor wie op zoek is naar ruimte en wooncomfort.
Indeling
Begane grond
De voortuin is keurig aangelegd en biedt een mooi zicht op de brede straat. De carport met lichtkoepel zorgt voor comfortabel parkeren op eigen terrein. Via de hardstenen omlijsting rondom de voordeur betreed je de hal, die is afgewerkt met een naadloos gelegde vloertegel met vloerverwarming. In de hal bevinden zich de toiletruimte, de meterkast (in de trapkast) en de toegang tot de woonkamer.
De woonkamer is sfeervol en modern afgewerkt. De vloertegel uit de hal loopt hier door en is eveneens voorzien van vloerverwarming. Aan de achterzijde bevindt zich de aanbouw met aluminium schuifpui (HR++ glas) naar de tuin. Aan de voorzijde is ruimte voor een comfortabele eethoek. De wanden zijn strak afgewerkt en plafondspots zorgen voor een warme en luxe uitstraling. Vanuit de woonkamer is de halfopen keuken bereikbaar.
De keuken heeft een raam met zicht op de oprit en carport. Verder is deze uitgerust met een 4-pits gaskookplaat, rvs afzuigkap, combi-oven, koelkast, vaatwasser en een granieten werkblad. Ook hier zijn vloerverwarming, plafondspots en de naadloos doorgelegde tegelvloer aanwezig.
De aangrenzende bijkeuken biedt enorm veel kastruimte en is ingericht met een tweede keukenopstelling. Deze beschikt over maatwerk vaste kasten en een keukenopstand met spoelbak, oven, koelkast en diepvries. Een bijzonder ruime en complete bijkeuken. Vanuit de bijkeuken zijn zowel de droge kelder met witgoedaansluitingen, als de terrasoverkapping bereikbaar.
Eerste verdieping
Op de eerste verdieping bevinden zich drie slaapkamers en een badkamer. De overloop en slaapkamers zijn afgewerkt met dezelfde laminaatvloer. De kamers aan de achterzijde zijn voorzien van een brede dakkapel, wat zorgt voor extra ruimte en licht. De hardhouten kozijnen zijn uitgerust met HR++ glas en rolluiken.
De badkamer is modern en comfortabel ingericht met een royale inloopdouche met regendouche, een wandcloset, een wastafel met meubel en een designradiator. Een fijne, complete en lichte ruimte.
Zolder
Via een vaste trap bereik je de volledig afgewerkte en geïsoleerde zolderverdieping. De brede dakkapel zorgt ook hier voor veel licht en ruimte. De vaste maatwerk kasten bieden extra bergruimte; achter één van deze kasten bevindt zich de combi-ketel. De zolder is afgewerkt met tapijt en plafondspots. Een ideale ruimte voor een slaapkamer, werkplek of hobbykamer.
Buitenruimte
De achtertuin is een heerlijke plek om te genieten van het buitenleven. De tuin is royaal, west georiënteerd en afgewerkt met een degelijke schutting en diverse bomen. De tuin is onderhoudsvriendelijk aangelegd met terrassen, een groot kunstgazon en een ingegraven trampoline. Aan de achterzijde van de woning bevindt zich een zonnescherm.
De afsluitbare terrasoverkapping is een echte eyecatcher. Deze ruimte vormt de perfecte verbinding tussen binnen en buiten. Dankzij de glazen schuifwand is de overkapping zowel in het voor en najaar als in de zomer optimaal te gebruiken. De overkapping is afgewerkt met een tegelvloer, plafondspots en een houten voorzetwand.
Onder de carport met lichtkoepel en plafondspots parkeer je de auto droog en comfortabel. Via de achterdeur loop je direct de bijkeuken binnen. De oprit is strak aangelegd en biedt ruimte voor maar liefst drie auto’s. De woning is bovendien uitgerust met een alarminstallatie.
Een instapklaar, compleet en sfeervol woonhuis op een geliefde locatie in Keent!
Bijzonderheden van deze woning:
- Gerenoveerde en uitgebouwde woning in de woonwijk Keent
- Keurig aangelegde voortuin en grote oprit (3 auto’s) met carport
- Hardhouten kozijnen, HR++ beglazing en rolluiken (aluminium schuifpui in woonkamer)
- Droge kelder met witgoedaansluitingen en tegelvloer
- Gehele begane grond voorzien van naadloos gelegde vloertegel met vloerverwarming
- Keuken met veel kastruimte en aangrenzende bijkeuken met tweede keukenopstelling
- Eerste verdieping met drie slaapkamers (waarvan twee met dakkapel)
- Vaste trap naar volledig afgewerkte zolder met dakkapel
- Grote achtertuin op het westen met terrassen, kunstgras, ingegraven trampoline en zonnescherm
- Afsluitbare terrasoverkapping met glazen schuifwand, tegelvloer en spotverlichting
- Uitgerust met alarminstallatie