Met een eigen account kun je panden volgen, opslaan als favoriet, je zoekprofiel opslaan en jouw eigen notities bij een huis maken.
Algemeen
Ruime 2 onder 1 kapwoning met praktijkruimte, garage en vrije ligging nabij centrum Weert!
Kerkstraat 138, Weert
Deze verrassend ruime 2 onder 1 kapwoning ligt op een fijne hoeklocatie met groenstrook aan de voorzijde, waardoor je geniet van extra privacy en een vrij uitzicht.
Met maar liefst 130 m² woonoppervlakte biedt deze woning aanzienlijk meer ruimte dan je op het eerste gezicht... Meer informatie
Kerkstraat 138, Weert
Deze verrassend ruime 2 onder 1 kapwoning ligt op een fijne hoeklocatie met groenstrook aan de voorzijde, waardoor je geniet van extra privacy en een vrij uitzicht.
Met maar liefst 130 m² woonoppervlakte biedt deze woning aanzienlijk meer ruimte dan je op het eerste gezicht... Meer informatie
-
Kenmerken
Alle kenmerken Type object Woonhuis, eengezinswoning, twee onder een kap woning Bouwjaar 1959 Aangeboden sinds Woensdag 14 januari 2026 -
Locatie
Kenmerken
| Overdracht | |
|---|---|
| Referentienummer | 62677/9849140 |
| Vraagprijs | € 415.000,- k.k. |
| Aanvaarding | In overleg |
| Aangeboden sinds | Woensdag 14 januari 2026 |
| Laatste wijziging | Maandag 23 maart 2026 |
| Bouw | |
|---|---|
| Type object | Woonhuis, eengezinswoning, twee onder een kap woning |
| Soort bouw | Bestaande bouw |
| Bouwjaar | 1959 |
| Type dak | Zadeldak |
| Isolatievormen | Dakisolatie, Dubbel glas, Muurisolatie |
| Oppervlaktes en inhoud | |
|---|---|
| Perceeloppervlakte | 195 m² |
| Woonoppervlakte | 130 m² |
| Inhoud | 672 m³ |
| Oppervlakte gebouwgebonden buitenruimte | 19 m² |
| Indeling | |
|---|---|
| Aantal bouwlagen | 3 (en 1 kelder) |
| Aantal kamers | 7 (waarvan 4 slaapkamers) |
| Locatie | |
|---|---|
| Ligging | Aan rustige weg |
| Tuin | |
|---|---|
| Type | Achtertuin |
| Hoofdtuin | Ja |
| Oriëntering | Noorden |
| Heeft een achterom | Ja |
| Staat | Normaal |
| Energieverbruik | |
|---|---|
| Energielabel | C |
| Uitrusting | |
|---|---|
| Warm water | CV-ketel |
| Badkamervoorzieningen | Douche, Wastafel |
| Parkeergelegenheid | Aangebouwde stenen garage |
| Heeft kabel-tv | Ja |
| Heeft een rookkanaal | Ja |
| Tuin aanwezig | Ja |
| Heeft een garage | Ja |
| Heeft rolluiken | Ja |
| Heeft schuur/berging | Ja |
| Heeft een dakraam | Ja |
Beschrijving
Ruime 2 onder 1 kapwoning met praktijkruimte, garage en vrije ligging nabij centrum Weert!
Kerkstraat 138, Weert
Deze verrassend ruime 2 onder 1 kapwoning ligt op een fijne hoeklocatie met groenstrook aan de voorzijde, waardoor je geniet van extra privacy en een vrij uitzicht.
Met maar liefst 130 m² woonoppervlakte biedt deze woning aanzienlijk meer ruimte dan je op het eerste gezicht zou verwachten. Dankzij de extra kamers op de begane grond, ideaal als praktijkruimte, kantoor of extra (slaap)kamer, is dit een woning die meegroeit met jouw woonwensen.
De ligging is uitstekend: op korte afstand van het centrum van Weert, scholen, winkels en diverse voorzieningen. Een ideale plek voor wie ruim wil wonen met alle gemakken binnen handbereik.
Indeling
Begane grond
Via een brede stoep bereik je de entree van de woning. De ruime ontvangsthal is praktisch ingedeeld en voorzien van een apart toilet met fontein, de trapopgang en toegang tot de woonkamer, keuken en kelder.
De woonkamer is licht en ruim dankzij de grote raampartij aan de voorkant. Deze ruimte biedt volop mogelijkheden voor een comfortabele zithoek en een royale eethoek. Aansluitend bevindt zich de grote keuken, die uitzicht biedt op de tuin. De keuken is voorzien van diverse inbouwapparatuur zoals een 4-pits gasfornuis, afzuigkap, vaatwasser, combi-oven en koelkast. De naastgelegen bijkeuken is praktisch ingedeeld en beschikt over witgoedaansluitingen, wastafel en tuindeur met rolluik.
Een groot pluspunt zijn de twee extra ruimtes op de begane grond. Deze ruimtes zijn ideaal als praktijkruimte, kantoor, speelkamer of extra slaapkamer. Een waardevolle toevoeging voor wie flexibel wil wonen. Vanuit hier heb je direct toegang tot de tuin (waar een aparte ingang te realiseren is via een praktische achterom) en de garage.
De woning beschikt daarnaast over een kelder, ideaal te gebruiken als provisieruimte.
Eerste verdieping
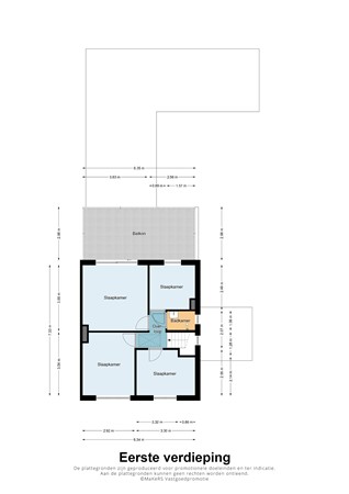
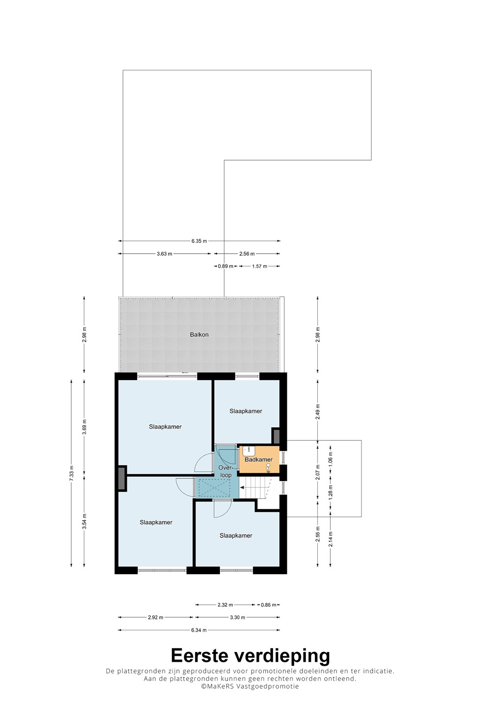
Op de eerste verdieping bevinden zich vier slaapkamers, van verschillend formaat. Eén van de kamers biedt bovendien de mogelijkheid om een balkon te realiseren, met een verrassende oppervlakte van 19 m2. De kamers zijn licht en praktisch ingedeeld en aan de achterzijde van de woning voorzien van rolluiken. De badkamer is voorzien van een douche, wastafel en meubel.
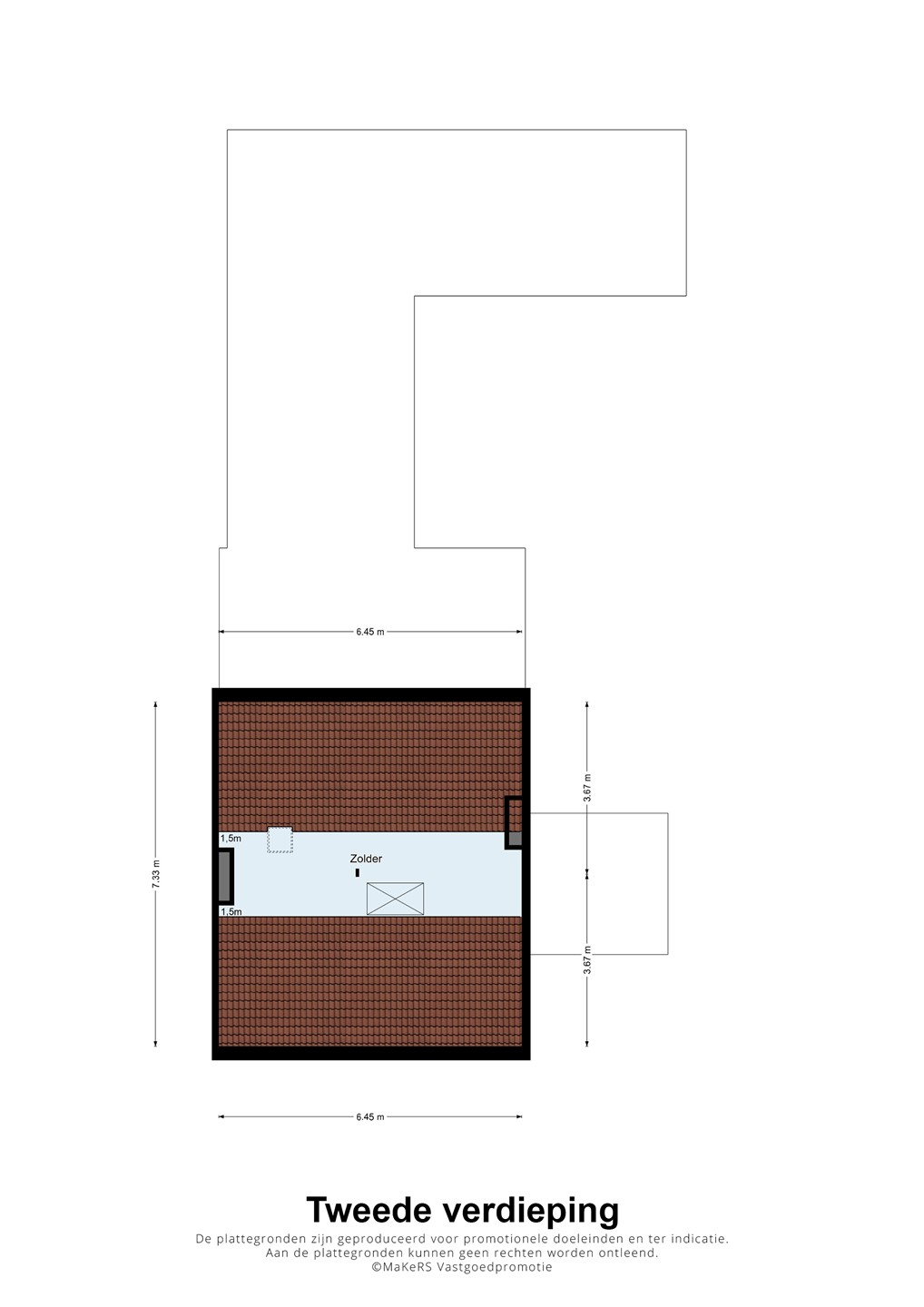
Zolder
De grote zolder is bereikbaar via een vlizo trap en beschikt over een vernieuwd kunststof dakraam (2007). Dankzij de royale afmetingen is deze verdieping uitstekend geschikt voor extra opslag of het creëren van een extra kamer.
Buitenruimte
De aanpandige, diepe garage is voorzien van een elektrische rolpoort en elektra en biedt volop ruimte voor opslag, hobby’s of het stallen van fietsen. Ook beschikt deze ruimte over een aparte meterkast. Via de garage stap je zo de achtertuin in. Deze is compleet met praktische achterom en een aparte (fietsen)berging.
Bijzonderheden van deze woning:
- Verrassend ruim: 130 m² woonoppervlakte
- Fijne vrije hoekligging door groenstrook aan de voorzijde
- Nabij het centrum van Weert en diverse voorzieningen
- Extra ruimtes op begane grond, ideaal als praktijkruimte, kantoor of extra (slaap)kamer
- Grote keuken met naastgelegen bijkeuken
- Aanpandige, diepe garage met elektrische rolpoort
- Praktische achterom en aparte (fietsen)berging
- Vier slaapkamers op de eerste verdieping
- Grote zolder met vernieuwd kunststof dakraam (2007)
Kerkstraat 138, Weert
Deze verrassend ruime 2 onder 1 kapwoning ligt op een fijne hoeklocatie met groenstrook aan de voorzijde, waardoor je geniet van extra privacy en een vrij uitzicht.
Met maar liefst 130 m² woonoppervlakte biedt deze woning aanzienlijk meer ruimte dan je op het eerste gezicht zou verwachten. Dankzij de extra kamers op de begane grond, ideaal als praktijkruimte, kantoor of extra (slaap)kamer, is dit een woning die meegroeit met jouw woonwensen.
De ligging is uitstekend: op korte afstand van het centrum van Weert, scholen, winkels en diverse voorzieningen. Een ideale plek voor wie ruim wil wonen met alle gemakken binnen handbereik.
Indeling
Begane grond
Via een brede stoep bereik je de entree van de woning. De ruime ontvangsthal is praktisch ingedeeld en voorzien van een apart toilet met fontein, de trapopgang en toegang tot de woonkamer, keuken en kelder.
De woonkamer is licht en ruim dankzij de grote raampartij aan de voorkant. Deze ruimte biedt volop mogelijkheden voor een comfortabele zithoek en een royale eethoek. Aansluitend bevindt zich de grote keuken, die uitzicht biedt op de tuin. De keuken is voorzien van diverse inbouwapparatuur zoals een 4-pits gasfornuis, afzuigkap, vaatwasser, combi-oven en koelkast. De naastgelegen bijkeuken is praktisch ingedeeld en beschikt over witgoedaansluitingen, wastafel en tuindeur met rolluik.
Een groot pluspunt zijn de twee extra ruimtes op de begane grond. Deze ruimtes zijn ideaal als praktijkruimte, kantoor, speelkamer of extra slaapkamer. Een waardevolle toevoeging voor wie flexibel wil wonen. Vanuit hier heb je direct toegang tot de tuin (waar een aparte ingang te realiseren is via een praktische achterom) en de garage.
De woning beschikt daarnaast over een kelder, ideaal te gebruiken als provisieruimte.
Eerste verdieping
Op de eerste verdieping bevinden zich vier slaapkamers, van verschillend formaat. Eén van de kamers biedt bovendien de mogelijkheid om een balkon te realiseren, met een verrassende oppervlakte van 19 m2. De kamers zijn licht en praktisch ingedeeld en aan de achterzijde van de woning voorzien van rolluiken. De badkamer is voorzien van een douche, wastafel en meubel.
Zolder
De grote zolder is bereikbaar via een vlizo trap en beschikt over een vernieuwd kunststof dakraam (2007). Dankzij de royale afmetingen is deze verdieping uitstekend geschikt voor extra opslag of het creëren van een extra kamer.
Buitenruimte
De aanpandige, diepe garage is voorzien van een elektrische rolpoort en elektra en biedt volop ruimte voor opslag, hobby’s of het stallen van fietsen. Ook beschikt deze ruimte over een aparte meterkast. Via de garage stap je zo de achtertuin in. Deze is compleet met praktische achterom en een aparte (fietsen)berging.
Bijzonderheden van deze woning:
- Verrassend ruim: 130 m² woonoppervlakte
- Fijne vrije hoekligging door groenstrook aan de voorzijde
- Nabij het centrum van Weert en diverse voorzieningen
- Extra ruimtes op begane grond, ideaal als praktijkruimte, kantoor of extra (slaap)kamer
- Grote keuken met naastgelegen bijkeuken
- Aanpandige, diepe garage met elektrische rolpoort
- Praktische achterom en aparte (fietsen)berging
- Vier slaapkamers op de eerste verdieping
- Grote zolder met vernieuwd kunststof dakraam (2007)