Beschrijving

In de gezellige wijk Boshoven aan een rustige straat ligt deze twee-onder-een-kapwoning met eigen oprit, garage en mogelijkheid tot vier slaapkamers. De woning biedt een comfortabele indeling met een lichte woonkamer, moderne keuken en een zolder met extra ruimte. De achtertuin is een fijne plek om te ontspannen, met een overkapping voor zomerse dagen. Een ideale woning voor wie op zoek is naar ruimte, rust en een praktische gezinswoning op een goede locatie in Weert.

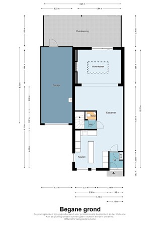
Indeling

Begane grond
Via de ruime oprit bereik je de entree van de woning. In de hal bevinden zich de meterkast en de garderobe. De lichte woonkamer is voorzien van airconditioning en een sfeervolle haard, perfect voor gezellige avonden. Dankzij de grote raampartijen en de schuifpui naar de achtertuin geniet je van veel daglicht en een directe verbinding met buiten.

De moderne keuken is een echte eyecatcher: uitgerust met een werkeiland, granieten werkblad en hoogwaardige inbouwapparatuur zoals een inductie kookplaat, vaatwasser, combi-oven, koffiemachine, koelkast en diepvries. Hier kook je met plezier en gemak.

Het toilet bevindt zich in het tussenhalletje dat leidt naar de eerste verdieping. 

Eerste verdieping
Op deze verdieping bevinden zich drie comfortabele slaapkamers, allen met voldoende lichtinval en ruimte voor kastruimte. De badkamer is functioneel en biedt mogelijkheden tot modernisering naar eigen smaak. Momenteel is deze voorzien van een dubbele wastafel, meubel, douche en toilet. 

Zolder
Via een vaste trap bereik je de zolderverdieping. Deze ruimte leent zich uitstekend voor het realiseren van een vierde slaapkamer, hobbyruimte of thuiskantoor. Het dakraam zorgt voor natuurlijke lichtinval. Op de voorzolder zit de aansluiting van de Cv-ketel en voor de wasmachine. 

Buitenruimte
De achtertuin is onderhoudsvriendelijk aangelegd en biedt volop privacy. Onder de ruime overkapping kun je het hele jaar door genieten van buitenleven. Achter in de tuin staat een vrijstaand houten tuinhuisje met elektra, ideaal als berging.

De voortuin is eveneens onderhoudsvriendelijk en draagt bij aan de nette uitstraling van de woning. De oprit biedt plaats aan meerdere auto’s en leidt naar de aanpandige garage, die zowel van binnenuit als via de tuin toegankelijk is. Deze garage is voorzien van water, elektra en een elektrische deur. 


Bijzonderheden van deze woning:

-	2-onder-1-kapwoning met aanpandige garage
-	Grote oprit met parkeergelegenheid voor meerdere auto’s
-	Woonkamer met airco en sfeervolle haard
-	Moderne keuken met werkeiland en luxe inbouwapparatuur
-	Drie slaapkamers en mogelijkheid tot vierde op zolder
-	Schuifpui naar ruime overkapping aan achterzijde
-	Vrijstaand houten tuinhuisje met elektra
-	Onderhoudsvriendelijke voor- en achtertuin
-	Gelegen in rustige woonwijk nabij voorzieningen

Kenmerken