Beschrijving

Vrijstaande woning met royale tuin en garage in rustige woonwijk

Leumehofstraat 12, Weert

Welkom bij deze charmante vrijstaande woning, gelegen in de geliefde en rustige wijk Boshoven (Vrakker-West) in Weert. Gebouwd in 2004, biedt deze woning een overvloed aan ruimte, zowel binnen als buiten, en is daarmee ideaal voor gezinnen of voor wie op zoek is naar rust en comfort. Met een ruim perceel, eigen oprit, aanpandige garage en een sfeervolle tuin rondom, voelt thuiskomen hier als vanzelfsprekend.

De woning bevindt zich in een groene, kindvriendelijke omgeving met scholen, winkels en sportfaciliteiten op korte afstand. Ook de uitvalswegen richting Eindhoven en Roermond zijn snel en eenvoudig bereikbaar.

Indeling

Begane grond

Bij binnenkomst betreed je de ruime hal met garderobe, meterkast, toilet, trap naar de eerste verdieping en toegang tot de woonkamer. De lichte woonkamer is voorzien van grote raampartijen en twee fraaie erkers, waardoor het daglicht rijkelijk binnenvalt. De begane grond is uitgerust met comfortabele vloerverwarming.

De woonkamer loopt naadloos over in de open keuken, die is afgewerkt met een granieten werkblad en inbouwapparatuur van Siemens en Bosch. Aansluitend vind je de praktische bijkeuken met witgoedaansluitingen en extra bergruimte dankzij vaste kasten met schuifdeuren.

De dubbele tuindeuren met hordeur geven toegang tot de fijne achtertuin en de overkapping. De aangebouwde garage is volledig geïsoleerd en voorzien van een elektrische deur, waardoor deze uitstekend geschikt is als hobbyruimte of werkplaats.

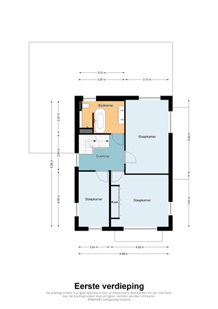
Eerste verdieping

Op de eerste verdieping bevinden zich drie ruime en comfortabele slaapkamers, elk voorzien van rolluiken en raamhorren. De moderne badkamer is praktisch ingericht en beschikt over een luxe ligbad met wandkranen, een inloopdouche met regendouche en ruime nis, een dubbel wastafelmeubel met extra muurkast, toilet en designradiator.

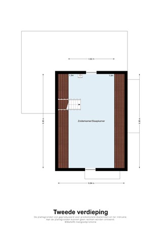
Tweede verdieping

Via een vaste trap bereik je de tweede verdieping. Deze riante ruimte leent zich voor een extra slaap- of werkkamer. Ook bevinden zich hier de HR-combiketel (Intergas Extreme, 2024) en de WTW-installatie. 

Buitenruimte

De woning beschikt over een royale voor- en achtertuin met een handige achterom. Onder de overkapping met inbouwspots en dakkoepel geniet je van een heerlijk overdekt terras. Het vrijstaande houten tuinhuis biedt extra opslagruimte of plek voor tuinliefhebbers. De oprit biedt plaats aan meerdere auto’s en is voorzien van een aansluiting voor elektrische voertuigen.

Bijzonderheden van deze woning:

-	Vrijstaande woning op royaal perceel in rustige wijk Boshoven
-	Grote voor- en achtertuin met achterom
-	Volledig geïsoleerde aangebouwde garage met elektrische deur
-	Keuken met granieten werkblad en Siemens inbouwapparatuur
-	Vloerverwarming op de begane grond
-	Raampartijen voorzien van horren en rolluiken
-	Dubbele tuindeuren met hordeur naar de tuin
-	HR-combiketel uit 2024 (Intergas Extreme)
-	WTW-installatie voor optimaal binnenklimaat
-	Vrijstaand houten tuinhuis
-	Praktische bijkeuken met witgoedaansluitingen
-	Oprit met laadmogelijkheid voor elektrische voertuigen

Een woning die rust, ruimte en comfort op harmonieuze wijze combineert, en dat alles op een uitstekende locatie in Weert.

Kenmerken