Met een eigen account kun je panden volgen, opslaan als favoriet, je zoekprofiel opslaan en jouw eigen notities bij een huis maken.
Algemeen
Ruimte, comfort en een ideale ligging nabij het bruisende centrum van Weert!
Welkom bij deze sfeervolle hoekwoning aan de Schuttebeemd 48. Deze woning combineert een rustige woonomgeving met de voordelen van een centrale ligging. Dankzij de royale oprit, garage en praktische indeling is dit een ideale plek voor starters én jonge gezinnen die op zoek zijn naar een fijne thuisbasis.
De woni... Meer informatie
Welkom bij deze sfeervolle hoekwoning aan de Schuttebeemd 48. Deze woning combineert een rustige woonomgeving met de voordelen van een centrale ligging. Dankzij de royale oprit, garage en praktische indeling is dit een ideale plek voor starters én jonge gezinnen die op zoek zijn naar een fijne thuisbasis.
De woni... Meer informatie
-
Kenmerken
Alle kenmerken Type object Woonhuis, eengezinswoning, hoekwoning Bouwjaar 1961 Aangeboden sinds Vrijdag 5 september 2025 -
Locatie
Kenmerken
| Overdracht | |
|---|---|
| Referentienummer | 62677/9437256 |
| Vraagprijs | € 389.000,- k.k. |
| Aanvaarding | In overleg |
| Aangeboden sinds | Vrijdag 5 september 2025 |
| Laatste wijziging | Maandag 27 oktober 2025 |
| Bouw | |
|---|---|
| Type object | Woonhuis, eengezinswoning, hoekwoning |
| Soort bouw | Bestaande bouw |
| Bouwjaar | 1961 |
| Type dak | Zadeldak |
| Isolatievormen | Vloerisolatie |
| Oppervlaktes en inhoud | |
|---|---|
| Perceeloppervlakte | 263 m² |
| Woonoppervlakte | 95 m² |
| Inhoud | 426 m³ |
| Oppervlakte gebouwgebonden buitenruimte | 2 m² |
| Indeling | |
|---|---|
| Aantal bouwlagen | 3 (en 1 kelder) |
| Aantal kamers | 4 (waarvan 3 slaapkamers) |
| Locatie | |
|---|---|
| Ligging | Aan rustige weg, In woonwijk |
| Tuin | |
|---|---|
| Type | Achtertuin |
| Hoofdtuin | Ja |
| Oriëntering | Zuiden |
| Heeft een achterom | Ja |
| Staat | Prachtig aangelegd |
| Energieverbruik | |
|---|---|
| Energielabel | D |
| Uitrusting | |
|---|---|
| Warm water | CV-ketel |
| Badkamervoorzieningen | Douche, Toilet, Wastafel, Wastafelmeubel |
| Parkeergelegenheid | Vrijstaande stenen garage |
| Heeft kabel-tv | Ja |
| Tuin aanwezig | Ja |
| Heeft een garage | Ja |
| Heeft rolluiken | Ja |
| Heeft een dakraam | Ja |
| Heeft zonwering | Ja |
| Heeft ventilatie | Ja |
Beschrijving
Ruimte, comfort en een ideale ligging nabij het bruisende centrum van Weert!
Welkom bij deze sfeervolle hoekwoning aan de Schuttebeemd 48. Deze woning combineert een rustige woonomgeving met de voordelen van een centrale ligging. Dankzij de royale oprit, garage en praktische indeling is dit een ideale plek voor starters én jonge gezinnen die op zoek zijn naar een fijne thuisbasis.
De woning ligt in een kindvriendelijke en groene woonwijk op loopafstand van het centrum van Weert. In de directe omgeving vind je diverse voorzieningen zoals supermarkten, scholen, sportclubs en het NS-station. De wijk kenmerkt zich door rust en een prettige leefomgeving, terwijl je binnen enkele minuten midden in het stadsleven staat.
Indeling
Begane grond
Via de ruime ontvangsthal heb je toegang tot het toilet, de kelder, de trap naar boven en de lichte woonkamer. De woonkamer is voorzien van grote raampartijen aan zowel de voor- als achterzijde, wat zorgt voor een aangename lichtinval. De elektrisch bedienbare rolluiken bieden extra comfort en privacy.
De moderne open keuken, met granieten werkblad, is in 2014 gerealiseerd en uitgerust met hoogwaardige Siemens en AEG-inbouwapparatuur. De keuken is voorzien van vloerverwarming. Via de tuindeur heb je directe toegang tot de achtertuin, waardoor binnen en buiten naadloos in elkaar overlopen.
Kelder
De betegelde kelder biedt volop mogelijkheden als opslagruimte of hobbyruimte. Dankzij de nette afwerking is deze ruimte direct bruikbaar en multifunctioneel.
Eerste verdieping
Op de eerste verdieping bevinden zich drie goed bemeten slaapkamers. De badkamer, die toegang biedt tot het balkon aan de voorzijde, is voorzien van douchecabine, toilet, wastafel en meubel en designradiator. Daarnaast is er een aparte ruimte voor witgoedaansluitingen.
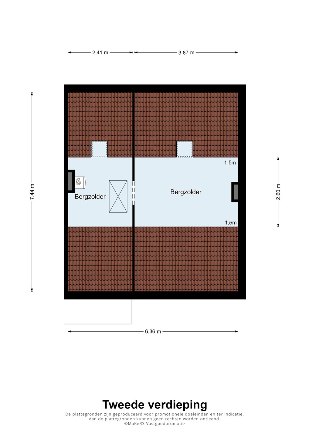
Zolder
De zolder is bereikbaar via een vlizotrap en biedt extra bergruimte. Hier bevindt zich ook de Remeha Avanta HR combi-ketel. De zolder is ideaal voor het opbergen van seizoensspullen.
Buitenruimte
De onderhoudsvriendelijke achtertuin is voorzien van Weinor zonnescherm aan de achtergevel en biedt volop privacy dankzij de hoekligging. De royale oprit biedt plaats aan meerdere voertuigen en geeft toegang tot de garage en achtertuin via een handige achterom.
Bijzonderheden van deze woning:
- Hoekwoning met grote oprit en garage
- Drie slaapkamers en aparte wasruimte
- Vloerverwarming in de keuken
- Keuken vernieuwd in 2014 met Siemens en AEG-inbouwapparatuur
- Directe toegang tot tuin via tuindeur
- Betegelde kelder
- Balkon aan voorzijde
- HR++ glas en elektrisch bedienbare rolluiken
- Weinor zonnescherm aan achtergevel
Welkom bij deze sfeervolle hoekwoning aan de Schuttebeemd 48. Deze woning combineert een rustige woonomgeving met de voordelen van een centrale ligging. Dankzij de royale oprit, garage en praktische indeling is dit een ideale plek voor starters én jonge gezinnen die op zoek zijn naar een fijne thuisbasis.
De woning ligt in een kindvriendelijke en groene woonwijk op loopafstand van het centrum van Weert. In de directe omgeving vind je diverse voorzieningen zoals supermarkten, scholen, sportclubs en het NS-station. De wijk kenmerkt zich door rust en een prettige leefomgeving, terwijl je binnen enkele minuten midden in het stadsleven staat.
Indeling
Begane grond
Via de ruime ontvangsthal heb je toegang tot het toilet, de kelder, de trap naar boven en de lichte woonkamer. De woonkamer is voorzien van grote raampartijen aan zowel de voor- als achterzijde, wat zorgt voor een aangename lichtinval. De elektrisch bedienbare rolluiken bieden extra comfort en privacy.
De moderne open keuken, met granieten werkblad, is in 2014 gerealiseerd en uitgerust met hoogwaardige Siemens en AEG-inbouwapparatuur. De keuken is voorzien van vloerverwarming. Via de tuindeur heb je directe toegang tot de achtertuin, waardoor binnen en buiten naadloos in elkaar overlopen.
Kelder
De betegelde kelder biedt volop mogelijkheden als opslagruimte of hobbyruimte. Dankzij de nette afwerking is deze ruimte direct bruikbaar en multifunctioneel.
Eerste verdieping
Op de eerste verdieping bevinden zich drie goed bemeten slaapkamers. De badkamer, die toegang biedt tot het balkon aan de voorzijde, is voorzien van douchecabine, toilet, wastafel en meubel en designradiator. Daarnaast is er een aparte ruimte voor witgoedaansluitingen.
Zolder
De zolder is bereikbaar via een vlizotrap en biedt extra bergruimte. Hier bevindt zich ook de Remeha Avanta HR combi-ketel. De zolder is ideaal voor het opbergen van seizoensspullen.
Buitenruimte
De onderhoudsvriendelijke achtertuin is voorzien van Weinor zonnescherm aan de achtergevel en biedt volop privacy dankzij de hoekligging. De royale oprit biedt plaats aan meerdere voertuigen en geeft toegang tot de garage en achtertuin via een handige achterom.
Bijzonderheden van deze woning:
- Hoekwoning met grote oprit en garage
- Drie slaapkamers en aparte wasruimte
- Vloerverwarming in de keuken
- Keuken vernieuwd in 2014 met Siemens en AEG-inbouwapparatuur
- Directe toegang tot tuin via tuindeur
- Betegelde kelder
- Balkon aan voorzijde
- HR++ glas en elektrisch bedienbare rolluiken
- Weinor zonnescherm aan achtergevel