Verkocht onder voorbehoud

Verkocht onder voorbehoud: Schuttebeemd 48, 6004 GT Weert

€ 389.000,- k.k.
€ 4.094,74/m2
Type object Woonhuis, eengezinswoning, hoekwoning
Perceeloppervlakte 263 m²
Woonoppervlakte 95 m²
Aanvaarding In overleg
Status Verkocht onder voorbehoud

Notitie

Algemeen

Ruimte, comfort en een ideale ligging nabij het bruisende centrum van Weert!

Welkom bij deze sfeervolle hoekwoning aan de Schuttebeemd 48. Deze woning combineert een rustige woonomgeving met de voordelen van een centrale ligging. Dankzij de royale oprit, garage en praktische indeling is dit een ideale plek voor starters én jonge gezinnen die op zoek zijn naar een fijne thuisbasis.

De woni... Meer informatie
  • Kenmerken

    Alle kenmerken
    Type object Woonhuis, eengezinswoning, hoekwoning
    Bouwjaar 1961
    Status Verkocht onder voorbehoud
    Aangeboden sinds Vrijdag 5 september 2025
  • Locatie

Kenmerken

Overdracht
Referentienummer 62677/9437256
Vraagprijs € 389.000,- k.k.
Status Verkocht onder voorbehoud
Aanvaarding In overleg
Aangeboden sinds Vrijdag 5 september 2025
Laatste wijziging Zaterdag 6 december 2025
Bouw
Type object Woonhuis, eengezinswoning, hoekwoning
Soort bouw Bestaande bouw
Bouwjaar 1961
Type dak Zadeldak
Isolatievormen Vloerisolatie
Oppervlaktes en inhoud
Perceeloppervlakte 263 m²
Woonoppervlakte 95 m²
Inhoud 426 m³
Oppervlakte gebouwgebonden buitenruimte 2 m²
Indeling
Aantal bouwlagen 3 (en 1 kelder)
Aantal kamers 4 (waarvan 3 slaapkamers)
Locatie
Ligging Aan rustige weg, In woonwijk
Tuin
Type Achtertuin
Hoofdtuin Ja
Oriëntering Zuiden
Heeft een achterom Ja
Staat Prachtig aangelegd
Energieverbruik
Energielabel D
Uitrusting
Warm water CV-ketel
Badkamervoorzieningen Douche, Toilet, Wastafel, Wastafelmeubel
Parkeergelegenheid Vrijstaande stenen garage
Heeft kabel-tv Ja
Tuin aanwezig Ja
Heeft een garage Ja
Heeft rolluiken Ja
Heeft een dakraam Ja
Heeft zonwering Ja
Heeft ventilatie Ja

Beschrijving

Ruimte, comfort en een ideale ligging nabij het bruisende centrum van Weert!

Welkom bij deze sfeervolle hoekwoning aan de Schuttebeemd 48. Deze woning combineert een rustige woonomgeving met de voordelen van een centrale ligging. Dankzij de royale oprit, garage en praktische indeling is dit een ideale plek voor starters én jonge gezinnen die op zoek zijn naar een fijne thuisbasis.

De woning ligt in een kindvriendelijke en groene woonwijk op loopafstand van het centrum van Weert. In de directe omgeving vind je diverse voorzieningen zoals supermarkten, scholen, sportclubs en het NS-station. De wijk kenmerkt zich door rust en een prettige leefomgeving, terwijl je binnen enkele minuten midden in het stadsleven staat.

Indeling

Begane grond
Via de ruime ontvangsthal heb je toegang tot het toilet, de kelder, de trap naar boven en de lichte woonkamer. De woonkamer is voorzien van grote raampartijen aan zowel de voor- als achterzijde, wat zorgt voor een aangename lichtinval. De elektrisch bedienbare rolluiken bieden extra comfort en privacy.

De moderne open keuken, met granieten werkblad, is in 2014 gerealiseerd en uitgerust met hoogwaardige Siemens en AEG-inbouwapparatuur. De keuken is voorzien van vloerverwarming. Via de tuindeur heb je directe toegang tot de achtertuin, waardoor binnen en buiten naadloos in elkaar overlopen.

Kelder
De betegelde kelder biedt volop mogelijkheden als opslagruimte of hobbyruimte. Dankzij de nette afwerking is deze ruimte direct bruikbaar en multifunctioneel.

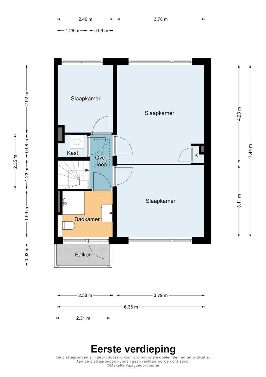
Eerste verdieping
Op de eerste verdieping bevinden zich drie goed bemeten slaapkamers. De badkamer, die toegang biedt tot het balkon aan de voorzijde, is voorzien van douchecabine, toilet, wastafel en meubel en designradiator. Daarnaast is er een aparte ruimte voor witgoedaansluitingen.

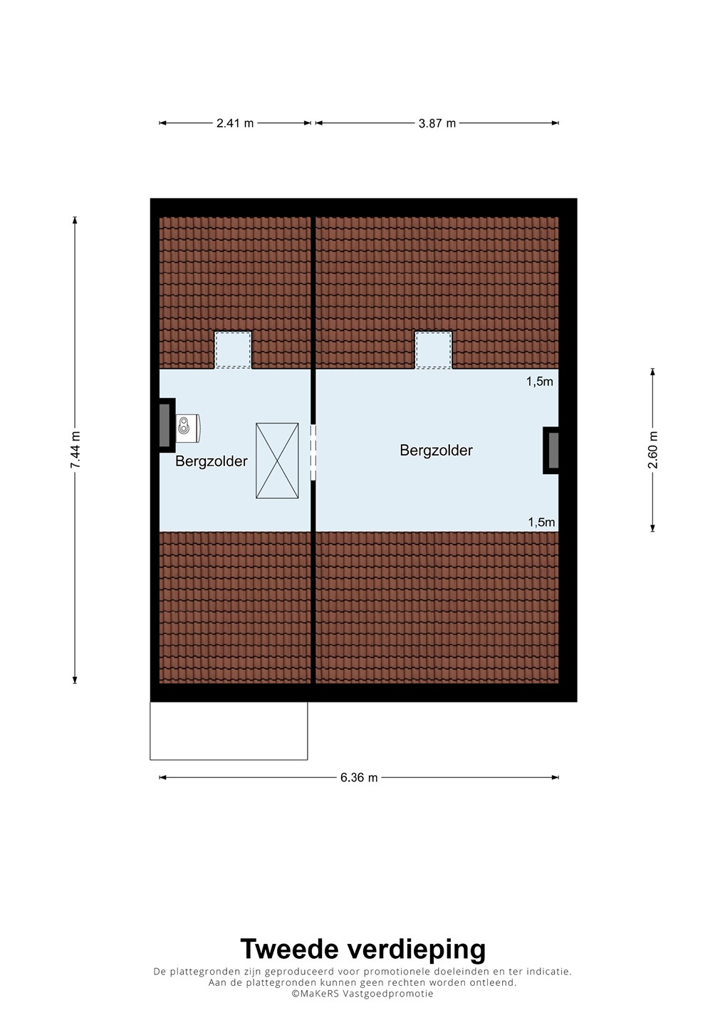
Zolder
De zolder is bereikbaar via een vlizotrap en biedt extra bergruimte. Hier bevindt zich ook de Remeha Avanta HR combi-ketel. De zolder is ideaal voor het opbergen van seizoensspullen.

Buitenruimte
De onderhoudsvriendelijke achtertuin is voorzien van Weinor zonnescherm aan de achtergevel en biedt volop privacy dankzij de hoekligging. De royale oprit biedt plaats aan meerdere voertuigen en geeft toegang tot de garage en achtertuin via een handige achterom.

Bijzonderheden van deze woning:

- Hoekwoning met grote oprit en garage
- Drie slaapkamers en aparte wasruimte
- Vloerverwarming in de keuken
- Keuken vernieuwd in 2014 met Siemens en AEG-inbouwapparatuur
- Directe toegang tot tuin via tuindeur
- Betegelde kelder
- Balkon aan voorzijde
- HR++ glas en elektrisch bedienbare rolluiken
- Weinor zonnescherm aan achtergevel

Brochure(s) en overige bijlagen

Sluiten

Recent bekeken