Met een eigen account kun je panden volgen, opslaan als favoriet, je zoekprofiel opslaan en jouw eigen notities bij een huis maken.
Algemeen
Degelijkheid en ruimte komen samen in deze verrassend royale woning aan de Voorstestraat 123, gelegen in de kindvriendelijke wijk Leuken. De centrale ligging nabij scholen, speeltuinen en uitvalswegen maakt dit een fijne locatie in Weert. Met vier slaapkamers, een vaste trap naar de grote zolder waar met weinig moeite een grote vijfde slaapkamer of kantoorruimte gerealiseerd kan worden; nl. ong... Meer informatie
-
Kenmerken
Alle kenmerken Type object Woonhuis, eengezinswoning, twee onder een kap woning Bouwjaar 1968 Aangeboden sinds Donderdag 23 oktober 2025 -
Locatie
Kenmerken
| Overdracht | |
|---|---|
| Referentienummer | 62677/9610908 |
| Vraagprijs | € 429.000,- k.k. |
| Aanvaarding | In overleg |
| Aangeboden sinds | Donderdag 23 oktober 2025 |
| Laatste wijziging | Vrijdag 12 december 2025 |
| Bouw | |
|---|---|
| Type object | Woonhuis, eengezinswoning, twee onder een kap woning |
| Soort bouw | Bestaande bouw |
| Bouwjaar | 1968 |
| Type dak | Zadeldak |
| Isolatievormen | Dakisolatie, Dubbel glas |
| Oppervlaktes en inhoud | |
|---|---|
| Perceeloppervlakte | 270 m² |
| Woonoppervlakte | 118 m² |
| Inhoud | 503 m³ |
| Oppervlakte gebouwgebonden buitenruimte | 20 m² |
| Indeling | |
|---|---|
| Aantal bouwlagen | 3 |
| Aantal kamers | 5 (waarvan 4 slaapkamers) |
| Locatie | |
|---|---|
| Ligging | Aan rustige weg, In woonwijk |
| Tuin | |
|---|---|
| Type | Achtertuin |
| Hoofdtuin | Ja |
| Oriëntering | Zuid-west |
| Heeft een achterom | Ja |
| Staat | Goed onderhouden |
| Energieverbruik | |
|---|---|
| Energielabel | D |
| Uitrusting | |
|---|---|
| Warm water | CV-ketel |
| Badkamervoorzieningen Badkamer 1 | Douche, Ligbad, Toilet, Wastafel, Wastafelmeubel |
| Parkeergelegenheid | Vrijstaande stenen garage |
| Heeft kabel-tv | Ja |
| Heeft een rookkanaal | Ja |
| Tuin aanwezig | Ja |
| Heeft een garage | Ja |
| Heeft rolluiken | Ja |
| Heeft een dakraam | Ja |
| Heeft een schuifpui | Ja |
| Heeft ventilatie | Ja |
Beschrijving
Degelijkheid en ruimte komen samen in deze verrassend royale woning aan de Voorstestraat 123, gelegen in de kindvriendelijke wijk Leuken. De centrale ligging nabij scholen, speeltuinen en uitvalswegen maakt dit een fijne locatie in Weert. Met vier slaapkamers, een vaste trap naar de grote zolder waar met weinig moeite een grote vijfde slaapkamer of kantoorruimte gerealiseerd kan worden; nl. ongeveer vier duizend euro aan investering tbv na-isolatie van deze kap en het plaatsen van een groot dakvenster. Een ruime woonkamer met schuifpui naar de tuin en een garage met carport biedt dit huis alle mogelijkheden voor comfortabel wonen en eventueel werken vanuit huis!
Begane grond
In de hal vind je het toilet, de meterkast en de trap naar de eerste verdieping. De woonkamer is ruim opgezet en voorzien van een schuifpui naar de achtertuin, waardoor er veel lichtinval is en een directe verbinding met buiten ontstaat. Op de begane grond zijn elektrische rolluiken geplaatst voor extra comfort. De keuken sluit aan op de woonkamer en biedt volop mogelijkheden voor een moderne inrichting. Ook is hier een praktische trapkast aanwezig die ideaal dienstdoet als provisieruimte. Via een tuindeur heb je toegang tot de achtertuin.
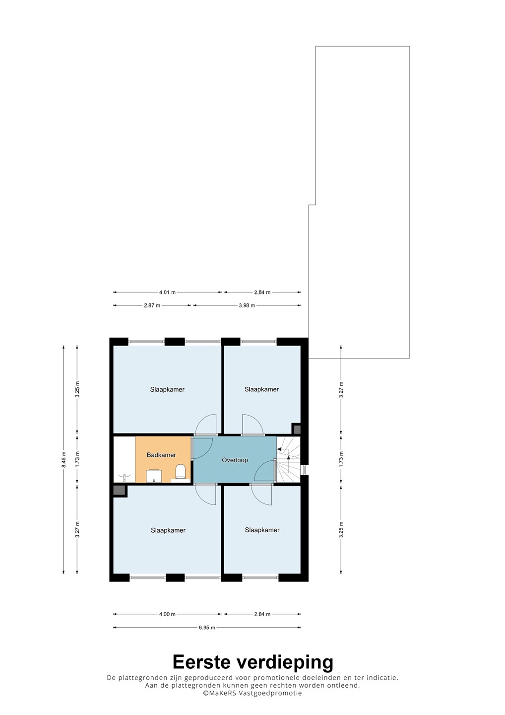
Eerste verdieping
Op de eerste verdieping bevinden zich vier slaapkamers, allen voorzien van nieuwe HR++ beglazing. Aan de voorzijde van de woning zijn de ramen uitgerust met rolluiken. De kamers zijn netjes onderhouden en bieden voldoende ruimte voor diverse indelingen.
De badkamer is praktisch ingericht en voorzien van mechanische afzuiging, een ligbad met douche, wastafel met meubel en toilet.
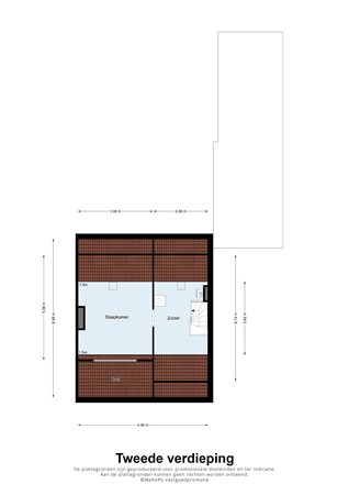
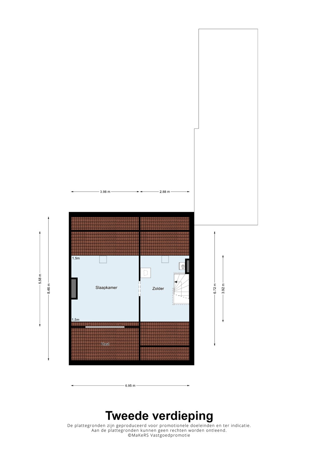
Zolder
Via een vaste trap is de zolder bereikbaar. De dakramen hier zijn in 2020 vernieuwd met isolatieglas. Hier kan eenvoudig een vijfde slaapkamer of hobbyruimte worden gerealiseerd. De Nefit Trendline combi-ketel (2018) is bij het eerste gedeelte van de zolder gesitueerd, evenals de witgoedaansluitingen.
Buitenruimte
De achtertuin is bereikbaar via de schuifpui in de woonkamer en tuindeur in de keuken. Deze biedt volop mogelijkheden om te genieten van het buitenleven. Aan de zijkant van de woning bevindt zich een garage met carport met elektrische kantelpoort en aansluitende een ruime garage. Deze is praktisch ingericht en biedt ruimte voor opslag of hobby.
Bijzonderheden van deze woning:
- Degelijke woning met veel ruimte
- Vier slaapkamers en mogelijkheid tot vijfde slaapkamer op zolder
- Woonkamer met schuifpui naar de tuin
- Praktische trapkast als provisieruimte
- Elektrische rolluiken op begane grond
- Rolluiken begane grond achterzijde en eerste verdieping voorzijde woning
- Nieuwe HR++ beglazing op eerste verdieping
- Dakramen met vernieuwd isolatieglas op zolder
- Garage met carport, inclusief elektrische kantelpoort
- Nefit Trendline combi-ketel (2018)
- Mechanische afzuiging op badkamer
Begane grond
In de hal vind je het toilet, de meterkast en de trap naar de eerste verdieping. De woonkamer is ruim opgezet en voorzien van een schuifpui naar de achtertuin, waardoor er veel lichtinval is en een directe verbinding met buiten ontstaat. Op de begane grond zijn elektrische rolluiken geplaatst voor extra comfort. De keuken sluit aan op de woonkamer en biedt volop mogelijkheden voor een moderne inrichting. Ook is hier een praktische trapkast aanwezig die ideaal dienstdoet als provisieruimte. Via een tuindeur heb je toegang tot de achtertuin.
Eerste verdieping
Op de eerste verdieping bevinden zich vier slaapkamers, allen voorzien van nieuwe HR++ beglazing. Aan de voorzijde van de woning zijn de ramen uitgerust met rolluiken. De kamers zijn netjes onderhouden en bieden voldoende ruimte voor diverse indelingen.
De badkamer is praktisch ingericht en voorzien van mechanische afzuiging, een ligbad met douche, wastafel met meubel en toilet.
Zolder
Via een vaste trap is de zolder bereikbaar. De dakramen hier zijn in 2020 vernieuwd met isolatieglas. Hier kan eenvoudig een vijfde slaapkamer of hobbyruimte worden gerealiseerd. De Nefit Trendline combi-ketel (2018) is bij het eerste gedeelte van de zolder gesitueerd, evenals de witgoedaansluitingen.
Buitenruimte
De achtertuin is bereikbaar via de schuifpui in de woonkamer en tuindeur in de keuken. Deze biedt volop mogelijkheden om te genieten van het buitenleven. Aan de zijkant van de woning bevindt zich een garage met carport met elektrische kantelpoort en aansluitende een ruime garage. Deze is praktisch ingericht en biedt ruimte voor opslag of hobby.
Bijzonderheden van deze woning:
- Degelijke woning met veel ruimte
- Vier slaapkamers en mogelijkheid tot vijfde slaapkamer op zolder
- Woonkamer met schuifpui naar de tuin
- Praktische trapkast als provisieruimte
- Elektrische rolluiken op begane grond
- Rolluiken begane grond achterzijde en eerste verdieping voorzijde woning
- Nieuwe HR++ beglazing op eerste verdieping
- Dakramen met vernieuwd isolatieglas op zolder
- Garage met carport, inclusief elektrische kantelpoort
- Nefit Trendline combi-ketel (2018)
- Mechanische afzuiging op badkamer