Met een eigen account kun je panden volgen, opslaan als favoriet, je zoekprofiel opslaan en jouw eigen notities bij een huis maken.
Algemeen
Starters opgelet, wij bieden je aan deze zeer compleet uitgevoerde en modern afgewerkte geschakelde woning met garage gelegen aan de rand van kindvriendelijke woonwijk van Wijlre. Dit zeer keurig onderhouden woonhuis heeft een goed bemeten woonoppervlak van 122 m2, met onder meer ruime woonkamer, strakke keuken, vier slaapkamers en moderne badkamer. Maar ook een onderhoudsvrije voortuin met par... Meer informatie
-
Kenmerken
Alle kenmerken Type object Eengezinswoning, woonhuis, geschakelde woning Bouwjaar 1981 Status Verkocht Aangeboden sinds Woensdag 7 januari 2026 -
Locatie
Kenmerken
| Overdracht | |
|---|---|
| Vraagprijs | € 327.000,- k.k. |
| Status | Verkocht |
| Aanvaarding | In overleg |
| Aangeboden sinds | Woensdag 7 januari 2026 |
| Laatste wijziging | Maandag 9 februari 2026 |
| Bouw | |
|---|---|
| Type object | Eengezinswoning, woonhuis, geschakelde woning |
| Soort bouw | Bestaande bouw |
| Bouwjaar | 1981 |
| Dakbedekking | Dakpannen |
| Type dak | Zadeldak |
| Isolatievormen | Dakisolatie, Dubbel glas, Muurisolatie |
| Oppervlaktes en inhoud | |
|---|---|
| Perceeloppervlakte | 164 m² |
| Woonoppervlakte | 122 m² |
| Woonkameroppervlakte | 33 m² |
| Inhoud | 405 m³ |
| Oppervlakte externe bergruimte | 21 m² |
| Oppervlakte gebouwgebonden buitenruimte | 14 m² |
| Indeling | |
|---|---|
| Aantal bouwlagen | 3 |
| Aantal kamers | 7 (waarvan 4 slaapkamers) |
| Locatie | |
|---|---|
| Ligging | In woonwijk |
| Tuin | |
|---|---|
| Type | Achtertuin |
| Hoofdtuin | Ja |
| Oriëntering | Zuidoost |
| Heeft een achterom | Ja |
| Staat | Goed onderhouden |
| Tuin 2 - Type | Achtertuin |
| Tuin 2 - Staat | Goed onderhouden |
| Tuin 3 - Type | Voortuin |
| Tuin 3 - Staat | Goed onderhouden |
| Energieverbruik | |
|---|---|
| Energielabel | B |
| CV ketel | |
|---|---|
| CV ketel | Bosch |
| Warmtebron | Gas |
| Bouwjaar | 2005 |
| Combiketel | Ja |
| Eigendom | Eigendom |
| Uitrusting | |
|---|---|
| Aantal parkeerplaatsen | 1 |
| Warm water | CV-ketel |
| Verwarmingssysteem | Centrale verwarming |
| Badkamervoorzieningen | Douche, Dubbele wastafel, Ligbad, Toilet |
| Heeft airco | Ja |
| Heeft kabel-tv | Ja |
| Tuin aanwezig | Ja |
| Heeft een dakraam | Ja |
| Heeft zonnecollectoren | Ja |
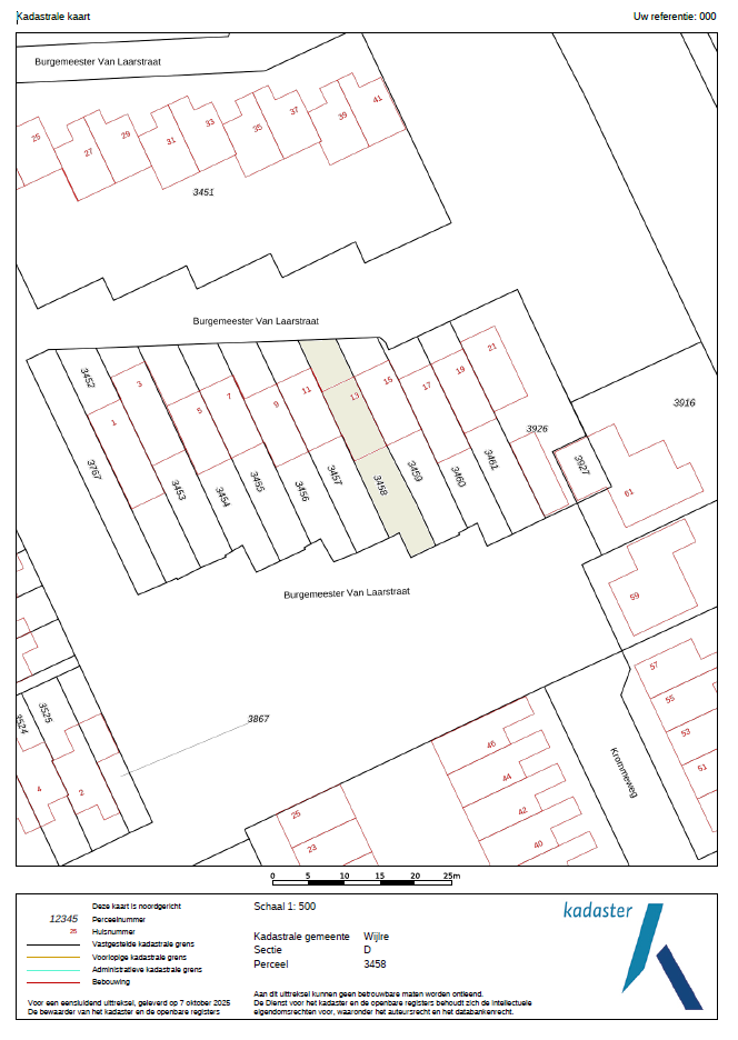
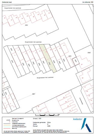
| Kadastrale gegevens | |
|---|---|
| Kadastrale aanduiding | Wijlre D 3458 |
| Perceeloppervlakte | 164 m² |
| Omvang | Geheel perceel |
| Eigendomsituatie | Eigen grond |
Beschrijving
Starters opgelet, wij bieden je aan deze zeer compleet uitgevoerde en modern afgewerkte geschakelde woning met garage gelegen aan de rand van kindvriendelijke woonwijk van Wijlre. Dit zeer keurig onderhouden woonhuis heeft een goed bemeten woonoppervlak van 122 m2, met onder meer ruime woonkamer, strakke keuken, vier slaapkamers en moderne badkamer. Maar ook een onderhoudsvrije voortuin met parkeergelegenheid, een zonnige achtertuin met brede overkapping en een ruime garage. Sinds 2007 is er doorlopend onderhoud gepleegd en zijn er verbeteringen aan het pand aangebracht, daardoor mag dit huis dan ook zeker instapklaar genoemd worden. Als je dit huis binnenstapt, ervaar je direct de sfeer van een moderne en lichte woning. De tijdloze laminaatvloer, de grote schuifpui en het ruime formaat van de woonkamer maken het tot een ideale leefruimte. Vervolgens heeft de open keuken een strakke moderne aanbouwinstallatie waar je uitgebreid kunt koken en tegelijkertijd ook leuk uitkijkt op het woonerf aan de voorzijde. De eerste verdieping heeft drie prima formaten slaapkamers en een badkamer met alle comfort. Er is een vaste trap naar de zolder gerealiseerd, daar vinden we de vierde slaapkamer én een praktische kamer. Direct aansluitend aan de woonkamer is een flinke overkapping geplaatst, dit terras leent zich uitstekend om een grote tuintafel neer te zetten. Verder is er dan ook nog ruimte genoeg in de onderhoudsvriendelijke tuin voor je loungeset of het speelgoed van de kinderen. Prettige bijkomstigheid van de ligging aan de rand van de woonwijk is dat je uitkijkt op de groene bomen aan de achterzijde en daardoor ook meer privacy hebt. Tot slot ligt er een praktische garage met sectionale poort en vliering aan de achterzijde van het perceel.
Het is goed wonen in Wijlre, daar zijn genoeg redenen voor te benoemen. Zo beschikt de woonplaats over een aantrekkelijke kern met goede basisvoorzieningen zoals een supermarkt, bakkerij en groentewinkel. Het is na Gulpen de grootste kern van gemeente Gulpen-Wittem met circa 2700 inwoners en er is uiteraard ook een basisschool. Het dorp kent een actief verenigingsleven met onder meer harmonie, schutterij, carnavalsvereniging en sportverenigingen waar iedereen welkom is. Bij Wijlre horen de buurtschappen Etenaken, Cartils, Kapolder, Elkenrade, Stokhem en Beertsenhoven. Het riviertje de Geul stroomt door het dorpje en er is een overvloed aan natuurschoon. In de directe nabijheid vinden we centrumkernen Gulpen, Valkenburg en Simpelveld, uitvalswegen zijn ook snel bereikt. Binnen een straal van 20 kilometer liggen de steden Maastricht, Aken en Heerlen om een dagje te winkelen of cultuur te snuiven.
Bijzonderheden
- Bouwjaar 1981
- De voorzijde van de woning is voorzien van hardhouten kozijnen met dubbele beglazing, de achterzijde heeft kunststoffen kozijnen met HR++ beglazing
- Verwarming en warmwatervoorziening middels HR combi CV installatie (Bosch, bouwjaar 2005, eigendom). De begane grond is voorzien van vloerverwarming, de verdiepingen hebben radiatoren, de badkamer heeft elektrische vloerverwarming en een designradiator (deze is niet elektrisch)
- Een slaapkamer op de eerste verdieping en de slaapkamer op de tweede verdieping hebben een airconditioning
- Acht zonnepanelen, installatiejaar 2023, eigendom
- De meterkast is vernieuwd in 2012
- De keuken is vernieuwd in 2012
- Energielabel B
- Aanvaarding in overleg
Globale indeling
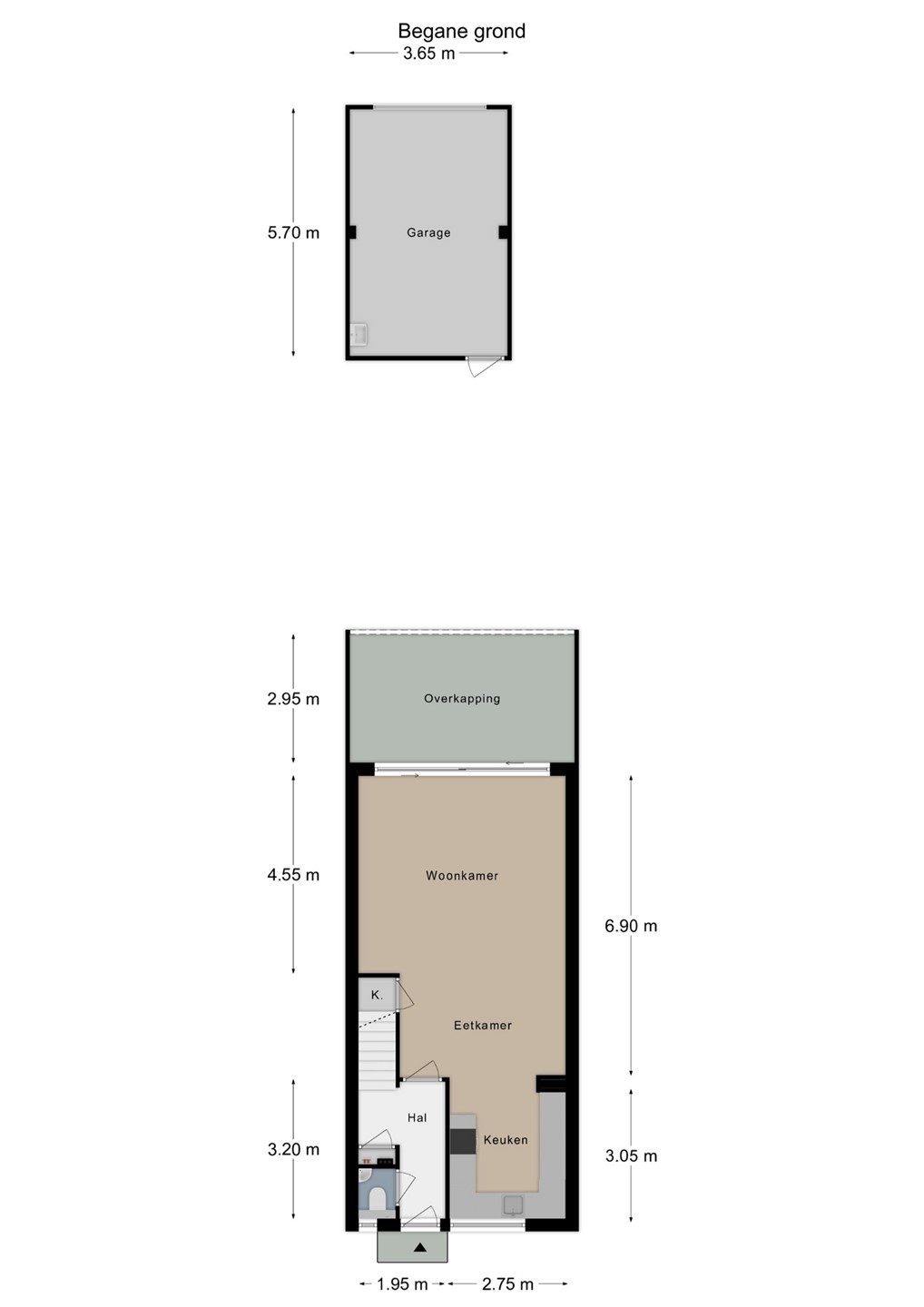
Begane grond
Entree, hal met meterkast, trapopgang
Toilet voorzien van hangend closet en fontein
Woonkamer voorzien van schuifpui en trapberging
Open keuken voorzien van aanbouwinstallatie met de volgende apparatuur: inductiekookplaat, afzuigkap, combi oven, koffieapparaat (defect), vaatwasser en koelkast
De begane grond is voorzien van een laminaatvloer
Eerste verdieping
Overloop met muurkast
Slaapkamer I met kastenwand
Badkamer voorzien van inloopdouche, ligbad met whirlpool, dubbel wastafelmeubel en hangend closet, elektrische vloerwarming en een designradiator (deze is niet elektrisch)
Slaapkamer II
Slaapkamer III met airconditioning
De overloop en slaapkamers zijn voorzien van een laminaatvloer
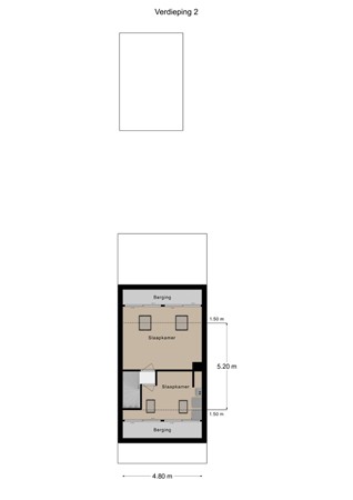
Tweede verdieping
Via vaste trap bereikbare zolderverdieping
Slaapkamer IV met twee dakramen, airconditioning en laminaatvloer
Praktische kamer met witgoedaansluiting, CV installatie en twee dakramen
Het is goed wonen in Wijlre, daar zijn genoeg redenen voor te benoemen. Zo beschikt de woonplaats over een aantrekkelijke kern met goede basisvoorzieningen zoals een supermarkt, bakkerij en groentewinkel. Het is na Gulpen de grootste kern van gemeente Gulpen-Wittem met circa 2700 inwoners en er is uiteraard ook een basisschool. Het dorp kent een actief verenigingsleven met onder meer harmonie, schutterij, carnavalsvereniging en sportverenigingen waar iedereen welkom is. Bij Wijlre horen de buurtschappen Etenaken, Cartils, Kapolder, Elkenrade, Stokhem en Beertsenhoven. Het riviertje de Geul stroomt door het dorpje en er is een overvloed aan natuurschoon. In de directe nabijheid vinden we centrumkernen Gulpen, Valkenburg en Simpelveld, uitvalswegen zijn ook snel bereikt. Binnen een straal van 20 kilometer liggen de steden Maastricht, Aken en Heerlen om een dagje te winkelen of cultuur te snuiven.
Bijzonderheden
- Bouwjaar 1981
- De voorzijde van de woning is voorzien van hardhouten kozijnen met dubbele beglazing, de achterzijde heeft kunststoffen kozijnen met HR++ beglazing
- Verwarming en warmwatervoorziening middels HR combi CV installatie (Bosch, bouwjaar 2005, eigendom). De begane grond is voorzien van vloerverwarming, de verdiepingen hebben radiatoren, de badkamer heeft elektrische vloerverwarming en een designradiator (deze is niet elektrisch)
- Een slaapkamer op de eerste verdieping en de slaapkamer op de tweede verdieping hebben een airconditioning
- Acht zonnepanelen, installatiejaar 2023, eigendom
- De meterkast is vernieuwd in 2012
- De keuken is vernieuwd in 2012
- Energielabel B
- Aanvaarding in overleg
Globale indeling
Begane grond
Entree, hal met meterkast, trapopgang
Toilet voorzien van hangend closet en fontein
Woonkamer voorzien van schuifpui en trapberging
Open keuken voorzien van aanbouwinstallatie met de volgende apparatuur: inductiekookplaat, afzuigkap, combi oven, koffieapparaat (defect), vaatwasser en koelkast
De begane grond is voorzien van een laminaatvloer
Eerste verdieping
Overloop met muurkast
Slaapkamer I met kastenwand
Badkamer voorzien van inloopdouche, ligbad met whirlpool, dubbel wastafelmeubel en hangend closet, elektrische vloerwarming en een designradiator (deze is niet elektrisch)
Slaapkamer II
Slaapkamer III met airconditioning
De overloop en slaapkamers zijn voorzien van een laminaatvloer
Tweede verdieping
Via vaste trap bereikbare zolderverdieping
Slaapkamer IV met twee dakramen, airconditioning en laminaatvloer
Praktische kamer met witgoedaansluiting, CV installatie en twee dakramen