Met een eigen account kun je panden volgen, opslaan als favoriet, je zoekprofiel opslaan en jouw eigen notities bij een huis maken.
Algemeen
Gesitueerd op de hoek van de Heerstraat en de Pastoor Oberieweg bieden wij aan deze solide gebouwde vrijstaande woning met garage en brede tuin met terras dat een mooie doorkijk richting het Heuvelland geeft. Welkom in Pastoor Oberieweg 22, een familiehuis gebouwd in 1964 door de huidige eigenaar en sindsdien steeds tot in de puntjes verzorgd. Nu is het tijd om het stokje door te geven aan een... Meer informatie
-
Kenmerken
Alle kenmerken Type object Eengezinswoning, woonhuis, vrijstaande woning Bouwjaar 1964 Status Verkocht onder voorbehoud Aangeboden sinds Vrijdag 27 maart 2026 -
Locatie
Kenmerken
| Overdracht | |
|---|---|
| Vraagprijs | € 390.000,- k.k. |
| Status | Verkocht onder voorbehoud |
| Aanvaarding | In overleg |
| Aangeboden sinds | Vrijdag 27 maart 2026 |
| Bouw | |
|---|---|
| Type object | Eengezinswoning, woonhuis, vrijstaande woning |
| Soort bouw | Bestaande bouw |
| Bouwjaar | 1964 |
| Dakbedekking | Dakpannen |
| Type dak | Zadeldak |
| Isolatievormen | Dakisolatie, Muurisolatie |
| Oppervlaktes en inhoud | |
|---|---|
| Perceeloppervlakte | 526 m² |
| Woonoppervlakte | 99 m² |
| Woonkameroppervlakte | 24 m² |
| Inhoud | 421 m³ |
| Oppervlakte overige inpandige ruimten | 15 m² |
| Oppervlakte externe bergruimte | 34 m² |
| Oppervlakte gebouwgebonden buitenruimte | 14 m² |
| Tuinoppervlakte | 400 m² |
| Indeling | |
|---|---|
| Aantal bouwlagen | 3 (en 1 kelder) |
| Aantal kamers | 7 (waarvan 3 slaapkamers) |
| Locatie | |
|---|---|
| Ligging | In woonwijk, Platteland |
| Tuin | |
|---|---|
| Type | Tuin rondom |
| Hoofdtuin | Ja |
| Heeft een achterom | Ja |
| Staat | Goed onderhouden |
| Tuin 2 - Type | Tuin rondom |
| Tuin 2 - Staat | Goed onderhouden |
| Energieverbruik | |
|---|---|
| Energielabel | D |
| CV ketel | |
|---|---|
| CV ketel | Nefit Proline |
| Warmtebron | Gas |
| Bouwjaar | 2022 |
| Combiketel | Ja |
| Eigendom | Eigendom |
| Uitrusting | |
|---|---|
| Aantal parkeerplaatsen | 2 |
| Warm water | CV-ketel |
| Verwarmingssysteem | Centrale verwarming |
| Badkamervoorzieningen | Douche, Toilet, Wastafelmeubel |
| Heeft kabel-tv | Ja |
| Heeft een rookkanaal | Ja |
| Tuin aanwezig | Ja |
| Heeft rolluiken | Ja |
| Heeft schuur/berging | Ja |
| Kadastrale gegevens | |
|---|---|
| Kadastrale aanduiding | Wittem D 4216 |
| Perceeloppervlakte | 526 m² |
| Omvang | Geheel perceel |
| Eigendomsituatie | Eigen grond |
Beschrijving
Gesitueerd op de hoek van de Heerstraat en de Pastoor Oberieweg bieden wij aan deze solide gebouwde vrijstaande woning met garage en brede tuin met terras dat een mooie doorkijk richting het Heuvelland geeft. Welkom in Pastoor Oberieweg 22, een familiehuis gebouwd in 1964 door de huidige eigenaar en sindsdien steeds tot in de puntjes verzorgd. Nu is het tijd om het stokje door te geven aan een jongere generatie die er weer een nieuwe toekomst aan geeft. Een modernisering zal wenselijk zijn, maar dit kan ook prima in fases worden uitgevoerd doordat het zo keurig onderhouden is. De woning biedt op de begane grond een doorzon woonkamer met dubbele tuindeuren, eetkamer en aangebouwde keuken. De verdieping telt drie goede formaten slaapkamers en een nette badkamer. De zolder, kelder, garage en buitenberging geven meer dan genoeg bergruimte. Je loopt vanuit de keuken maar ook vanuit de woonkamer direct het privacyvolle terras en de aansluitende brede tuin met het tweede terras in. Zowel in huis als in de tuin heb je op diverse plekken mooi uitzicht richting Camerig, het Vijlenerbos en het verdere landschap rondom Epen. Doordat de woning hoger dan straat is gesitueerd, geniet je van een prima privacy. Vanuit huis loop je direct naar een knooppunt van wandelwegen en start je wandel of fietstocht. Je woont in een fijne woonwijk met veel jonge gezinnen en op loopafstand van de dorpse voorzieningen. Ben jij die nieuwe generatie die in dit huis mooie herinneringen gaat maken? Kom binnenkort een kijkje nemen om de mogelijkheden van dit huis met eigen ogen te zien.
Epen is een geliefde woonplaats in het Heuvelland, en wij snappen heel goed waarom dat zo is. Het dorp heeft natuurlijk een prachtige ligging in het vijfsterrenlandschap en wordt omringd door vakwerkhuizen, oude boerderijen en een overvloed aan natuurschoon. Wandelaars en fietsers kunnen er hun hart ophalen. Ook kent het dorp een rijke traditie en een actief verenigingsleven waar iedereen van harte welkom is. Doordat Epenaren al meer dan honderd jaar gasten verwelkomen, hebben ze een open houding naar nieuwe dorpsbewoners. Ook beschikt Epen over een behoorlijk aantal voorzieningen zoals een bakker, buurtsuper, basisschool met BSO en peuteropvang en busverbinding. Daarnaast zijn er diverse restaurants, terrassen en eetgelegenheden waar het goed vertoeven is. Uitvalswegen zijn in een klein kwartier te bereiken, steden als Maastricht, Heerlen en Aken bevinden zich op een half uurtje rijden. Kortom, een aantrekkelijk dorp voor bewoners van jong tot oud die houden van het Limburgse leven.
Bijzonderheden
- Houten kozijnen grotendeels voorzien van dubbele beglazing
- Het pand is deels voorzien van rolluiken
- De woning is vanuit de bouw voorzien van spouwmuurisolatie, met uitzondering van de aanbouw van de keuken
- Het hoofddak is voorzien van een houten dakbeschot en na geïsoleerd met glaswol
- HR combi CV installatie, Nefit Proline, installatiejaar 2022, eigendom
- Aanvaarding in overleg, op korte termijn mogelijk
Globale indeling
Souterrain
Provisiekelder met tegelvloer
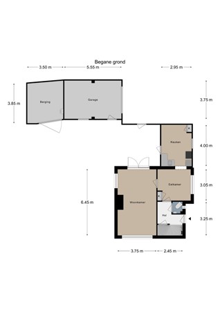
Begane grond
Entree, hal met plavuizenvloer, meterkast en trapopgang
Toilet voorzien van staand closet en fontein
Woonkamer voorzien van schouw met open haard, dubbele tuindeuren en parketvloer
Eetkamer met muurkast, parketvloer
Keuken voorzien van aanrechtblok, muurkast, enkele deur naar de tuin, plavuizenvloer
Eerste verdieping
Overloop met parketvloer
Slaapkamer I met vloerbedekking en wastafel
Slaapkamer II met vloerbedekking
Slaapkamer III met vloerbedekking en toegang tot het dakterras
Badkamer voorzien van douche, wastafelmeubel en staand closet
Tweede verdieping
Via vlizotrap bereikbare bergzolder, CV installatie
Extern
Garage voorzien van automatische sectionaalpoort
Overdekte tuinberging
Epen is een geliefde woonplaats in het Heuvelland, en wij snappen heel goed waarom dat zo is. Het dorp heeft natuurlijk een prachtige ligging in het vijfsterrenlandschap en wordt omringd door vakwerkhuizen, oude boerderijen en een overvloed aan natuurschoon. Wandelaars en fietsers kunnen er hun hart ophalen. Ook kent het dorp een rijke traditie en een actief verenigingsleven waar iedereen van harte welkom is. Doordat Epenaren al meer dan honderd jaar gasten verwelkomen, hebben ze een open houding naar nieuwe dorpsbewoners. Ook beschikt Epen over een behoorlijk aantal voorzieningen zoals een bakker, buurtsuper, basisschool met BSO en peuteropvang en busverbinding. Daarnaast zijn er diverse restaurants, terrassen en eetgelegenheden waar het goed vertoeven is. Uitvalswegen zijn in een klein kwartier te bereiken, steden als Maastricht, Heerlen en Aken bevinden zich op een half uurtje rijden. Kortom, een aantrekkelijk dorp voor bewoners van jong tot oud die houden van het Limburgse leven.
Bijzonderheden
- Houten kozijnen grotendeels voorzien van dubbele beglazing
- Het pand is deels voorzien van rolluiken
- De woning is vanuit de bouw voorzien van spouwmuurisolatie, met uitzondering van de aanbouw van de keuken
- Het hoofddak is voorzien van een houten dakbeschot en na geïsoleerd met glaswol
- HR combi CV installatie, Nefit Proline, installatiejaar 2022, eigendom
- Aanvaarding in overleg, op korte termijn mogelijk
Globale indeling
Souterrain
Provisiekelder met tegelvloer
Begane grond
Entree, hal met plavuizenvloer, meterkast en trapopgang
Toilet voorzien van staand closet en fontein
Woonkamer voorzien van schouw met open haard, dubbele tuindeuren en parketvloer
Eetkamer met muurkast, parketvloer
Keuken voorzien van aanrechtblok, muurkast, enkele deur naar de tuin, plavuizenvloer
Eerste verdieping
Overloop met parketvloer
Slaapkamer I met vloerbedekking en wastafel
Slaapkamer II met vloerbedekking
Slaapkamer III met vloerbedekking en toegang tot het dakterras
Badkamer voorzien van douche, wastafelmeubel en staand closet
Tweede verdieping
Via vlizotrap bereikbare bergzolder, CV installatie
Extern
Garage voorzien van automatische sectionaalpoort
Overdekte tuinberging