Met een eigen account kun je panden volgen, opslaan als favoriet, je zoekprofiel opslaan en jouw eigen notities bij een huis maken.
Algemeen
Welkom bij deze unieke vakwerkboerderij met tuin, erf en huisweide waar authenticiteit met een hoofdletter wordt geschreven. Daar waar Limburg op zijn mooist is, in het buurtschap Terziet, ligt dit schoolvoorbeeld van een vakwerkhuis met rondom gelegen tuin en idyllisch uitzicht over het fraaie landschap van Epen en omgeving. En zeggen we Terziet, dan komen de meest mooie ingrediënten voor een... Meer informatie
-
Kenmerken
Alle kenmerken Type object Woonboerderij, woonhuis, vrijstaande woning Bouwjaar 1750 Status Verkocht onder voorbehoud Aangeboden sinds Donderdag 8 januari 2026 -
Locatie
Kenmerken
| Overdracht | |
|---|---|
| Vraagprijs | € 1.050.000,- k.k. |
| Status | Verkocht onder voorbehoud |
| Aanvaarding | In overleg |
| Aangeboden sinds | Donderdag 8 januari 2026 |
| Bouw | |
|---|---|
| Type object | Woonboerderij, woonhuis, vrijstaande woning |
| Soort bouw | Bestaande bouw |
| Bouwjaar | 1750 |
| Dakbedekking | Dakpannen |
| Type dak | Zadeldak |
| Isolatievormen | Dakisolatie |
| Oppervlaktes en inhoud | |
|---|---|
| Perceeloppervlakte | 7.500 m² |
| Woonoppervlakte | 182 m² |
| Woonkameroppervlakte | 34 m² |
| Inhoud | 829 m³ |
| Oppervlakte overige inpandige ruimten | 92 m² |
| Oppervlakte externe bergruimte | 28 m² |
| Tuinoppervlakte | 7.300 m² |
| Indeling | |
|---|---|
| Aantal bouwlagen | 3 (en 1 kelder) |
| Aantal kamers | 10 (waarvan 4 slaapkamers) |
| Locatie | |
|---|---|
| Ligging | Aan rustige weg, Buiten bebouwde kom, In bosrijke omgeving, Platteland, Vrij uitzicht |
| Tuin | |
|---|---|
| Type | Tuin rondom |
| Hoofdtuin | Ja |
| Heeft een achterom | Ja |
| Staat | Goed onderhouden |
| Tuin 2 - Type | Tuin rondom |
| Tuin 2 - Staat | Goed onderhouden |
| CV ketel | |
|---|---|
| CV ketel | Nefit |
| Warmtebron | Gas |
| Bouwjaar | 2000 |
| Eigendom | Eigendom |
| Uitrusting | |
|---|---|
| Aantal parkeerplaatsen | 6 |
| Warm water | CV-ketel, Elektrische boiler |
| Verwarmingssysteem | Centrale verwarming |
| Badkamervoorzieningen | Douche, Ligbad, Toilet, Wastafel |
| Heeft een rookkanaal | Ja |
| Tuin aanwezig | Ja |
| Heeft een satellietschotel | Ja |
| Heeft schuur/berging | Ja |
| Kadastrale gegevens | |
|---|---|
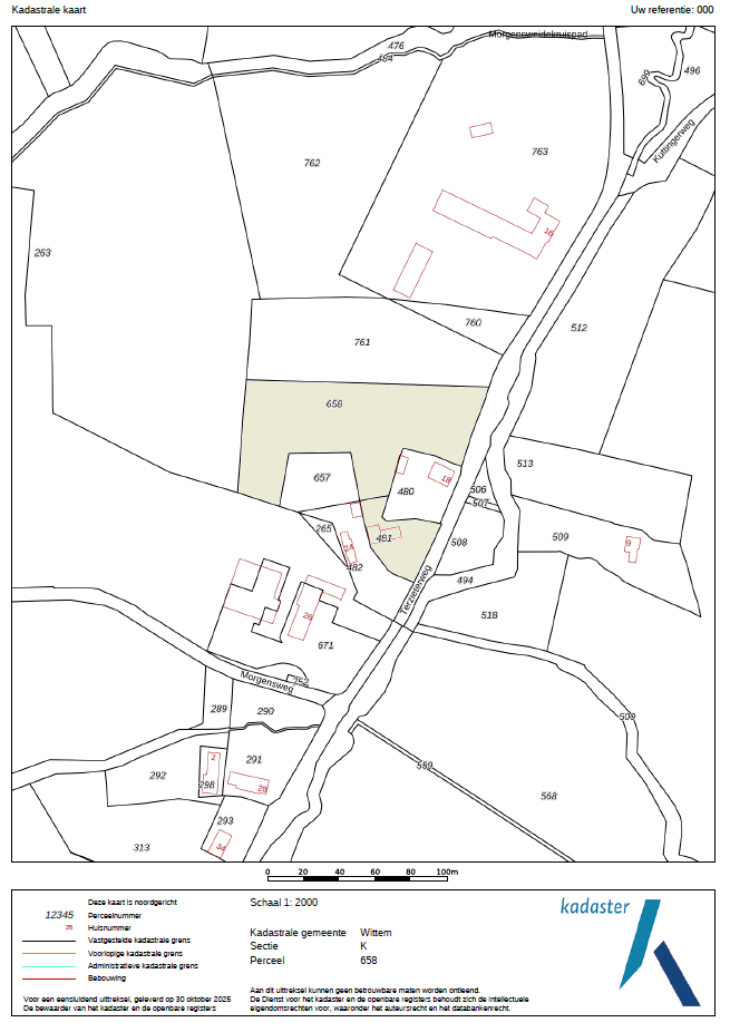
| Kadastrale aanduiding | Wittem K 481 |
| Perceeloppervlakte | 1.135 m² |
| Omvang | Geheel perceel |
| Eigendomsituatie | Eigen grond |
| Kadastrale aanduiding | Wittem K 658 |
| Perceeloppervlakte | 6.365 m² |
| Omvang | Geheel perceel |
| Eigendomsituatie | Eigen grond |
Beschrijving
Welkom bij deze unieke vakwerkboerderij met tuin, erf en huisweide waar authenticiteit met een hoofdletter wordt geschreven. Daar waar Limburg op zijn mooist is, in het buurtschap Terziet, ligt dit schoolvoorbeeld van een vakwerkhuis met rondom gelegen tuin en idyllisch uitzicht over het fraaie landschap van Epen en omgeving. En zeggen we Terziet, dan komen de meest mooie ingrediënten voor een unieke leefomgeving naar boven, de kabbelende Terzieterbeek, glooiende weilanden, holle weggetjes, authentieke vakwerkboerderijtjes en panoramische vergezichten. De liefhebber van landelijk wonen voelt zich hier als een vis in het water en rustig wonen is er een zekerheid. Medio jaren tachtig werd een allesomvattende restauratie van dit object uitgevoerd, het werd een metamorfose van lelijk eendje naar een prachtige zwaan. De eigenaar koesterde de authentieke elementen van het vakwerkpand en liet dit tot in detail restaureren. Het resultaat is een Monumentaal vakwerkhuis waar charme en sfeer de boventoon voeren. De originele vakwerkconstructie werd in ere hersteld, planken vloeren, schouwen met houtkachels en getrogde plafonds zijn enkele voorbeelden die het karakter van dit pand bepalen. Het woonhuis heeft een woonoppervlak van maar liefst 182 m2, je kunt er dan ook heerlijk royaal wonen. Zo heeft de begane grond een gezellige woonkeuken en ruim bemeten woonkamer te bieden waar je uren doorbrengt met je familie of een goed glas wijn bij de houtkachel drinkt. Maar ook vinden we op de begane grond nog een extra hobbykamer met eigen bovenverdieping, een multifunctionele ruimte geschikt voor diverse invullingen. Denk bijvoorbeeld aan een extra slaapkamer op de begane grond, thuiswerkkantoor of misschien wel een kleine B&B. De eerste verdieping heeft drie slaapkamers te bieden, waarvan één hele grote slaapkamer die eventueel te splitsen is in twee. Ook is er een functionele badkamer van goed formaat. De per vaste trap bereikbare zolder heeft dan nog de vierde slaapkamer, overloopruimte en ruime bergzolder te bieden. In dit huis heb je alle plek om heerlijk ruim te leven, familie en vrienden te ontvangen en al je hobby's te ontplooien. Net zo belangrijk is de buitenzijde, want landelijk wonen betekent natuurlijk buiten leven. Direct aan de voorzijde ligt de prachtige tuin waar in de zomer weelderige planten groeien en je een mooi uitzicht hebt over Terziet, het is een fantastische plek om lekker buiten te luieren. Aan de achterzijde ligt het bijgebouw met overkapping, ook al heel authentiek in vakwerk opgebouwd, bijna te mooi om alleen maar te dienen als garage. Aan deze zijde gaat de achtertuin vloeiend over in je eigen huisweide met fruitboomgaard. Heb je altijd gedroomd van een paar schapen of een plek om je paard aan huis te houden? Hier kan het heel eenvoudig. De huisweide is ook bereikbaar vanaf de Terzieterweg, er staan vele fruitbomen in die een flinke oogst aan appels, peren en ander fruit zullen opleveren. Kortom, een authentiek vakwerkhuis en bijgebouw, een heerlijke tuin, huisweide en dat alles gelegen op een van de mooiste plekjes van Zuid-Limburg, een bezichtiging meer dan waard.
Epen is een geliefde woonplaats in het Heuvelland, gesitueerd in het hart van de regio daar waar de omgeving op zijn mooist is. Het dorp heeft natuurlijk een prachtige ligging in het vijfsterrenlandschap en wordt omringd door vakwerkhuizen, oude boerderijen en een overvloed aan natuurschoon. Wandelaars en fietsers kunnen er hun hart ophalen als ze een tocht maken over de ontelbare wandelpaden, holle weggetjes en steile klimmen, de meanderende Geul is een markant onderdeel van het landschap. Ook kent het dorp een rijke traditie en een actief verenigingsleven waar iedereen van harte welkom is. Doordat Epenaren al meer dan honderd jaar gasten verwelkomen, hebben ze een open houding naar nieuwe dorpsbewoners. Epen beschikt over een behoorlijk aantal voorzieningen zoals een bakker, buurtsuper, basisschool (met BSO en peuteropvang) en busverbinding naar Maastricht en Gulpen. Daarnaast zijn er diverse restaurants, terrassen en eetgelegenheden waar het goed vertoeven is. Vanuit Epen ben je in 10 autominuten in centrumkernen zoals Gulpen en Vaals voor een uitgebreider voorzieningenaanbod. Maar ook steden als Maastricht, Aken en Heerlen met onder meer universiteiten, hogescholen, (academisch) ziekenhuizen, bedrijvigheid en aantrekkelijke stadscentra vol winkels en cultuur zijn binnen een half uurtje te bereiken. Epen Bronnenland, een charmant dorp voor bewoners van jong tot oud die houden van het Limburgse leven.
Bijzonderheden
- Bouwjaar omstreeks 1750
- Rijksmonument ingeschreven in het register onder Monumentnummer 39276
- Bestemming: Wonen-Cultuur en ontspanning, bredere bestemmingsmogelijkheden (ondergeschikt aan de woonfunctie). De huisweide heeft bestemming Agrarisch met Waarden-Natuur en landschapswaarden
- De locatie Terziet is aangewezen tot beschermd dorpsgezicht
- Het totale object is in 1986 tot op het casco gerestaureerd
- Houten kozijnen voorzien van enkel glas
- Verwarming geschiedt middels een Nefit Ecomline C.V.- ketel en warm water door middel van een boiler, installatiejaar circa 2005, eigendom
- Het dak is van steenwol isolatie voorzien
- Aangebouwde garageberging met vliering en vrijstaand vakwerk bijgebouw, nu in gebruik als garage met carport
- Aanvaarding in overleg, op korte termijn mogelijk
Globale indeling
Souterrain
Kelderruimte
Begane grond
Entree/hal, voorzien van authentieke plavuizen vloer en meterkast
Toilet voorzien van staand closet met fonteintje.
Bijkeuken, voorzien van plavuizen vloer en wasmachine aansluiting. Deze ruimte heeft de opstelplaats voor C.V.-
ketel en boiler.
Woonkeuken voorzien van aanbouwinstallatie met keramische kookplaat en afzuigkap, planken vloer, houtkachel en schouw. Toegang naar de kelder en trap naar de 1e verdieping
Woonkamer, voorzien van planken vloer, schouw met houtkachel
Werk/hobbykamer, voorzien van plavuizen vloer, met vaste trap naar bovengelegen hobbyruimte.
Houten aangebouwde berging, voorzien van bergvliering, toegang tot oprit door middel van dubbele deuren en toegang tot tuin door middel van enkele deur.
Eerste Verdieping:
Overloop met vide
Slaapkamer 1
Overloopruimte met trap naar zolderverdieping
Slaapkamer 2
Slaapkamer 3
De slaapkamers en overlopen zijn voorzien van planken vloeren
Badkamer voorzien van douche, ligbad, staand toilet en wastafel.
Hobbyruimte (bereikbaar vanuit de werk/hobbykamer op de begane grond)
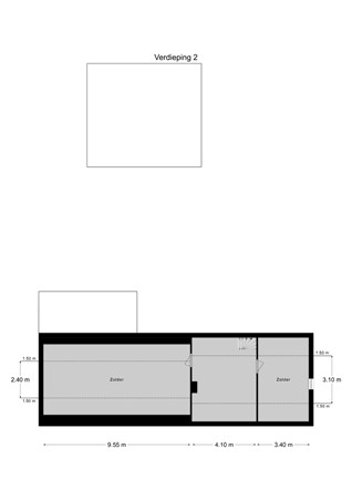
Tweede Verdieping:
Bergzolder, voorzien van planken vloer en dakraam
Overloopruimte, voorzien van planken vloer en dakraam
Zolderruimte, voorzien van planken vloer
Epen is een geliefde woonplaats in het Heuvelland, gesitueerd in het hart van de regio daar waar de omgeving op zijn mooist is. Het dorp heeft natuurlijk een prachtige ligging in het vijfsterrenlandschap en wordt omringd door vakwerkhuizen, oude boerderijen en een overvloed aan natuurschoon. Wandelaars en fietsers kunnen er hun hart ophalen als ze een tocht maken over de ontelbare wandelpaden, holle weggetjes en steile klimmen, de meanderende Geul is een markant onderdeel van het landschap. Ook kent het dorp een rijke traditie en een actief verenigingsleven waar iedereen van harte welkom is. Doordat Epenaren al meer dan honderd jaar gasten verwelkomen, hebben ze een open houding naar nieuwe dorpsbewoners. Epen beschikt over een behoorlijk aantal voorzieningen zoals een bakker, buurtsuper, basisschool (met BSO en peuteropvang) en busverbinding naar Maastricht en Gulpen. Daarnaast zijn er diverse restaurants, terrassen en eetgelegenheden waar het goed vertoeven is. Vanuit Epen ben je in 10 autominuten in centrumkernen zoals Gulpen en Vaals voor een uitgebreider voorzieningenaanbod. Maar ook steden als Maastricht, Aken en Heerlen met onder meer universiteiten, hogescholen, (academisch) ziekenhuizen, bedrijvigheid en aantrekkelijke stadscentra vol winkels en cultuur zijn binnen een half uurtje te bereiken. Epen Bronnenland, een charmant dorp voor bewoners van jong tot oud die houden van het Limburgse leven.
Bijzonderheden
- Bouwjaar omstreeks 1750
- Rijksmonument ingeschreven in het register onder Monumentnummer 39276
- Bestemming: Wonen-Cultuur en ontspanning, bredere bestemmingsmogelijkheden (ondergeschikt aan de woonfunctie). De huisweide heeft bestemming Agrarisch met Waarden-Natuur en landschapswaarden
- De locatie Terziet is aangewezen tot beschermd dorpsgezicht
- Het totale object is in 1986 tot op het casco gerestaureerd
- Houten kozijnen voorzien van enkel glas
- Verwarming geschiedt middels een Nefit Ecomline C.V.- ketel en warm water door middel van een boiler, installatiejaar circa 2005, eigendom
- Het dak is van steenwol isolatie voorzien
- Aangebouwde garageberging met vliering en vrijstaand vakwerk bijgebouw, nu in gebruik als garage met carport
- Aanvaarding in overleg, op korte termijn mogelijk
Globale indeling
Souterrain
Kelderruimte
Begane grond
Entree/hal, voorzien van authentieke plavuizen vloer en meterkast
Toilet voorzien van staand closet met fonteintje.
Bijkeuken, voorzien van plavuizen vloer en wasmachine aansluiting. Deze ruimte heeft de opstelplaats voor C.V.-
ketel en boiler.
Woonkeuken voorzien van aanbouwinstallatie met keramische kookplaat en afzuigkap, planken vloer, houtkachel en schouw. Toegang naar de kelder en trap naar de 1e verdieping
Woonkamer, voorzien van planken vloer, schouw met houtkachel
Werk/hobbykamer, voorzien van plavuizen vloer, met vaste trap naar bovengelegen hobbyruimte.
Houten aangebouwde berging, voorzien van bergvliering, toegang tot oprit door middel van dubbele deuren en toegang tot tuin door middel van enkele deur.
Eerste Verdieping:
Overloop met vide
Slaapkamer 1
Overloopruimte met trap naar zolderverdieping
Slaapkamer 2
Slaapkamer 3
De slaapkamers en overlopen zijn voorzien van planken vloeren
Badkamer voorzien van douche, ligbad, staand toilet en wastafel.
Hobbyruimte (bereikbaar vanuit de werk/hobbykamer op de begane grond)
Tweede Verdieping:
Bergzolder, voorzien van planken vloer en dakraam
Overloopruimte, voorzien van planken vloer en dakraam
Zolderruimte, voorzien van planken vloer