Met een eigen account kun je panden volgen, opslaan als favoriet, je zoekprofiel opslaan en jouw eigen notities bij een huis maken.
Algemeen
Welkom bij deze charmante vrijstaande woning met compleet gelijkvloers programma, gelegen op een rustige en geliefde locatie in Stramproy.
Deze woning biedt een unieke combinatie van karakter, ruimte en praktische indeling. Dankzij de grote raampartijen, de ruime keuken, de diepe oprit met carport en de royale garage is dit een ideale woning voor wie comfortabel en vrijstaand wil wonen. De... Meer informatie
Deze woning biedt een unieke combinatie van karakter, ruimte en praktische indeling. Dankzij de grote raampartijen, de ruime keuken, de diepe oprit met carport en de royale garage is dit een ideale woning voor wie comfortabel en vrijstaand wil wonen. De... Meer informatie
-
Kenmerken
Alle kenmerken Type object Woonhuis, bungalow, vrijstaande woning, semibungalow Bouwjaar 1962 Status Verkocht onder voorbehoud Aangeboden sinds Woensdag 14 januari 2026 -
Locatie
Kenmerken
| Overdracht | |
|---|---|
| Referentienummer | 62677/9846604 |
| Vraagprijs | € 379.000,- k.k. |
| Status | Verkocht onder voorbehoud |
| Aanvaarding | In overleg |
| Aangeboden sinds | Woensdag 14 januari 2026 |
| Laatste wijziging | Woensdag 11 maart 2026 |
| Bouw | |
|---|---|
| Type object | Woonhuis, bungalow, vrijstaande woning, semibungalow |
| Soort bouw | Bestaande bouw |
| Bouwjaar | 1962 |
| Type dak | Zadeldak |
| Isolatievormen | Dubbel glas |
| Oppervlaktes en inhoud | |
|---|---|
| Perceeloppervlakte | 430 m² |
| Woonoppervlakte | 124 m² |
| Inhoud | 536 m³ |
| Oppervlakte gebouwgebonden buitenruimte | 46 m² |
| Indeling | |
|---|---|
| Aantal bouwlagen | 2 |
| Aantal kamers | 5 (waarvan 4 slaapkamers) |
| Locatie | |
|---|---|
| Ligging | Aan rustige weg, In woonwijk |
| Tuin | |
|---|---|
| Type | Achtertuin |
| Hoofdtuin | Ja |
| Oriëntering | Noord west |
| Heeft een achterom | Ja |
| Staat | Normaal |
| Energieverbruik | |
|---|---|
| Energielabel | F |
| Uitrusting | |
|---|---|
| Warm water | CV-ketel |
| Badkamervoorzieningen | Douche, Wastafel |
| Parkeergelegenheid | Aangebouwde stenen garage |
| Heeft een rookkanaal | Ja |
| Tuin aanwezig | Ja |
| Heeft een garage | Ja |
| Heeft rolluiken | Ja |
Beschrijving
Welkom bij deze charmante vrijstaande woning met compleet gelijkvloers programma, gelegen op een rustige en geliefde locatie in Stramproy.
Deze woning biedt een unieke combinatie van karakter, ruimte en praktische indeling. Dankzij de grote raampartijen, de ruime keuken, de diepe oprit met carport en de royale garage is dit een ideale woning voor wie comfortabel en vrijstaand wil wonen. De knusse tuin met binnenplaats en vijver maakt het geheel compleet.
Indeling
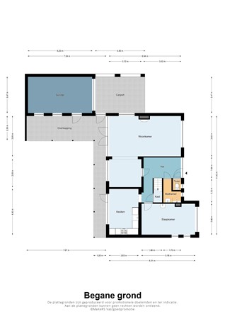
Begane grond
Bij binnenkomst in de woning kom je in de hal, waar je direct toegang hebt tot zowel het aparte toilet als de badkamer. De badkamer, die praktisch op de begane grond is gesitueerd, is voorzien van een inloopdouche en een wastafel met spiegel. Daarnaast tref je hier een handige trapkast aan.
De lichte woonkamer met houten vloer wordt gekenmerkt door de grote ramen en openslaande deuren naar de tuin, waardoor binnen en buiten mooi in elkaar overlopen. De authentieke houthaard met bijzondere schouw vormt het gezellige hart van de kamer. Dankzij de L-vormige indeling zijn de eet- en zithoek sfeervol van elkaar gescheiden.
Grenzend aan de woonkamer vind je de ruime hoekkeuken, die volop werk- en opbergruimte biedt. De keuken is uitgerust met een 4-pits gasfornuis, afzuigkap, oven en een losse koelkast. Via de tuindeur loop je direct de binnenplaats op. Ideaal om buiten te eten of in de ochtend van een kop koffie in de tuin te genieten.
Op de begane grond bevindt zich tevens een royale slaapkamer, voorzien van een praktische vaste kast en een eigen wastafel. Grotendeels zijn op deze woonlaag rolluiken aanwezig, vooral aan de voorzijde. Kortom, deze ruimtes zijn uitermate geschikt voor wie gelijkvloers wil slapen en baden.
Eerste verdieping
Op de eerste verdieping zijn drie slaapkamers aanwezig, waarvan een momenteel dienstdoet als werkkamer. Een van de slaapkamers beschikt over een dakkapel, wat extra licht en ruimte biedt. De derde kamer, met hoge nok, is te bereiken via enkele traptreden en doet dienst als extra (slaap)kamer. Voor deze doorgang is nog een extra bergruimte beschikbaar.
Buitenruimte
Vanaf de binnenplaats heb je toegang tot de royale garage, die is uitgerust met een elektrische roldeur, verwarming, elektra, water en veel opbergruimte. De diepe oprit met carport biedt volop parkeergelegenheid voor meerdere auto’s.
De tuin rondom het huis is knus en sfeervol ingericht. De binnenplaats vormt een beschutte plek om te relaxen, terwijl de vijver een speels accent geeft. Dankzij de privacy en het onderhoudsvriendelijke karakter van de tuin, kun je hier zorgeloos genieten. De ruime oprit en carport zorgen voor voldoende parkeergelegenheid op eigen terrein en via een poortje is de achterom eenvoudig bereikbaar.
Bijzonderheden van deze woning
- Vrijstaande woning met geschakelde garage
- Slaapkamer en badkamer op begane grond
- Woonkamer met veel lichtinval door grote raampartijen
- Ruime keuken met hoekopstelling en tuindeur
- Ruime garage met elektrische rolpoort en carport
- Diepe oprit met plaats voor meerdere auto’s
- Vaste trap naar zolder met hoge nok; ideaal voor extra (slaap)kamer
- Woonkamer met openslaande deuren naar de tuin
- Originele houthaard met unieke schouw
- 4 slaapkamers, waarvan één met dakkapel
- Knusse tuin met binnenplaats en vijver
- Combi-ketel ATAG (2022)
Deze woning biedt een unieke combinatie van karakter, ruimte en praktische indeling. Dankzij de grote raampartijen, de ruime keuken, de diepe oprit met carport en de royale garage is dit een ideale woning voor wie comfortabel en vrijstaand wil wonen. De knusse tuin met binnenplaats en vijver maakt het geheel compleet.
Indeling
Begane grond
Bij binnenkomst in de woning kom je in de hal, waar je direct toegang hebt tot zowel het aparte toilet als de badkamer. De badkamer, die praktisch op de begane grond is gesitueerd, is voorzien van een inloopdouche en een wastafel met spiegel. Daarnaast tref je hier een handige trapkast aan.
De lichte woonkamer met houten vloer wordt gekenmerkt door de grote ramen en openslaande deuren naar de tuin, waardoor binnen en buiten mooi in elkaar overlopen. De authentieke houthaard met bijzondere schouw vormt het gezellige hart van de kamer. Dankzij de L-vormige indeling zijn de eet- en zithoek sfeervol van elkaar gescheiden.
Grenzend aan de woonkamer vind je de ruime hoekkeuken, die volop werk- en opbergruimte biedt. De keuken is uitgerust met een 4-pits gasfornuis, afzuigkap, oven en een losse koelkast. Via de tuindeur loop je direct de binnenplaats op. Ideaal om buiten te eten of in de ochtend van een kop koffie in de tuin te genieten.
Op de begane grond bevindt zich tevens een royale slaapkamer, voorzien van een praktische vaste kast en een eigen wastafel. Grotendeels zijn op deze woonlaag rolluiken aanwezig, vooral aan de voorzijde. Kortom, deze ruimtes zijn uitermate geschikt voor wie gelijkvloers wil slapen en baden.
Eerste verdieping
Op de eerste verdieping zijn drie slaapkamers aanwezig, waarvan een momenteel dienstdoet als werkkamer. Een van de slaapkamers beschikt over een dakkapel, wat extra licht en ruimte biedt. De derde kamer, met hoge nok, is te bereiken via enkele traptreden en doet dienst als extra (slaap)kamer. Voor deze doorgang is nog een extra bergruimte beschikbaar.
Buitenruimte
Vanaf de binnenplaats heb je toegang tot de royale garage, die is uitgerust met een elektrische roldeur, verwarming, elektra, water en veel opbergruimte. De diepe oprit met carport biedt volop parkeergelegenheid voor meerdere auto’s.
De tuin rondom het huis is knus en sfeervol ingericht. De binnenplaats vormt een beschutte plek om te relaxen, terwijl de vijver een speels accent geeft. Dankzij de privacy en het onderhoudsvriendelijke karakter van de tuin, kun je hier zorgeloos genieten. De ruime oprit en carport zorgen voor voldoende parkeergelegenheid op eigen terrein en via een poortje is de achterom eenvoudig bereikbaar.
Bijzonderheden van deze woning
- Vrijstaande woning met geschakelde garage
- Slaapkamer en badkamer op begane grond
- Woonkamer met veel lichtinval door grote raampartijen
- Ruime keuken met hoekopstelling en tuindeur
- Ruime garage met elektrische rolpoort en carport
- Diepe oprit met plaats voor meerdere auto’s
- Vaste trap naar zolder met hoge nok; ideaal voor extra (slaap)kamer
- Woonkamer met openslaande deuren naar de tuin
- Originele houthaard met unieke schouw
- 4 slaapkamers, waarvan één met dakkapel
- Knusse tuin met binnenplaats en vijver
- Combi-ketel ATAG (2022)