Met een eigen account kun je panden volgen, opslaan als favoriet, je zoekprofiel opslaan en jouw eigen notities bij een huis maken.
Algemeen
Vrijstaande woning met royale tuin en garage in rustige woonwijk
Leumehofstraat 12, Weert
Welkom bij deze charmante vrijstaande woning, gelegen in de geliefde en rustige wijk Boshoven (Vrakker-West) in Weert. Gebouwd in 2004, biedt deze woning een overvloed aan ruimte, zowel binnen als buiten, en is daarmee ideaal voor gezinnen of voor wie op zoek is naar rust en comfort. Met een ruim per... Meer informatie
Leumehofstraat 12, Weert
Welkom bij deze charmante vrijstaande woning, gelegen in de geliefde en rustige wijk Boshoven (Vrakker-West) in Weert. Gebouwd in 2004, biedt deze woning een overvloed aan ruimte, zowel binnen als buiten, en is daarmee ideaal voor gezinnen of voor wie op zoek is naar rust en comfort. Met een ruim per... Meer informatie
-
Kenmerken
Alle kenmerken Type object Woonhuis, eengezinswoning, vrijstaande woning Bouwjaar 2004 Aangeboden sinds Dinsdag 22 juli 2025 -
Locatie
Kenmerken
Overdracht | |
---|---|
Referentienummer | 62677/9312902 |
Vraagprijs | € 750.000,- k.k. |
Aanvaarding | In overleg |
Aangeboden sinds | Dinsdag 22 juli 2025 |
Laatste wijziging | Vrijdag 17 oktober 2025 |
Bouw | |
---|---|
Type object | Woonhuis, eengezinswoning, vrijstaande woning |
Soort bouw | Bestaande bouw |
Bouwjaar | 2004 |
Type dak | Zadeldak |
Isolatievormen | Dakisolatie, Muurisolatie, Vloerisolatie |
Oppervlaktes en inhoud | |
---|---|
Perceeloppervlakte | 465 m² |
Woonoppervlakte | 184 m² |
Inhoud | 738 m³ |
Oppervlakte gebouwgebonden buitenruimte | 25 m² |
Indeling | |
---|---|
Aantal bouwlagen | 3 |
Aantal kamers | 4 (waarvan 3 slaapkamers) |
Locatie | |
---|---|
Ligging | In woonwijk |
Tuin | |
---|---|
Type | Achtertuin |
Hoofdtuin | Ja |
Oriëntering | Oosten |
Heeft een achterom | Ja |
Staat | Prachtig aangelegd |
Energieverbruik | |
---|---|
Energielabel | A |
Uitrusting | |
---|---|
Warm water | CV-ketel |
Badkamervoorzieningen | Douche, Dubbele wastafel, Ligbad, Toilet |
Parkeergelegenheid | Aangebouwde stenen garage |
Tuin aanwezig | Ja |
Heeft een garage | Ja |
Beschrijving
Vrijstaande woning met royale tuin en garage in rustige woonwijk
Leumehofstraat 12, Weert
Welkom bij deze charmante vrijstaande woning, gelegen in de geliefde en rustige wijk Boshoven (Vrakker-West) in Weert. Gebouwd in 2004, biedt deze woning een overvloed aan ruimte, zowel binnen als buiten, en is daarmee ideaal voor gezinnen of voor wie op zoek is naar rust en comfort. Met een ruim perceel, eigen oprit, aanpandige garage en een sfeervolle tuin rondom, voelt thuiskomen hier als vanzelfsprekend.
De woning bevindt zich in een groene, kindvriendelijke omgeving met scholen, winkels en sportfaciliteiten op korte afstand. Ook de uitvalswegen richting Eindhoven en Roermond zijn snel en eenvoudig bereikbaar.
Indeling
Begane grond
Bij binnenkomst betreed je de ruime hal met garderobe, meterkast, toilet, trap naar de eerste verdieping en toegang tot de woonkamer. De lichte woonkamer is voorzien van grote raampartijen en twee fraaie erkers, waardoor het daglicht rijkelijk binnenvalt. De begane grond is uitgerust met comfortabele vloerverwarming.
De woonkamer loopt naadloos over in de open keuken, die is afgewerkt met een granieten werkblad en inbouwapparatuur van Siemens en Bosch. Aansluitend vind je de praktische bijkeuken met witgoedaansluitingen en extra bergruimte dankzij vaste kasten met schuifdeuren.
De dubbele tuindeuren met hordeur geven toegang tot de fijne achtertuin en de overkapping. De aangebouwde garage is volledig geïsoleerd en voorzien van een elektrische deur, waardoor deze uitstekend geschikt is als hobbyruimte of werkplaats.
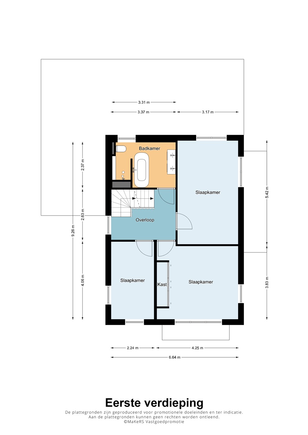
Eerste verdieping
Op de eerste verdieping bevinden zich drie ruime en comfortabele slaapkamers, elk voorzien van rolluiken en raamhorren. De moderne badkamer is praktisch ingericht en beschikt over een luxe ligbad met wandkranen, een inloopdouche met regendouche en ruime nis, een dubbel wastafelmeubel met extra muurkast, toilet en designradiator.
Tweede verdieping
Via een vaste trap bereik je de tweede verdieping. Deze riante ruimte leent zich voor een extra slaap- of werkkamer. Ook bevinden zich hier de HR-combiketel (Intergas Extreme, 2024) en de WTW-installatie.
Buitenruimte
De woning beschikt over een royale voor- en achtertuin met een handige achterom. Onder de overkapping met inbouwspots en dakkoepel geniet je van een heerlijk overdekt terras. Het vrijstaande houten tuinhuis biedt extra opslagruimte of plek voor tuinliefhebbers. De oprit biedt plaats aan meerdere auto’s en is voorzien van een aansluiting voor elektrische voertuigen.
Bijzonderheden van deze woning:
- Vrijstaande woning op royaal perceel in rustige wijk Boshoven
- Grote voor- en achtertuin met achterom
- Volledig geïsoleerde aangebouwde garage met elektrische deur
- Keuken met granieten werkblad en Siemens inbouwapparatuur
- Vloerverwarming op de begane grond
- Raampartijen voorzien van horren en rolluiken
- Dubbele tuindeuren met hordeur naar de tuin
- HR-combiketel uit 2024 (Intergas Extreme)
- WTW-installatie voor optimaal binnenklimaat
- Vrijstaand houten tuinhuis
- Praktische bijkeuken met witgoedaansluitingen
- Oprit met laadmogelijkheid voor elektrische voertuigen
Een woning die rust, ruimte en comfort op harmonieuze wijze combineert, en dat alles op een uitstekende locatie in Weert.
Leumehofstraat 12, Weert
Welkom bij deze charmante vrijstaande woning, gelegen in de geliefde en rustige wijk Boshoven (Vrakker-West) in Weert. Gebouwd in 2004, biedt deze woning een overvloed aan ruimte, zowel binnen als buiten, en is daarmee ideaal voor gezinnen of voor wie op zoek is naar rust en comfort. Met een ruim perceel, eigen oprit, aanpandige garage en een sfeervolle tuin rondom, voelt thuiskomen hier als vanzelfsprekend.
De woning bevindt zich in een groene, kindvriendelijke omgeving met scholen, winkels en sportfaciliteiten op korte afstand. Ook de uitvalswegen richting Eindhoven en Roermond zijn snel en eenvoudig bereikbaar.
Indeling
Begane grond
Bij binnenkomst betreed je de ruime hal met garderobe, meterkast, toilet, trap naar de eerste verdieping en toegang tot de woonkamer. De lichte woonkamer is voorzien van grote raampartijen en twee fraaie erkers, waardoor het daglicht rijkelijk binnenvalt. De begane grond is uitgerust met comfortabele vloerverwarming.
De woonkamer loopt naadloos over in de open keuken, die is afgewerkt met een granieten werkblad en inbouwapparatuur van Siemens en Bosch. Aansluitend vind je de praktische bijkeuken met witgoedaansluitingen en extra bergruimte dankzij vaste kasten met schuifdeuren.
De dubbele tuindeuren met hordeur geven toegang tot de fijne achtertuin en de overkapping. De aangebouwde garage is volledig geïsoleerd en voorzien van een elektrische deur, waardoor deze uitstekend geschikt is als hobbyruimte of werkplaats.
Eerste verdieping
Op de eerste verdieping bevinden zich drie ruime en comfortabele slaapkamers, elk voorzien van rolluiken en raamhorren. De moderne badkamer is praktisch ingericht en beschikt over een luxe ligbad met wandkranen, een inloopdouche met regendouche en ruime nis, een dubbel wastafelmeubel met extra muurkast, toilet en designradiator.
Tweede verdieping
Via een vaste trap bereik je de tweede verdieping. Deze riante ruimte leent zich voor een extra slaap- of werkkamer. Ook bevinden zich hier de HR-combiketel (Intergas Extreme, 2024) en de WTW-installatie.
Buitenruimte
De woning beschikt over een royale voor- en achtertuin met een handige achterom. Onder de overkapping met inbouwspots en dakkoepel geniet je van een heerlijk overdekt terras. Het vrijstaande houten tuinhuis biedt extra opslagruimte of plek voor tuinliefhebbers. De oprit biedt plaats aan meerdere auto’s en is voorzien van een aansluiting voor elektrische voertuigen.
Bijzonderheden van deze woning:
- Vrijstaande woning op royaal perceel in rustige wijk Boshoven
- Grote voor- en achtertuin met achterom
- Volledig geïsoleerde aangebouwde garage met elektrische deur
- Keuken met granieten werkblad en Siemens inbouwapparatuur
- Vloerverwarming op de begane grond
- Raampartijen voorzien van horren en rolluiken
- Dubbele tuindeuren met hordeur naar de tuin
- HR-combiketel uit 2024 (Intergas Extreme)
- WTW-installatie voor optimaal binnenklimaat
- Vrijstaand houten tuinhuis
- Praktische bijkeuken met witgoedaansluitingen
- Oprit met laadmogelijkheid voor elektrische voertuigen
Een woning die rust, ruimte en comfort op harmonieuze wijze combineert, en dat alles op een uitstekende locatie in Weert.